|
|
|
| Larry Stein Oklahoma County Assessor (405) 713-1200 - Public Access System |
|
|
|
|
|
|
| Real Property Display - Screen Produced 3/18/2026 10:21:05 AM | ||||
|---|---|---|---|---|
| Account: R086230840 | Type: Residential | Location: |
444 SE 45TH ST |
|
| Building Name/Occupant: |
|
OKLAHOMA CITY |
||
| Owner Name 1: | DEAN STEVEN ROY |
Parcel PIN#: |
1685-08-623-0840 |
|
| Owner Name 2: | 1/4 section #: |
1685 |
||
| Owner Name 3: | Parent Acct: |
|
||
| Billing Address: | 444 SE 45TH ST | Tax District: |
|
|
| City, State, Zip | OKLAHOMA CITY, OK 73129-5312 | School System: |
Oklahoma City #89 |
|
|
Country: (If noted) |
Land Size: |
0.1607 Acres |
||
|
Land Value: 8,400 |
|
|||
|
Sect 22-T11N-R3W Qtr NE |
CARNEY HEIGHTS ADDITION
Block
003
Lot
000
|
|||
| Full Legal Description: CARNEY HEIGHTS ADDITION 003 000 LOTS 1 & 2 |
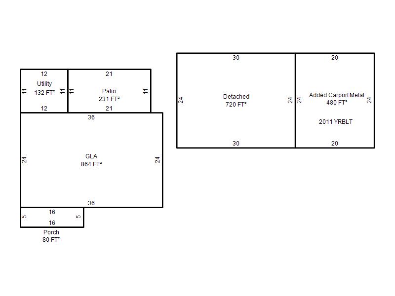
| Photo & Sketch (if available) | Comp Sales (ordered by relevancy) |
|
||||||||||||||||||
|
||||||||||||||||||||
| Value History (*The County Treasurer 405-713-1300 posts & collects actual tax amounts. Contact information HERE) | |||||||||||||
|---|---|---|---|---|---|---|---|---|---|---|---|---|---|
| Year | Market Value | Taxable Mkt Value | Gross Assessed | Exemption | Net Assessed | Millage | Est. Tax | Tax Savings | |||||
|
2025 |
71,500 |
27,941 |
3,073 |
2,000 |
1,073 |
119.02 |
$128 |
$808 |
|||||
|
2024 |
79,500 |
27,941 |
3,073 |
2,000 |
1,073 |
119.70 |
$128 |
$918 |
|||||
|
2023 |
69,000 |
27,941 |
3,073 |
2,000 |
1,073 |
118.33 |
$127 |
$771 |
|||||
|
2022 |
61,000 |
27,941 |
3,073 |
1,000 |
2,073 |
112.69 |
$234 |
$522 |
|||||
|
2021 |
53,000 |
27,941 |
3,073 |
1,000 |
2,073 |
112.29 |
$233 |
$422 |
|||||
| Property Account Status/Adjustments/Exemptions | ||
|---|---|---|
| Account # | Exemption Description | Amount |
|
R086230840 |
Senior Additional Homestead |
1,000 |
|
R086230840 |
Freeze Senior Valuation |
0 |
|
R086230840 |
Homestead |
1,000 |
|
R086230840 |
3% Cap Homestead |
0 |
| Property Deed Transaction History (Recorded in the County Clerk's Office) | |||||||
|---|---|---|---|---|---|---|---|
| Date | Type | Book | Page | Price | Grantor | Grantee | |
|
6/2/2014 |
|
Deeds |
$0 |
DEAN STEVEN ROY DEAN STANLEY RAY |
DEAN STEVEN ROY |
||
|
5/24/2014 |
|
Hmstd Off & |
$0 |
ESTATE PATRICIA MAE DEAN |
DEAN STANLEY RAY DEAN STUART ALAN |
||
|
4/22/2014 |
|
Hmstd Off & |
$0 |
DEAN PATRICIA M |
DEAN STEVEN ROY DEAN STANLEY RAY |
||
|
11/11/1911 |
|
Historical |
$0 |
|
DEAN PATRICIA M |
||
| Last Mailed Notice of Value (N.O.V.) Information/History | ||||||||
|---|---|---|---|---|---|---|---|---|
| Year | Date | Market Value | Taxable Market Value | Gross Assessed | Exemption | Net Assessed | ||
|
2025 |
01/31/2025 |
84,000 |
27,941 |
3,073 |
2,000 |
1,073 |
||
|
2024 |
01/22/2024 |
79,500 |
27,941 |
3,073 |
2,000 |
1,073 |
||
|
2023 |
01/23/2023 |
69,000 |
27,941 |
3,073 |
1,000 |
2,073 |
||
|
2022 |
02/22/2022 |
61,000 |
27,941 |
3,073 |
1,000 |
2,073 |
||
|
2021 |
02/24/2021 |
53,000 |
27,941 |
3,073 |
1,000 |
2,073 |
||
| Property Building Permit History | ||||||
|---|---|---|---|---|---|---|
| Issued | Permit # | Provided by | Bldg # | Description | Est Construction Cost | Status |
|
5/19/2025 |
|
|
|
Fire Remodel |
|
Active |
|
3/18/2025 |
25015641 |
|
1 |
Burn - Trip |
19,875 |
Inactive |
|
9/10/2010 |
10412598 |
OKLAHOMA CITY |
1 |
Carport |
1,500 |
Inactive |
| Click button on building number to access detailed information: | ||||||
|---|---|---|---|---|---|---|
| Bldg # | Vacant/Improved Land | Bldg Description | Year Built | SqFt | # Stories | |
|
1 |
Improved |
Ranch 1 Story |
1960 |
864 |
1 Stories |
|