|
|
|
| Larry Stein Oklahoma County Assessor (405) 713-1200 - Public Access System |
|
|
|
|
|
|
| Real Property Display - Screen Produced 3/18/2026 10:13:29 AM | ||||
|---|---|---|---|---|
| Account: R086230990 | Type: Residential | Location: |
420 SE 45TH ST |
|
| Building Name/Occupant: |
|
OKLAHOMA CITY |
||
| Owner Name 1: | DOMINGUEZ JUAN |
Parcel PIN#: |
1685-08-623-0990 |
|
| Owner Name 2: | MERLO JAMES | 1/4 section #: |
1685 |
|
| Owner Name 3: | Parent Acct: |
|
||
| Billing Address: | 420 SE 45TH ST | Tax District: |
|
|
| City, State, Zip | OKLAHOMA CITY, OK 73129-5312 | School System: |
Oklahoma City #89 |
|
|
Country: (If noted) |
Land Size: |
0.1607 Acres |
||
|
Land Value: 8,400 |
|
|||
|
Sect 22-T11N-R3W Qtr NE |
CARNEY HEIGHTS ADDITION
Block
003
Lot
000
|
|||
| Full Legal Description: CARNEY HEIGHTS ADDITION 003 000 LOTS 13 & 14 |
| Photo & Sketch (if available) | Comp Sales (ordered by relevancy) |
|
||||||||||||||||||
|
||||||||||||||||||||
| Value History (*The County Treasurer 405-713-1300 posts & collects actual tax amounts. Contact information HERE) | |||||||||||||
|---|---|---|---|---|---|---|---|---|---|---|---|---|---|
| Year | Market Value | Taxable Mkt Value | Gross Assessed | Exemption | Net Assessed | Millage | Est. Tax | Tax Savings | |||||
|
2025 |
120,000 |
81,042 |
8,914 |
0 |
8,914 |
119.02 |
$1,061 |
$510 |
|||||
|
2024 |
108,000 |
77,183 |
8,489 |
0 |
8,489 |
119.70 |
$1,016 |
$406 |
|||||
|
2023 |
92,000 |
73,508 |
8,085 |
0 |
8,085 |
118.33 |
$957 |
$241 |
|||||
|
2022 |
81,500 |
70,008 |
7,700 |
0 |
7,700 |
112.69 |
$868 |
$142 |
|||||
|
2021 |
70,000 |
66,675 |
7,334 |
0 |
7,334 |
112.29 |
$824 |
$41 |
|||||
| Property Account Status/Adjustments/Exemptions | ||
|---|---|---|
| Account # | Exemption Description | Amount |
|
R086230990 |
5% Capped Account |
0 |
| Property Deed Transaction History (Recorded in the County Clerk's Office) | ||||||||||
|---|---|---|---|---|---|---|---|---|---|---|
| Date | Type | Book | Page | Price | Grantor | Grantee | ||||
|
9/26/2008 |
|
Deeds |
$12,000 |
HALL RICHARD C SIMON DANNY L JR |
DOMINGUEZ JUAN |
|||||
|
9/1/2006 |
|
Deeds |
$0 |
HALL RICHARD |
HALL RICHARD C SIMON DANNY L JR |
|||||
|
6/13/2006 |
|
Deeds |
$9,000 |
NEW LEAF INVESTMENTS LLC |
HALL RICHARD |
|||||
|
6/12/2006 |
|
Deeds |
$5,000 |
CASTLEBERRY MITCHELL |
NEW LEAF INVESTMENTS LLC |
|||||
|
5/26/2004 |
|
Hmstd Off & |
$0 |
JACKSON IDA MAE |
CASTLEBERRY MITCHELL |
|||||
| Last Mailed Notice of Value (N.O.V.) Information/History | ||||||||
|---|---|---|---|---|---|---|---|---|
| Year | Date | Market Value | Taxable Market Value | Gross Assessed | Exemption | Net Assessed | ||
|
2026 |
02/06/2026 |
125,500 |
85,094 |
9,359 |
0 |
9,359 |
||
|
2025 |
01/31/2025 |
120,000 |
81,042 |
8,914 |
0 |
8,914 |
||
|
2024 |
01/22/2024 |
108,000 |
77,183 |
8,489 |
0 |
8,489 |
||
|
2023 |
01/23/2023 |
92,000 |
73,508 |
8,085 |
0 |
8,085 |
||
|
2022 |
02/22/2022 |
81,500 |
70,008 |
7,700 |
0 |
7,700 |
||
| Property Building Permit History | |||||||||||
|---|---|---|---|---|---|---|---|---|---|---|---|
| Issued | Permit # | Provided by | Bldg # | Description | Est Construction Cost | Status | |||||
| No Building Permit records returned. | |||||||||||
| Click button on building number to access detailed information: | ||||||
|---|---|---|---|---|---|---|
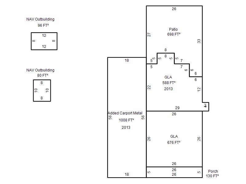
| Bldg # | Vacant/Improved Land | Bldg Description | Year Built | SqFt | # Stories | |
|
1 |
Improved |
Ranch 1 Story |
1921 |
1,264 |
1 Stories |
|