|
|
|
| Larry Stein Oklahoma County Assessor (405) 713-1200 - Public Access System |
|
|
|
|
|
|
| Real Property Display - Screen Produced 3/18/2026 10:15:57 AM | ||||
|---|---|---|---|---|
| Account: R086235690 | Type: Residential | Location: |
432 SE 49TH ST |
|
| Building Name/Occupant: |
|
OKLAHOMA CITY |
||
| Owner Name 1: | CORREA FEDORA C |
Parcel PIN#: |
1685-08-623-5690 |
|
| Owner Name 2: | 1/4 section #: |
1685 |
||
| Owner Name 3: | Parent Acct: |
|
||
| Billing Address: | 7501 FOREST LN | Tax District: |
|
|
| City, State, Zip | OKLAHOMA CITY, OK 73150-7206 | School System: |
Oklahoma City #89 |
|
|
Country: (If noted) |
Land Size: |
0.1607 Acres |
||
|
Land Value: 8,400 |
|
|||
|
Sect 22-T11N-R3W Qtr NE |
CARNEY HEIGHTS ADDITION
Block
014
Lot
000
|
|||
| Full Legal Description: CARNEY HEIGHTS ADDITION 014 000 LOTS 7 & 8 |
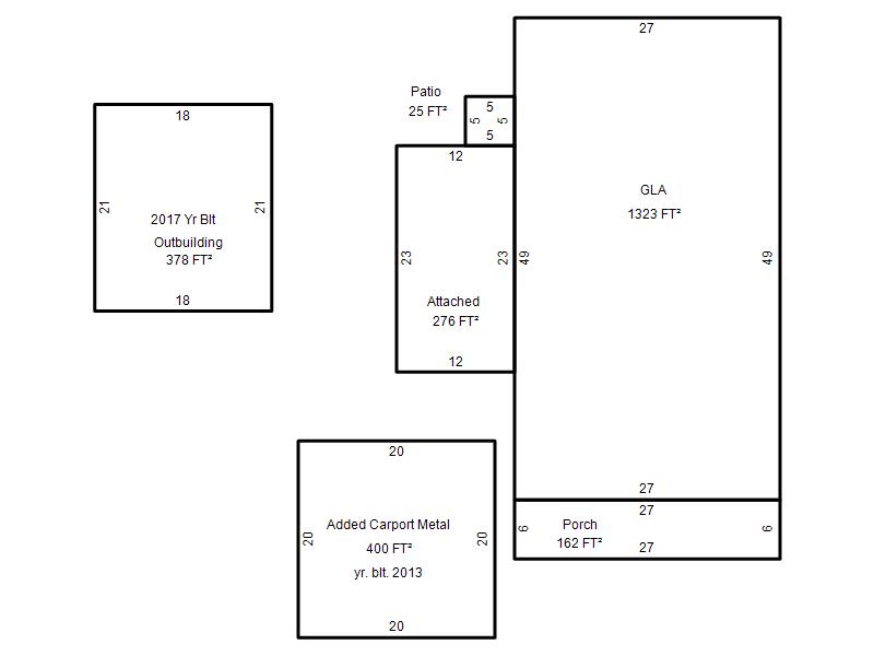
| Photo & Sketch (if available) | Comp Sales (ordered by relevancy) |
|
||||||||||||||||||
|
||||||||||||||||||||
| Value History (*The County Treasurer 405-713-1300 posts & collects actual tax amounts. Contact information HERE) | |||||||||||||
|---|---|---|---|---|---|---|---|---|---|---|---|---|---|
| Year | Market Value | Taxable Mkt Value | Gross Assessed | Exemption | Net Assessed | Millage | Est. Tax | Tax Savings | |||||
|
2025 |
201,500 |
86,859 |
9,553 |
0 |
9,553 |
119.02 |
$1,137 |
$1,501 |
|||||
|
2024 |
185,500 |
82,723 |
9,099 |
0 |
9,099 |
119.70 |
$1,089 |
$1,353 |
|||||
|
2023 |
157,500 |
78,784 |
8,665 |
1,000 |
7,665 |
118.33 |
$907 |
$1,143 |
|||||
|
2022 |
138,000 |
76,490 |
8,413 |
1,000 |
7,413 |
112.69 |
$835 |
$875 |
|||||
|
2021 |
119,000 |
74,263 |
8,168 |
1,000 |
7,168 |
112.29 |
$805 |
$665 |
|||||
| Property Account Status/Adjustments/Exemptions | ||
|---|---|---|
| Account # | Exemption Description | Amount |
|
R086235690 |
5% Capped Account |
0 |
| Property Deed Transaction History (Recorded in the County Clerk's Office) | ||||||||||
|---|---|---|---|---|---|---|---|---|---|---|
| Date | Type | Book | Page | Price | Grantor | Grantee | ||||
|
6/12/2008 |
|
Deeds |
$70,000 |
CENTRAL OKLAHOMA HABITAT FOR HUMANITY CONSTRUCTION LLC |
CORREA FEDORA C |
|||||
|
11/1/2006 |
|
Other |
$0 |
CENTRAL OKLAHOMA HABITAT FOR HUMANITY INC |
CENTRAL OKLAHOMA HABITAT FOR HUMANITY CONSTRUCTION LLC |
|||||
|
4/12/2006 |
|
Deeds |
$1,000 |
WEED FAMILY LIMITED PARTNERSHIP |
CENTRAL OKLAHOMA HABITAT FOR HUMANITY INC |
|||||
|
7/5/1996 |
|
Historical |
$0 |
WEED BILLY L & OPAL F |
WEED FAMILY |
|||||
|
7/5/1988 |
|
Historical |
$0 |
SECRETARY OF HOUSING |
WEED BILLY L & OPAL F |
|||||
| Last Mailed Notice of Value (N.O.V.) Information/History | ||||||||
|---|---|---|---|---|---|---|---|---|
| Year | Date | Market Value | Taxable Market Value | Gross Assessed | Exemption | Net Assessed | ||
|
2026 |
02/06/2026 |
216,000 |
91,201 |
10,031 |
0 |
10,031 |
||
|
2025 |
01/31/2025 |
201,500 |
86,859 |
9,553 |
0 |
9,553 |
||
|
2024 |
01/22/2024 |
185,500 |
82,723 |
9,099 |
0 |
9,099 |
||
|
2023 |
01/23/2023 |
157,500 |
78,784 |
8,665 |
1,000 |
7,665 |
||
|
2022 |
02/22/2022 |
138,000 |
76,490 |
8,413 |
1,000 |
7,413 |
||
| Property Building Permit History | ||||||
|---|---|---|---|---|---|---|
| Issued | Permit # | Provided by | Bldg # | Description | Est Construction Cost | Status |
|
1/19/2017 |
10491571 |
OKLAHOMA CITY |
1 |
Storage Buil |
3,500 |
Inactive |
|
10/15/2007 |
10342584 |
OKLAHOMA CITY |
1 |
Main Dwellin |
65,000 |
Inactive |
| Click button on building number to access detailed information: | ||||||
|---|---|---|---|---|---|---|
| Bldg # | Vacant/Improved Land | Bldg Description | Year Built | SqFt | # Stories | |
|
1 |
Improved |
Ranch 1 Story |
2008 |
1,323 |
1 Stories |
|