|
|
|
| Larry Stein Oklahoma County Assessor (405) 713-1200 - Public Access System |
|
|
|
|
|
|
| Real Property Display - Screen Produced 3/20/2026 5:41:49 AM | ||||
|---|---|---|---|---|
| Account: R086236080 | Type: Residential | Location: |
429 SE 50TH ST |
|
| Building Name/Occupant: |
|
OKLAHOMA CITY |
||
| Owner Name 1: | TORRES FILIBERTO & CONCEPCION |
Parcel PIN#: |
1685-08-623-6080 |
|
| Owner Name 2: | 1/4 section #: |
1685 |
||
| Owner Name 3: | Parent Acct: |
|
||
| Billing Address: | 429 SE 50TH ST | Tax District: |
|
|
| City, State, Zip | OKLAHOMA CITY, OK 73129-5517 | School System: |
Oklahoma City #89 |
|
|
Country: (If noted) |
Land Size: |
0.2410 Acres |
||
|
Land Value: 12,600 |
|
|||
|
Sect 22-T11N-R3W Qtr NE |
CARNEY HEIGHTS ADDITION
Block
014
Lot
000
|
|||
| Full Legal Description: CARNEY HEIGHTS ADDITION 014 000 LOTS 39 THRU 41 |
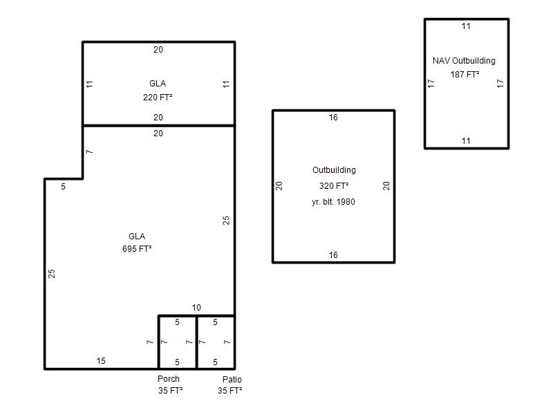
| Photo & Sketch (if available) | Comp Sales (ordered by relevancy) |
|
||||||||||||||||||
|
||||||||||||||||||||
| Value History (*The County Treasurer 405-713-1300 posts & collects actual tax amounts. Contact information HERE) | |||||||||||||
|---|---|---|---|---|---|---|---|---|---|---|---|---|---|
| Year | Market Value | Taxable Mkt Value | Gross Assessed | Exemption | Net Assessed | Millage | Est. Tax | Tax Savings | |||||
|
2025 |
78,500 |
36,051 |
3,964 |
0 |
3,964 |
119.02 |
$472 |
$556 |
|||||
|
2024 |
68,500 |
34,335 |
3,776 |
0 |
3,776 |
119.70 |
$452 |
$450 |
|||||
|
2023 |
57,500 |
32,700 |
3,596 |
0 |
3,596 |
118.33 |
$426 |
$323 |
|||||
|
2022 |
49,500 |
31,143 |
3,425 |
0 |
3,425 |
112.69 |
$386 |
$228 |
|||||
|
2021 |
43,000 |
29,660 |
3,262 |
0 |
3,262 |
112.29 |
$366 |
$165 |
|||||
| Property Account Status/Adjustments/Exemptions | ||
|---|---|---|
| Account # | Exemption Description | Amount |
|
R086236080 |
5% Capped Account |
0 |
| Property Deed Transaction History (Recorded in the County Clerk's Office) | |||||||
|---|---|---|---|---|---|---|---|
| Date | Type | Book | Page | Price | Grantor | Grantee | |
|
10/31/1996 |
|
Historical |
$7,500 |
ENFIELD DONALD R & PATRICIA A |
TORRES FILIBERTO & CONCEPCION |
||
|
12/23/1994 |
|
Historical |
$10,500 |
HENDRICKSON FLORA MAY |
ENFIELD DONALD R & PATRICIA A |
||
|
1/11/1993 |
|
Historical |
$0 |
BISHOP FLORENCE |
HENDRICKSON FLORA MAY |
||
|
12/7/1992 |
|
Historical |
$0 |
BISHOP RUFUS F & F |
BISHOP FLORENCE |
||
|
11/11/1911 |
|
Historical |
$0 |
|
BISHOP RUFUS F & F |
||
| Last Mailed Notice of Value (N.O.V.) Information/History | ||||||||
|---|---|---|---|---|---|---|---|---|
| Year | Date | Market Value | Taxable Market Value | Gross Assessed | Exemption | Net Assessed | ||
|
2026 |
02/06/2026 |
85,000 |
37,853 |
4,163 |
0 |
4,163 |
||
|
2025 |
01/31/2025 |
78,500 |
36,051 |
3,964 |
0 |
3,964 |
||
|
2024 |
01/22/2024 |
68,500 |
34,335 |
3,776 |
0 |
3,776 |
||
|
2023 |
01/23/2023 |
57,500 |
32,700 |
3,596 |
0 |
3,596 |
||
|
2022 |
02/22/2022 |
49,500 |
31,143 |
3,425 |
0 |
3,425 |
||
| Property Building Permit History | |||||||||||
|---|---|---|---|---|---|---|---|---|---|---|---|
| Issued | Permit # | Provided by | Bldg # | Description | Est Construction Cost | Status | |||||
| No Building Permit records returned. | |||||||||||
| Click button on building number to access detailed information: | ||||||
|---|---|---|---|---|---|---|
| Bldg # | Vacant/Improved Land | Bldg Description | Year Built | SqFt | # Stories | |
|
1 |
Improved |
Ranch 1 Story |
1930 |
915 |
1 Stories |
|