|
|
|
| Larry Stein Oklahoma County Assessor (405) 713-1200 - Public Access System |
|
|
|
|
|
|
| Real Property Display - Screen Produced 3/18/2026 10:15:57 AM | ||||
|---|---|---|---|---|
| Account: R086237520 | Type: Residential | Location: |
5108 S LINDSAY AVE, Unit 1/2 |
|
| Building Name/Occupant: |
|
OKLAHOMA CITY |
||
| Owner Name 1: | WINER RICHARD |
Parcel PIN#: |
1685-08-623-7520 |
|
| Owner Name 2: | 1/4 section #: |
1685 |
||
| Owner Name 3: | Parent Acct: |
|
||
| Billing Address: | 9600 ESCARPMENT BLVD, Unit 745-282 | Tax District: |
|
|
| City, State, Zip | AUSTIN, TX 78749 | School System: |
Oklahoma City #89 |
|
|
Country: (If noted) |
Land Size: |
0.2296 Acres |
||
|
Land Value: 12,000 |
|
|||
|
Sect 22-T11N-R3W Qtr NE |
CARNEY HEIGHTS ADDITION
Block
017
Lot
000
|
|||
| Full Legal Description: CARNEY HEIGHTS ADDITION 017 000 S100FT LOTS 25 THRU 28 |
| Photo & Sketch (if available) | Comp Sales (ordered by relevancy) |
|
||||||||||||||||||
|
||||||||||||||||||||
| Value History (*The County Treasurer 405-713-1300 posts & collects actual tax amounts. Contact information HERE) | |||||||||||||
|---|---|---|---|---|---|---|---|---|---|---|---|---|---|
| Year | Market Value | Taxable Mkt Value | Gross Assessed | Exemption | Net Assessed | Millage | Est. Tax | Tax Savings | |||||
|
2025 |
102,500 |
87,648 |
9,641 |
0 |
9,641 |
119.02 |
$1,148 |
$194 |
|||||
|
2024 |
92,000 |
83,475 |
9,182 |
0 |
9,182 |
119.70 |
$1,099 |
$112 |
|||||
|
2023 |
79,500 |
79,500 |
8,745 |
0 |
8,745 |
118.33 |
$1,035 |
$0 |
|||||
|
2022 |
81,214 |
63,646 |
7,000 |
0 |
7,000 |
112.69 |
$789 |
$218 |
|||||
|
2021 |
60,616 |
60,616 |
6,667 |
1,000 |
5,667 |
112.29 |
$636 |
$112 |
|||||
| Property Account Status/Adjustments/Exemptions | ||
|---|---|---|
| Account # | Exemption Description | Amount |
|
R086237520 |
5% Capped Account |
0 |
| Property Deed Transaction History (Recorded in the County Clerk's Office) | ||||||||||
|---|---|---|---|---|---|---|---|---|---|---|
| Date | Type | Book | Page | Price | Grantor | Grantee | ||||
|
1/7/2022 |
|
Deeds |
$60,000 |
VONGSOUVANH PRAMOUNE |
WINER RICHARD |
|||||
|
9/18/2014 |
|
Deeds |
$25,000 |
OKLAHOMA BUDDHIST CENTER INC |
VONGSOUVANH PRAMOUNE |
|||||
|
12/15/2009 |
|
Deeds |
$30,000 |
VONGSOUVANH PRAMOUNE |
OKLAHOMA BUDDHIST CENTER INC |
|||||
|
9/1/2005 |
|
Deeds |
$0 |
VONGSOUVANH PRAMOUNE BOWORNKIJ WICHAI |
VONGSOUVANH PRAMOUNE |
|||||
|
10/3/1997 |
|
Historical |
$9,500 |
BECKETT MARY L & JOHNNY D |
VONGSOUVANH PRAMOUNE |
|||||
| Last Mailed Notice of Value (N.O.V.) Information/History | ||||||||
|---|---|---|---|---|---|---|---|---|
| Year | Date | Market Value | Taxable Market Value | Gross Assessed | Exemption | Net Assessed | ||
|
2026 |
02/06/2026 |
112,000 |
92,030 |
10,123 |
0 |
10,123 |
||
|
2025 |
01/31/2025 |
102,500 |
87,648 |
9,641 |
0 |
9,641 |
||
|
2024 |
01/22/2024 |
92,000 |
83,475 |
9,182 |
0 |
9,182 |
||
|
2023 |
01/23/2023 |
79,500 |
79,500 |
8,745 |
0 |
8,745 |
||
|
2022 |
02/22/2022 |
81,214 |
63,646 |
7,000 |
0 |
7,000 |
||
| Property Building Permit History | ||||||
|---|---|---|---|---|---|---|
| Issued | Permit # | Provided by | Bldg # | Description | Est Construction Cost | Status |
|
10/18/2000 |
10197891 |
OKLAHOMA CITY |
1 |
Add On |
5,000 |
Inactive |
| Click button on building number to access detailed information: | ||||||
|---|---|---|---|---|---|---|
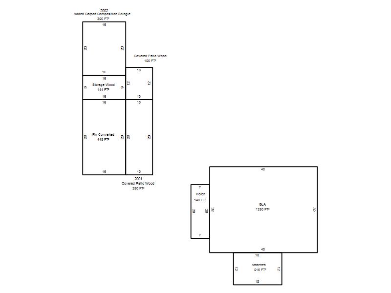
| Bldg # | Vacant/Improved Land | Bldg Description | Year Built | SqFt | # Stories | |
|
1 |
Improved |
Ranch 1 Story |
1946 |
1,280 |
1 Stories |
|