|
|
|
| Larry Stein Oklahoma County Assessor (405) 713-1200 - Public Access System |
|
|
|
|
|
|
| Real Property Display - Screen Produced 3/18/2026 10:15:58 AM | ||||
|---|---|---|---|---|
| Account: R086238170 | Type: Residential | Location: |
509 SE 51ST ST |
|
| Building Name/Occupant: |
|
OKLAHOMA CITY |
||
| Owner Name 1: | 509 SE 51ST ST LLC |
Parcel PIN#: |
1685-08-623-8170 |
|
| Owner Name 2: | 1/4 section #: |
1685 |
||
| Owner Name 3: | Parent Acct: |
|
||
| Billing Address: | 2845 BROCE DR, Unit A | Tax District: |
|
|
| City, State, Zip | NORMAN, OK 73072-2448 | School System: |
Oklahoma City #89 |
|
|
Country: (If noted) |
Land Size: |
0.1722 Acres |
||
|
Land Value: 9,000 |
|
|||
|
Sect 22-T11N-R3W Qtr NE |
CARNEY HEIGHTS ADDITION
Block
018
Lot
000
|
|||
| Full Legal Description: CARNEY HEIGHTS ADDITION 018 000 S150FT OF LOTS 29 & 30 |
| Photo & Sketch (if available) | Comp Sales (ordered by relevancy) |
|
||||||||||||||||||
|
||||||||||||||||||||
| Value History (*The County Treasurer 405-713-1300 posts & collects actual tax amounts. Contact information HERE) | |||||||||||||
|---|---|---|---|---|---|---|---|---|---|---|---|---|---|
| Year | Market Value | Taxable Mkt Value | Gross Assessed | Exemption | Net Assessed | Millage | Est. Tax | Tax Savings | |||||
|
2025 |
61,000 |
32,413 |
3,564 |
0 |
3,564 |
119.02 |
$424 |
$374 |
|||||
|
2024 |
53,000 |
30,870 |
3,395 |
0 |
3,395 |
119.70 |
$406 |
$291 |
|||||
|
2023 |
44,500 |
29,400 |
3,234 |
0 |
3,234 |
118.33 |
$383 |
$197 |
|||||
|
2022 |
28,000 |
28,000 |
3,080 |
0 |
3,080 |
112.69 |
$347 |
$0 |
|||||
|
2021 |
28,000 |
28,000 |
3,080 |
0 |
3,080 |
112.29 |
$346 |
$0 |
|||||
| Property Account Status/Adjustments/Exemptions | ||||||
|---|---|---|---|---|---|---|
| Account # | Exemption Description | Amount | ||||
| No adjustment/exemption records returned. | ||||||
| Property Deed Transaction History (Recorded in the County Clerk's Office) | ||||||||||
|---|---|---|---|---|---|---|---|---|---|---|
| Date | Type | Book | Page | Price | Grantor | Grantee | ||||
|
9/17/2024 |
|
Hmstd Off & |
$0 |
SPAULDING DAVID A |
509 SE 51ST ST LLC |
|||||
|
9/28/2021 |
|
Hmstd Off & |
$0 |
WENDT MICHAEL |
WENDT MICHAEL TRS |
|||||
|
9/28/2021 |
|
Deeds |
$43,000 |
WENDT MICHAEL TRS |
SPAULDING DAVID A |
|||||
|
11/29/2016 |
|
Deeds |
$28,000 |
DANDERSON JOANN DANDERSON THOMAS RAY |
WENDT MICHAEL |
|||||
|
9/3/2014 |
|
Hmstd Off & |
$0 |
ARMSTRONG GLEN A LASLEY JOANN |
DANDERSON JOANN |
|||||
| Last Mailed Notice of Value (N.O.V.) Information/History | ||||||||
|---|---|---|---|---|---|---|---|---|
| Year | Date | Market Value | Taxable Market Value | Gross Assessed | Exemption | Net Assessed | ||
|
2026 |
02/06/2026 |
65,500 |
34,033 |
3,743 |
0 |
3,743 |
||
|
2025 |
01/31/2025 |
61,000 |
32,413 |
3,564 |
0 |
3,564 |
||
|
2024 |
01/22/2024 |
53,000 |
30,870 |
3,395 |
0 |
3,395 |
||
|
2023 |
01/23/2023 |
44,500 |
29,400 |
3,234 |
0 |
3,234 |
||
|
2017 |
02/24/2017 |
28,000 |
28,000 |
|
|
|
||
| Property Building Permit History | |||||||||||
|---|---|---|---|---|---|---|---|---|---|---|---|
| Issued | Permit # | Provided by | Bldg # | Description | Est Construction Cost | Status | |||||
| No Building Permit records returned. | |||||||||||
| Click button on building number to access detailed information: | ||||||
|---|---|---|---|---|---|---|
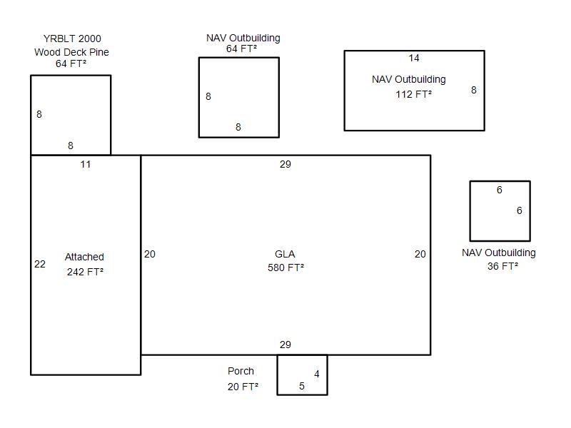
| Bldg # | Vacant/Improved Land | Bldg Description | Year Built | SqFt | # Stories | |
|
1 |
Improved |
Ranch 1 Story |
1952 |
580 |
1 Stories |
|