|
|
|
| Larry Stein Oklahoma County Assessor (405) 713-1200 - Public Access System |
|
|
|
|
|
|
| Real Property Display - Screen Produced 3/20/2026 5:41:48 AM | ||||
|---|---|---|---|---|
| Account: R086238360 | Type: Residential | Location: |
432 SE 50TH ST |
|
| Building Name/Occupant: |
|
OKLAHOMA CITY |
||
| Owner Name 1: | WWW PROPERTIES LLC |
Parcel PIN#: |
1685-08-623-8360 |
|
| Owner Name 2: | 1/4 section #: |
1685 |
||
| Owner Name 3: | Parent Acct: |
|
||
| Billing Address: | PO BOX 95302 | Tax District: |
|
|
| City, State, Zip | OKLAHOMA CITY, OK 73143 | School System: |
Oklahoma City #89 |
|
|
Country: (If noted) |
Land Size: |
0.1607 Acres |
||
|
Land Value: 8,400 |
|
|||
|
Sect 22-T11N-R3W Qtr NE |
CARNEY HEIGHTS ADDITION
Block
019
Lot
000
|
|||
| Full Legal Description: CARNEY HEIGHTS ADDITION 019 000 LOTS 7 & 8 |
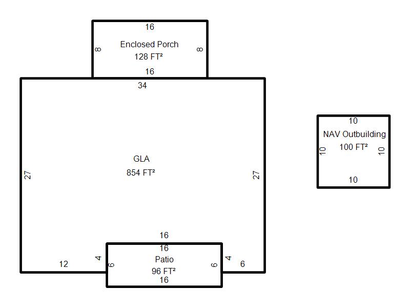
| Photo & Sketch (if available) | Comp Sales (ordered by relevancy) |
|
||||||||||||||||||
|
||||||||||||||||||||
| Value History (*The County Treasurer 405-713-1300 posts & collects actual tax amounts. Contact information HERE) | |||||||||||||
|---|---|---|---|---|---|---|---|---|---|---|---|---|---|
| Year | Market Value | Taxable Mkt Value | Gross Assessed | Exemption | Net Assessed | Millage | Est. Tax | Tax Savings | |||||
|
2025 |
78,000 |
53,603 |
5,895 |
0 |
5,895 |
119.02 |
$702 |
$319 |
|||||
|
2024 |
68,500 |
51,051 |
5,615 |
0 |
5,615 |
119.70 |
$672 |
$230 |
|||||
|
2023 |
58,500 |
48,620 |
5,347 |
0 |
5,347 |
118.33 |
$633 |
$129 |
|||||
|
2022 |
52,000 |
46,305 |
5,093 |
0 |
5,093 |
112.69 |
$574 |
$71 |
|||||
|
2021 |
45,000 |
44,100 |
4,851 |
0 |
4,851 |
112.29 |
$545 |
$11 |
|||||
| Property Account Status/Adjustments/Exemptions | ||
|---|---|---|
| Account # | Exemption Description | Amount |
|
R086238360 |
5% Capped Account |
0 |
| Property Deed Transaction History (Recorded in the County Clerk's Office) | ||||||||||
|---|---|---|---|---|---|---|---|---|---|---|
| Date | Type | Book | Page | Price | Grantor | Grantee | ||||
|
2/20/2019 |
|
Hmstd Off & |
$0 |
WWW PROPERTIES |
WWW PROPERTIES LLC |
|||||
|
2/19/2010 |
|
Deeds |
$12,000 |
FEDERAL HOME LOAN MORTGAGE CORP |
WWW PROPERTIES |
|||||
|
5/15/2009 |
|
Hmstd Off & |
$0 |
MCCLURE WANDA |
FEDERAL HOME LOAN MORTGAGE CORP |
|||||
|
4/24/2002 |
|
Deeds |
$0 |
HARRIS KENNETH D & SHIRLEY J |
MCCLURE WANDA |
|||||
|
2/1/1987 |
|
Historical |
$0 |
HARRIS SHIRLEY J |
MCCLURE WANDA |
|||||
| Last Mailed Notice of Value (N.O.V.) Information/History | ||||||||
|---|---|---|---|---|---|---|---|---|
| Year | Date | Market Value | Taxable Market Value | Gross Assessed | Exemption | Net Assessed | ||
|
2026 |
02/06/2026 |
82,000 |
56,283 |
6,190 |
0 |
6,190 |
||
|
2025 |
01/31/2025 |
78,000 |
53,603 |
5,895 |
0 |
5,895 |
||
|
2024 |
01/22/2024 |
68,500 |
51,051 |
5,615 |
0 |
5,615 |
||
|
2023 |
01/23/2023 |
58,500 |
48,620 |
5,347 |
0 |
5,347 |
||
|
2022 |
02/22/2022 |
52,000 |
46,305 |
5,093 |
0 |
5,093 |
||
| Property Building Permit History | ||||||
|---|---|---|---|---|---|---|
| Issued | Permit # | Provided by | Bldg # | Description | Est Construction Cost | Status |
|
5/3/2011 |
10398052 |
OKLAHOMA CITY |
1 |
Remodeled |
0 |
Inactive |
| Click button on building number to access detailed information: | ||||||
|---|---|---|---|---|---|---|
| Bldg # | Vacant/Improved Land | Bldg Description | Year Built | SqFt | # Stories | |
|
1 |
Improved |
Ranch 1 Story |
1946 |
854 |
1 Stories |
|