|
|
|
| Larry Stein Oklahoma County Assessor (405) 713-1200 - Public Access System |
|
|
|
|
|
|
| Real Property Display - Screen Produced 3/16/2026 8:09:56 AM | ||||
|---|---|---|---|---|
| Account: R086349160 | Type: Residential | Location: |
328 SE 58TH ST |
|
| Building Name/Occupant: |
|
OKLAHOMA CITY |
||
| Owner Name 1: | CHAR ONE LLC |
Parcel PIN#: |
1687-08-634-9160 |
|
| Owner Name 2: | 1/4 section #: |
1687 |
||
| Owner Name 3: | Parent Acct: |
|
||
| Billing Address: | 317 SE 61ST ST | Tax District: |
|
|
| City, State, Zip | OKLAHOMA CITY, OK 73149-1209 | School System: |
Oklahoma City #89 |
|
|
Country: (If noted) |
Land Size: |
0.1543 Acres |
||
|
Land Value: 12,096 |
|
|||
|
Sect 22-T11N-R3W Qtr SW |
WILMONT PLACE ADD
Block
016
Lot
000
|
|||
| Full Legal Description: WILMONT PLACE ADD 016 000 W6FT LOT 7 & ALL LOT 8 & E17FT LOT 9 |
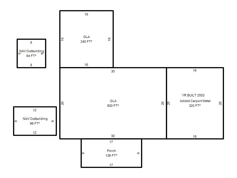
| Photo & Sketch (if available) | Comp Sales (ordered by relevancy) |
|
||||||||||||||||||
|
||||||||||||||||||||
| Value History (*The County Treasurer 405-713-1300 posts & collects actual tax amounts. Contact information HERE) | |||||||||||||
|---|---|---|---|---|---|---|---|---|---|---|---|---|---|
| Year | Market Value | Taxable Mkt Value | Gross Assessed | Exemption | Net Assessed | Millage | Est. Tax | Tax Savings | |||||
|
2025 |
88,000 |
54,292 |
5,971 |
0 |
5,971 |
119.02 |
$711 |
$441 |
|||||
|
2024 |
83,500 |
51,707 |
5,686 |
0 |
5,686 |
119.70 |
$681 |
$419 |
|||||
|
2023 |
75,500 |
49,245 |
5,416 |
0 |
5,416 |
118.33 |
$641 |
$342 |
|||||
|
2022 |
67,500 |
46,900 |
5,158 |
0 |
5,158 |
112.69 |
$581 |
$255 |
|||||
|
2021 |
57,000 |
44,667 |
4,912 |
0 |
4,912 |
112.29 |
$552 |
$152 |
|||||
| Property Account Status/Adjustments/Exemptions | ||
|---|---|---|
| Account # | Exemption Description | Amount |
|
R086349160 |
5% Capped Account |
0 |
| Property Deed Transaction History (Recorded in the County Clerk's Office) | ||||||||||
|---|---|---|---|---|---|---|---|---|---|---|
| Date | Type | Book | Page | Price | Grantor | Grantee | ||||
|
4/29/2010 |
|
Deeds |
$20,000 |
DEUTSCHE BANK NATIONAL TRUST CO TRS |
CHAR ONE LLC |
|||||
|
8/8/2008 |
|
Hmstd Off & |
$0 |
HARJO MANDY |
DEUTSCHE BANK NATIONAL TRUST CO TRS |
|||||
|
4/18/2006 |
|
Deeds |
$53,500 |
SHERFIELD CURTIS |
HARJO MANDY |
|||||
|
3/8/2006 |
|
Deeds |
$23,000 |
ADAIR ROBERT |
SHERFIELD CURTIS |
|||||
|
9/11/2001 |
|
Deeds |
$16,000 |
RITTER JEFFREY |
ADAIR ROBERT |
|||||
| Last Mailed Notice of Value (N.O.V.) Information/History | ||||||||
|---|---|---|---|---|---|---|---|---|
| Year | Date | Market Value | Taxable Market Value | Gross Assessed | Exemption | Net Assessed | ||
|
2026 |
02/06/2026 |
87,000 |
57,006 |
6,270 |
0 |
6,270 |
||
|
2025 |
01/31/2025 |
88,000 |
54,292 |
5,971 |
0 |
5,971 |
||
|
2024 |
01/22/2024 |
83,500 |
51,707 |
5,686 |
0 |
5,686 |
||
|
2023 |
01/23/2023 |
75,500 |
49,245 |
5,416 |
0 |
5,416 |
||
|
2022 |
02/22/2022 |
67,500 |
46,900 |
5,157 |
0 |
5,157 |
||
| Property Building Permit History | |||||||||||
|---|---|---|---|---|---|---|---|---|---|---|---|
| Issued | Permit # | Provided by | Bldg # | Description | Est Construction Cost | Status | |||||
| No Building Permit records returned. | |||||||||||
| Click button on building number to access detailed information: | ||||||
|---|---|---|---|---|---|---|
| Bldg # | Vacant/Improved Land | Bldg Description | Year Built | SqFt | # Stories | |
|
1 |
Improved |
Ranch 1 Story |
1949 |
840 |
1 Stories |
|