|
|
|
| Larry Stein Oklahoma County Assessor (405) 713-1200 - Public Access System |
|
|
|
|
|
|
| Real Property Display - Screen Produced 3/18/2026 4:05:02 AM | ||||
|---|---|---|---|---|
| Account: R132086000 | Type: Commercial | Location: |
4720 S SHIELDS BLVD |
|
| Building Name/Occupant: |
UNOCCUPIED |
OKLAHOMA CITY |
||
| Owner Name 1: | WANG ZHANJUAN |
Parcel PIN#: |
1688-13-208-6000 |
|
| Owner Name 2: | UDE OBINNA | 1/4 section #: |
1688 |
|
| Owner Name 3: | Parent Acct: |
|
||
| Billing Address: | 4301 STIRRUP LN | Tax District: |
|
|
| City, State, Zip | EDMOND, OK 73034 | School System: |
Oklahoma City #89 |
|
|
Country: (If noted) |
Land Size: |
172,502.0000 Square Feet |
||
|
Land Value: 388,129 |
|
|||
|
Sect 22-T11N-R3W Qtr NW |
UNPLTD PT SEC 22 11N 3W
Block
000
Lot
000
|
|||
| Full Legal Description: UNPLTD PT NW4 SEC 22 11N 3W COM AT A PT 758.4FT S & 654.5FT W OF NE/C NW4 TH S300FT W575FT TO E LINE OF SHIELDS BLVD TH N300FT E575FT TO PL OF BEG FORM KNOWN AS BLK 14 SPENCERS SO OKLA |
| No comparable sales report available. | ||||||||||||||||||||||
|
||||||||||||||||||||||
| Value History (*The County Treasurer 405-713-1300 posts & collects actual tax amounts. Contact information HERE) | |||||||||||||
|---|---|---|---|---|---|---|---|---|---|---|---|---|---|
| Year | Market Value | Taxable Mkt Value | Gross Assessed | Exemption | Net Assessed | Millage | Est. Tax | Tax Savings | |||||
| No PropertyValuation records returned. | |||||||||||||
| Property Account Status/Adjustments/Exemptions | ||
|---|---|---|
| Account # | Exemption Description | Amount |
|
R132086000 |
5% Capped Account |
0 |
| Property Deed Transaction History (Recorded in the County Clerk's Office) | |||||||
|---|---|---|---|---|---|---|---|
| Date | Type | Book | Page | Price | Grantor | Grantee | |
|
8/9/2024 |
|
Deeds |
$360,000 |
HOPE COMMUNITY SERVICES INC |
WANG ZHANJUAN |
||
|
12/23/1992 |
|
Historical |
$0 |
JEFFRIES INVESTMENT |
HOPE COMMUNITY SERVICES INC |
||
|
11/11/1911 |
|
Historical |
$0 |
|
JEFFRIES INVESTMENT |
||
| Last Mailed Notice of Value (N.O.V.) Information/History | ||||||||
|---|---|---|---|---|---|---|---|---|
| Year | Date | Market Value | Taxable Market Value | Gross Assessed | Exemption | Net Assessed | ||
| No Notice of Value N.O.V. records returned. | ||||||||
| Property Building Permit History | ||||||
|---|---|---|---|---|---|---|
| Issued | Permit # | Provided by | Bldg # | Description | Est Construction Cost | Status |
|
1/22/2025 |
|
|
1 |
Fire Remodel |
|
Active |
|
2/1/2024 |
24005749 |
|
1 |
Burn - Trip |
2,000 |
Inactive |
|
8/25/2005 |
10311277 |
OKLAHOMA CITY |
1 |
Remodeled |
15,000 |
Inactive |
|
9/28/1995 |
10229750 |
OKLAHOMA CITY |
1 |
Remodeled |
30,000 |
Inactive |
| Click button on building number to access detailed information: | ||||||
|---|---|---|---|---|---|---|
| Bldg # | Vacant/Improved Land | Bldg Description | Year Built | SqFt | # Stories | |
|
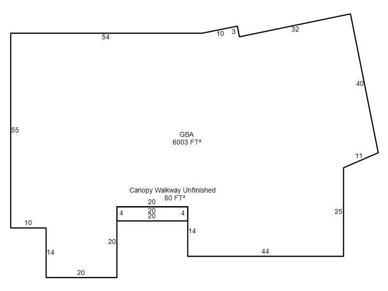
1 |
Improved |
Office Style Box C or D |
1980 |
6,003 |
1 Stories |
|
|
2 |
Improved |
Office Style Box C or D |
1980 |
2,716 |
1 Stories |
|
|
3 |
Improved |
Indust Lght Manufacturing |
1980 |
5,040 |
1 Stories |
|