|
|
|
| Larry Stein Oklahoma County Assessor (405) 713-1200 - Public Access System |
|
|
|
|
|
|
| Real Property Display - Screen Produced 3/17/2026 4:40:02 AM | ||||
|---|---|---|---|---|
| Account: R092601170 | Type: Residential | Location: |
4800 CINDERELLA DR |
|
| Building Name/Occupant: |
|
OKLAHOMA CITY |
||
| Owner Name 1: | THALASSOPHILE LLC 4800 PROTECTED SERIES |
Parcel PIN#: |
1696-09-260-1170 |
|
| Owner Name 2: | 1/4 section #: |
1696 |
||
| Owner Name 3: | Parent Acct: |
|
||
| Billing Address: | 3225 MCLEOD DR, Unit 777 | Tax District: |
|
|
| City, State, Zip | LAS VEGAS, NV 89121-2257 | School System: |
Oklahoma City #89 |
|
|
Country: (If noted) |
Land Size: |
0.1578 Acres |
||
|
Land Value: 18,906 |
|
|||
|
Sect 24-T11N-R3W Qtr NW |
CINDERELLA ESTATES REPLAT
Block
006
Lot
006
|
|||
| Full Legal Description: CINDERELLA ESTATES REPLAT 006 006 |
| Photo & Sketch (if available) | Comp Sales (ordered by relevancy) |
|
||||||||||||||||||
|
||||||||||||||||||||
| Value History (*The County Treasurer 405-713-1300 posts & collects actual tax amounts. Contact information HERE) | |||||||||||||
|---|---|---|---|---|---|---|---|---|---|---|---|---|---|
| Year | Market Value | Taxable Mkt Value | Gross Assessed | Exemption | Net Assessed | Millage | Est. Tax | Tax Savings | |||||
|
2025 |
128,500 |
86,146 |
9,475 |
0 |
9,475 |
119.02 |
$1,128 |
$555 |
|||||
|
2024 |
117,500 |
82,044 |
9,024 |
0 |
9,024 |
119.70 |
$1,080 |
$467 |
|||||
|
2023 |
101,000 |
78,138 |
8,594 |
0 |
8,594 |
118.33 |
$1,017 |
$298 |
|||||
|
2022 |
89,000 |
74,418 |
8,185 |
0 |
8,185 |
112.69 |
$922 |
$181 |
|||||
|
2021 |
75,500 |
70,875 |
7,796 |
0 |
7,796 |
112.29 |
$875 |
$57 |
|||||
| Property Account Status/Adjustments/Exemptions | ||
|---|---|---|
| Account # | Exemption Description | Amount |
|
R092601170 |
5% Capped Account |
0 |
| Property Deed Transaction History (Recorded in the County Clerk's Office) | ||||||||||
|---|---|---|---|---|---|---|---|---|---|---|
| Date | Type | Book | Page | Price | Grantor | Grantee | ||||
|
12/18/2025 |
|
Hmstd Off & |
$0 |
ESSENTIAL PROPERTIES OKTX LLC |
THALASSOPHILE LLC 4800 PROTECTED SERIES |
|||||
|
3/21/2018 |
|
Hmstd Off & |
$0 |
ESSENTIAL PROPERTIES OK LLC |
ESSENTIAL PROPERTIES OKTX LLC |
|||||
|
12/22/2017 |
|
Mult Parcel |
$785,500 |
BROWN REALTY INVESTMENTS LLC |
ESSENTIAL PROPERTIES OK LLC |
|||||
|
12/15/2014 |
|
Deeds |
$33,000 |
YOUNG KASHONDRA K |
BROWN REALTY INVESTMENTS LLC |
|||||
|
9/26/2007 |
|
Deeds |
$80,000 |
B & V PROPERTIES INC |
YOUNG KASHONDRA K |
|||||
| Last Mailed Notice of Value (N.O.V.) Information/History | ||||||||
|---|---|---|---|---|---|---|---|---|
| Year | Date | Market Value | Taxable Market Value | Gross Assessed | Exemption | Net Assessed | ||
|
2026 |
02/06/2026 |
128,500 |
90,453 |
9,949 |
0 |
9,949 |
||
|
2025 |
01/31/2025 |
128,500 |
86,146 |
9,475 |
0 |
9,475 |
||
|
2024 |
01/22/2024 |
117,500 |
82,044 |
9,024 |
0 |
9,024 |
||
|
2023 |
01/23/2023 |
101,000 |
78,138 |
8,594 |
0 |
8,594 |
||
|
2022 |
02/22/2022 |
89,000 |
74,418 |
8,185 |
0 |
8,185 |
||
| Property Building Permit History | |||||||||||
|---|---|---|---|---|---|---|---|---|---|---|---|
| Issued | Permit # | Provided by | Bldg # | Description | Est Construction Cost | Status | |||||
| No Building Permit records returned. | |||||||||||
| Click button on building number to access detailed information: | ||||||
|---|---|---|---|---|---|---|
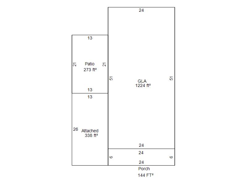
| Bldg # | Vacant/Improved Land | Bldg Description | Year Built | SqFt | # Stories | |
|
1 |
Improved |
Ranch 1 Story |
1976 |
1,224 |
1 Stories |
|