|
|
|
| Larry Stein Oklahoma County Assessor (405) 713-1200 - Public Access System |
|
|
|
|
|
|
| Real Property Display - Screen Produced 3/12/2026 11:11:38 PM | ||||
|---|---|---|---|---|
| Account: R160071865 | Type: Residential | Location: |
6408 COX AVE |
|
| Building Name/Occupant: |
|
VALLEY BROOK |
||
| Owner Name 1: | MERTES JOSEPH W |
Parcel PIN#: |
1701-16-007-1865 |
|
| Owner Name 2: | 1/4 section #: |
1701 |
||
| Owner Name 3: | Parent Acct: |
|
||
| Billing Address: | 6408 COX AVE | Tax District: |
|
|
| City, State, Zip | OKLAHOMA CITY, OK 73149-5120 | School System: |
Oklahoma City #89 |
|
|
Country: (If noted) |
Land Size: |
0.2147 Acres |
||
|
Land Value: 9,350 |
|
|||
|
Sect 26-T11N-R3W Qtr NE |
DOTSON & MERSON ADD
Block
006
Lot
005
|
|||
| Full Legal Description: DOTSON & MERSON ADD 006 005 |
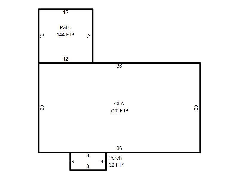
| Photo & Sketch (if available) | Comp Sales (ordered by relevancy) |
|
||||||||||||||||||
|
||||||||||||||||||||
| Value History (*The County Treasurer 405-713-1300 posts & collects actual tax amounts. Contact information HERE) | |||||||||||||
|---|---|---|---|---|---|---|---|---|---|---|---|---|---|
| Year | Market Value | Taxable Mkt Value | Gross Assessed | Exemption | Net Assessed | Millage | Est. Tax | Tax Savings | |||||
|
2025 |
52,000 |
34,841 |
3,832 |
0 |
3,832 |
103.86 |
$398 |
$196 |
|||||
|
2024 |
47,500 |
33,182 |
3,649 |
0 |
3,649 |
104.77 |
$382 |
$165 |
|||||
|
2023 |
41,500 |
31,602 |
3,475 |
0 |
3,475 |
103.55 |
$360 |
$113 |
|||||
|
2022 |
37,500 |
30,098 |
3,310 |
0 |
3,310 |
97.23 |
$322 |
$79 |
|||||
|
2021 |
31,500 |
28,665 |
3,153 |
0 |
3,153 |
97.56 |
$308 |
$30 |
|||||
| Property Account Status/Adjustments/Exemptions | ||
|---|---|---|
| Account # | Exemption Description | Amount |
|
R160071865 |
5% Capped Account |
0 |
| Property Deed Transaction History (Recorded in the County Clerk's Office) | |||||||
|---|---|---|---|---|---|---|---|
| Date | Type | Book | Page | Price | Grantor | Grantee | |
|
7/27/2005 |
|
Deeds |
$23,000 |
NEFF BRADLEY D & MELISSA J |
MERTES JOSEPH W |
||
|
8/29/2000 |
|
Deeds |
$16,500 |
ASSOCIATES FINANCIAL SERVICES COMPANY OF OKLAHOMA INC |
NEFF BRADLEY D & MELISSA J |
||
|
3/8/2000 |
|
Other |
$0 |
SMITH PHYLLIS A |
ASSOCIATES FINANCIAL SERVICES COMPANY OF OKLAHOMA INC |
||
|
3/1/1985 |
|
Historical |
$0 |
|
SMITH PHYLLIS A |
||
| Last Mailed Notice of Value (N.O.V.) Information/History | ||||||||
|---|---|---|---|---|---|---|---|---|
| Year | Date | Market Value | Taxable Market Value | Gross Assessed | Exemption | Net Assessed | ||
|
2026 |
02/06/2026 |
55,500 |
36,583 |
4,023 |
0 |
4,023 |
||
|
2025 |
01/31/2025 |
52,000 |
34,841 |
3,832 |
0 |
3,832 |
||
|
2024 |
01/22/2024 |
47,500 |
33,182 |
3,649 |
0 |
3,649 |
||
|
2023 |
01/23/2023 |
41,500 |
31,602 |
3,475 |
0 |
3,475 |
||
|
2022 |
02/22/2022 |
37,500 |
30,098 |
3,310 |
0 |
3,310 |
||
| Property Building Permit History | |||||||||||
|---|---|---|---|---|---|---|---|---|---|---|---|
| Issued | Permit # | Provided by | Bldg # | Description | Est Construction Cost | Status | |||||
| No Building Permit records returned. | |||||||||||
| Click button on building number to access detailed information: | ||||||
|---|---|---|---|---|---|---|
| Bldg # | Vacant/Improved Land | Bldg Description | Year Built | SqFt | # Stories | |
|
1 |
Improved |
Ranch 1 Story |
1954 |
720 |
1 Stories |
|