|
|
|
| Larry Stein Oklahoma County Assessor (405) 713-1200 - Public Access System |
|
|
|
|
|
|
| Real Property Display - Screen Produced 4/1/2026 5:15:50 AM | ||||
|---|---|---|---|---|
| Account: R208301750 | Type: Residential | Location: |
600 SE 60TH PL |
|
| Building Name/Occupant: |
|
OKLAHOMA CITY |
||
| Owner Name 1: | BARRAZA LUZ E CHAVEZ |
Parcel PIN#: |
1705-20-830-1750 |
|
| Owner Name 2: | 1/4 section #: |
1705 |
||
| Owner Name 3: | Parent Acct: |
1705-13-218-1400 |
||
| Billing Address: | 600 SE 60TH PL | Tax District: |
|
|
| City, State, Zip | OKLAHOMA CITY, OK 73149-1212 | School System: |
Oklahoma City #89 |
|
|
Country: (If noted) |
Land Size: |
0.1138 Acres |
||
|
Land Value: 23,293 |
|
|||
|
Sect 27-T11N-R3W Qtr NE |
THE COURTYARD
Block
03C
Lot
009
|
|||
| Full Legal Description: THE COURTYARD 03C 009 |
| Photo & Sketch (if available) | Comp Sales (ordered by relevancy) |
|
||||||||||||||||||
|
||||||||||||||||||||
| Value History (*The County Treasurer 405-713-1300 posts & collects actual tax amounts. Contact information HERE) | |||||||||||||
|---|---|---|---|---|---|---|---|---|---|---|---|---|---|
| Year | Market Value | Taxable Mkt Value | Gross Assessed | Exemption | Net Assessed | Millage | Est. Tax | Tax Savings | |||||
|
2026 |
174,000 |
174,000 |
19,140 |
1,000 |
18,140 |
119.02 |
$2,159 |
$119 |
|||||
|
2025 |
177,000 |
177,000 |
19,470 |
1,000 |
18,470 |
119.02 |
$2,198 |
$119 |
|||||
|
2024 |
170,500 |
130,058 |
14,306 |
0 |
14,306 |
119.70 |
$1,712 |
$532 |
|||||
|
2023 |
153,500 |
123,865 |
13,624 |
0 |
13,624 |
118.33 |
$1,612 |
$386 |
|||||
|
2022 |
139,500 |
117,967 |
12,975 |
0 |
12,975 |
112.69 |
$1,462 |
$267 |
|||||
| Property Account Status/Adjustments/Exemptions | ||
|---|---|---|
| Account # | Exemption Description | Amount |
|
R208301750 |
3% Cap Homestead |
0 |
|
R208301750 |
Homestead |
1,000 |
| Property Deed Transaction History (Recorded in the County Clerk's Office) | |||||||
|---|---|---|---|---|---|---|---|
| Date | Type | Book | Page | Price | Grantor | Grantee | |
|
11/19/2024 |
|
Deeds |
$168,000 |
MELENDEZ AUSTIN M |
BARRAZA LUZ E CHAVEZ |
||
|
7/24/2014 |
|
Deeds |
$107,000 |
RAUSCH COLEMAN HOMES OKC LLC |
MELENDEZ AUSTIN M |
||
|
2/24/2012 |
|
Mult Parcel |
$773,000 |
COURTYARD OF OKC LLC |
RAUSCH COLEMAN HOMES OKC LLC |
||
|
7/10/2008 |
|
Mult Parcel |
$1,840,000 |
ERC LAND DEVELOPMENT GROUP LLC |
COURTYARD OF OKC LLC |
||
| Last Mailed Notice of Value (N.O.V.) Information/History | ||||||||
|---|---|---|---|---|---|---|---|---|
| Year | Date | Market Value | Taxable Market Value | Gross Assessed | Exemption | Net Assessed | ||
|
2025 |
01/31/2025 |
177,000 |
177,000 |
19,470 |
1,000 |
18,470 |
||
|
2024 |
01/22/2024 |
170,500 |
130,058 |
14,306 |
0 |
14,306 |
||
|
2023 |
01/23/2023 |
153,500 |
123,865 |
13,624 |
0 |
13,624 |
||
|
2022 |
02/22/2022 |
139,500 |
117,967 |
12,975 |
0 |
12,975 |
||
|
2021 |
02/24/2021 |
118,500 |
112,350 |
12,358 |
0 |
12,358 |
||
| Property Building Permit History | ||||||
|---|---|---|---|---|---|---|
| Issued | Permit # | Provided by | Bldg # | Description | Est Construction Cost | Status |
|
4/22/2014 |
10462977 |
OKLAHOMA CITY |
1 |
Main Dwellin |
100,000 |
Inactive |
| Click button on building number to access detailed information: | ||||||
|---|---|---|---|---|---|---|
| Bldg # | Vacant/Improved Land | Bldg Description | Year Built | SqFt | # Stories | |
|
1 |
Improved |
Ranch 1 Story |
2014 |
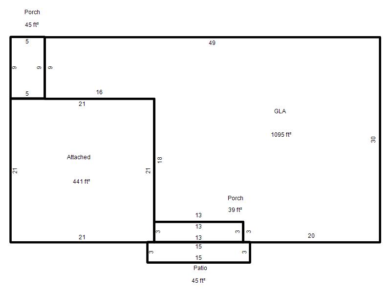
1,095 |
1 Stories |
|