|
|
|
| Larry Stein Oklahoma County Assessor (405) 713-1200 - Public Access System |
|
|
|
|
|
|
| Real Property Display - Screen Produced 3/20/2026 5:55:24 AM | ||||
|---|---|---|---|---|
| Account: R085991235 | Type: Residential | Location: |
6905 SEARS TER |
|
| Building Name/Occupant: |
|
OKLAHOMA CITY |
||
| Owner Name 1: | AMNL ASSET COMPANY 3 LLC |
Parcel PIN#: |
1706-08-599-1235 |
|
| Owner Name 2: | 1/4 section #: |
1706 |
||
| Owner Name 3: | Parent Acct: |
|
||
| Billing Address: | 5001 PLAZA ON THE LK, Unit 200 | Tax District: |
|
|
| City, State, Zip | AUSTIN, TX 78746 | School System: |
Oklahoma City #89 |
|
|
Country: (If noted) |
Land Size: |
0.1515 Acres |
||
|
Land Value: 15,180 |
|
|||
|
Sect 27-T11N-R3W Qtr SE |
CLOVERLEAF MANOR
Block
001
Lot
024
|
|||
| Full Legal Description: CLOVERLEAF MANOR 001 024 |
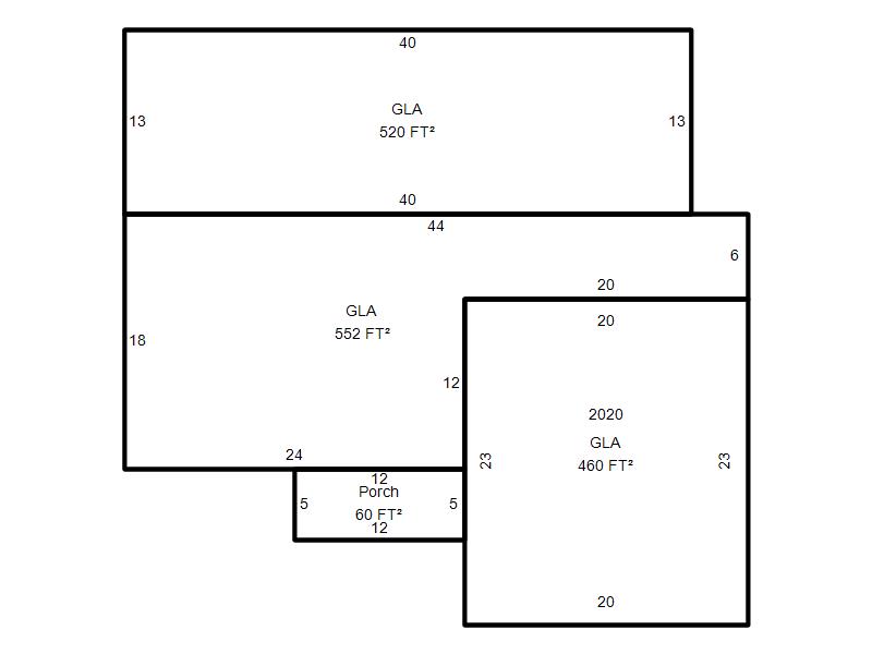
| Photo & Sketch (if available) | Comp Sales (ordered by relevancy) |
|
||||||||||||||||||
|
||||||||||||||||||||
| Value History (*The County Treasurer 405-713-1300 posts & collects actual tax amounts. Contact information HERE) | |||||||||||||
|---|---|---|---|---|---|---|---|---|---|---|---|---|---|
| Year | Market Value | Taxable Mkt Value | Gross Assessed | Exemption | Net Assessed | Millage | Est. Tax | Tax Savings | |||||
|
2025 |
153,000 |
138,915 |
15,280 |
0 |
15,280 |
119.02 |
$1,819 |
$184 |
|||||
|
2024 |
134,000 |
132,300 |
14,553 |
0 |
14,553 |
119.70 |
$1,742 |
$22 |
|||||
|
2023 |
126,000 |
126,000 |
13,860 |
0 |
13,860 |
118.33 |
$1,640 |
$0 |
|||||
|
2022 |
126,000 |
126,000 |
13,860 |
0 |
13,860 |
112.69 |
$1,562 |
$0 |
|||||
|
2021 |
64,500 |
64,500 |
7,095 |
0 |
7,095 |
112.29 |
$797 |
$0 |
|||||
| Property Account Status/Adjustments/Exemptions | ||
|---|---|---|
| Account # | Exemption Description | Amount |
|
R085991235 |
5% Capped Account |
0 |
| Property Deed Transaction History (Recorded in the County Clerk's Office) | ||||||||||
|---|---|---|---|---|---|---|---|---|---|---|
| Date | Type | Book | Page | Price | Grantor | Grantee | ||||
|
7/22/2022 |
|
Mult Parcel |
$2,438,000 |
VM MASTER ISSUER LLC |
AMNL ASSET COMPANY 3 LLC |
|||||
|
3/30/2022 |
|
Mult Parcel |
$16,108,500 |
ARVM 5 LLC |
VM MASTER ISSUER LLC |
|||||
|
5/12/2021 |
|
Deeds |
$130,000 |
ALLEN SHANE |
ARVM 5 LLC |
|||||
|
8/27/2020 |
|
Deeds |
$57,000 |
BECKER LORI A BENNETT |
OKLAHOME INVESTORS LLC |
|||||
|
8/27/2020 |
|
Deeds |
$64,500 |
OKLAHOME INVESTORS LLC |
ALLEN SHANE |
|||||
| Last Mailed Notice of Value (N.O.V.) Information/History | ||||||||
|---|---|---|---|---|---|---|---|---|
| Year | Date | Market Value | Taxable Market Value | Gross Assessed | Exemption | Net Assessed | ||
|
2026 |
02/06/2026 |
154,500 |
145,860 |
16,044 |
0 |
16,044 |
||
|
2025 |
01/31/2025 |
153,000 |
138,915 |
15,280 |
0 |
15,280 |
||
|
2024 |
01/22/2024 |
134,000 |
132,300 |
14,553 |
0 |
14,553 |
||
|
2022 |
02/22/2022 |
126,000 |
126,000 |
13,860 |
0 |
13,860 |
||
|
2021 |
02/24/2021 |
64,500 |
64,500 |
7,095 |
0 |
7,095 |
||
| Property Building Permit History | |||||||||||
|---|---|---|---|---|---|---|---|---|---|---|---|
| Issued | Permit # | Provided by | Bldg # | Description | Est Construction Cost | Status | |||||
| No Building Permit records returned. | |||||||||||
| Click button on building number to access detailed information: | ||||||
|---|---|---|---|---|---|---|
| Bldg # | Vacant/Improved Land | Bldg Description | Year Built | SqFt | # Stories | |
|
1 |
Improved |
Ranch 1 Story |
1960 |
1,532 |
1 Stories |
|