|
|
|
| Larry Stein Oklahoma County Assessor (405) 713-1200 - Public Access System |
|
|
|
|
|
|
| Real Property Display - Screen Produced 3/24/2026 4:47:22 AM | ||||
|---|---|---|---|---|
| Account: R085991305 | Type: Residential | Location: |
508 SE 69TH ST |
|
| Building Name/Occupant: |
|
OKLAHOMA CITY |
||
| Owner Name 1: | TORRES JOSE LUIS |
Parcel PIN#: |
1706-08-599-1305 |
|
| Owner Name 2: | 1/4 section #: |
1706 |
||
| Owner Name 3: | Parent Acct: |
|
||
| Billing Address: | 3147 SW 20TH ST | Tax District: |
|
|
| City, State, Zip | OKLAHOMA CITY, OK 73108-4209 | School System: |
Oklahoma City #89 |
|
|
Country: (If noted) |
Land Size: |
0.1736 Acres |
||
|
Land Value: 17,397 |
|
|||
|
Sect 27-T11N-R3W Qtr SE |
CLOVERLEAF MANOR
Block
002
Lot
003
|
|||
| Full Legal Description: CLOVERLEAF MANOR 002 003 |
| Photo & Sketch (if available) | Comp Sales (ordered by relevancy) |
|
||||||||||||||||||
|
||||||||||||||||||||
| Value History (*The County Treasurer 405-713-1300 posts & collects actual tax amounts. Contact information HERE) | |||||||||||||
|---|---|---|---|---|---|---|---|---|---|---|---|---|---|
| Year | Market Value | Taxable Mkt Value | Gross Assessed | Exemption | Net Assessed | Millage | Est. Tax | Tax Savings | |||||
|
2025 |
88,000 |
61,898 |
6,808 |
0 |
6,808 |
119.02 |
$810 |
$342 |
|||||
|
2024 |
81,000 |
58,951 |
6,483 |
0 |
6,483 |
119.70 |
$776 |
$290 |
|||||
|
2023 |
73,000 |
56,144 |
6,175 |
0 |
6,175 |
118.33 |
$731 |
$219 |
|||||
|
2022 |
64,000 |
53,471 |
5,881 |
0 |
5,881 |
112.69 |
$663 |
$131 |
|||||
|
2021 |
53,500 |
50,925 |
5,601 |
0 |
5,601 |
112.29 |
$629 |
$32 |
|||||
| Property Account Status/Adjustments/Exemptions | ||
|---|---|---|
| Account # | Exemption Description | Amount |
|
R085991305 |
5% Capped Account |
0 |
| Property Deed Transaction History (Recorded in the County Clerk's Office) | ||||||||||
|---|---|---|---|---|---|---|---|---|---|---|
| Date | Type | Book | Page | Price | Grantor | Grantee | ||||
|
8/20/2014 |
|
Hmstd Off & |
$0 |
TORRES TERESA |
TORRES JOSE LUIS |
|||||
|
10/27/2003 |
|
Deeds |
$0 |
TORRES JOSE & TERESA D |
TORRES TERESA |
|||||
|
3/3/1999 |
|
Historical |
$45,000 |
REALITY HOMES INC |
TORRES JOSE & TERESA D |
|||||
|
3/1/1999 |
|
Historical |
$0 |
NORTHERN INTERCORP INC |
REALITY HOMES INC |
|||||
|
7/23/1998 |
|
Historical |
$18,500 |
KEYSTONE HOMES |
NORTHERN INTERCORP INC |
|||||
| Last Mailed Notice of Value (N.O.V.) Information/History | ||||||||
|---|---|---|---|---|---|---|---|---|
| Year | Date | Market Value | Taxable Market Value | Gross Assessed | Exemption | Net Assessed | ||
|
2026 |
02/06/2026 |
88,500 |
64,992 |
7,148 |
0 |
7,148 |
||
|
2025 |
01/31/2025 |
88,000 |
61,898 |
6,808 |
0 |
6,808 |
||
|
2024 |
01/22/2024 |
81,000 |
58,951 |
6,483 |
0 |
6,483 |
||
|
2023 |
01/23/2023 |
73,000 |
56,144 |
6,175 |
0 |
6,175 |
||
|
2022 |
02/22/2022 |
64,000 |
53,471 |
5,881 |
0 |
5,881 |
||
| Property Building Permit History | |||||||||||
|---|---|---|---|---|---|---|---|---|---|---|---|
| Issued | Permit # | Provided by | Bldg # | Description | Est Construction Cost | Status | |||||
| No Building Permit records returned. | |||||||||||
| Click button on building number to access detailed information: | ||||||
|---|---|---|---|---|---|---|
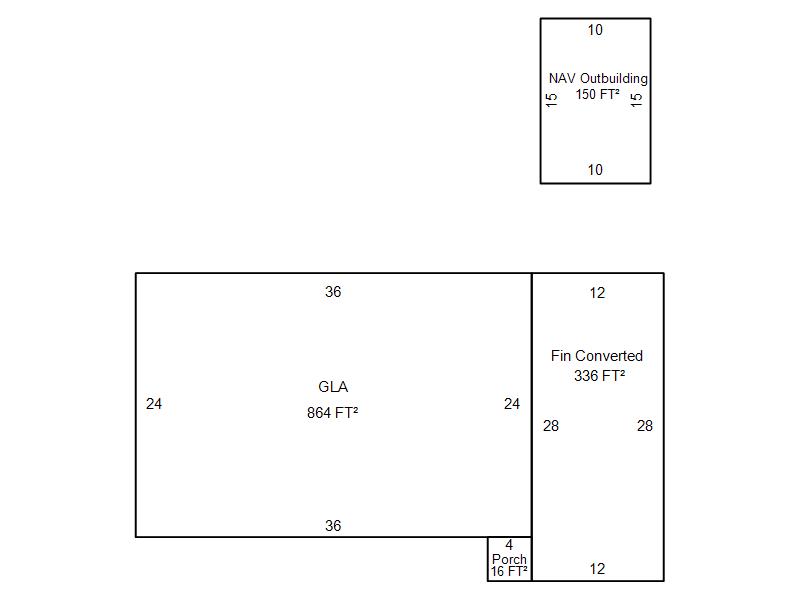
| Bldg # | Vacant/Improved Land | Bldg Description | Year Built | SqFt | # Stories | |
|
1 |
Improved |
Ranch 1 Story |
1959 |
864 |
1 Stories |
|