|
|
|
| Larry Stein Oklahoma County Assessor (405) 713-1200 - Public Access System |
|
|
|
|
|
|
| Real Property Display - Screen Produced 3/22/2026 7:38:57 AM | ||||
|---|---|---|---|---|
| Account: R086050355 | Type: Residential | Location: |
334 SE 59TH ST |
|
| Building Name/Occupant: |
|
OKLAHOMA CITY |
||
| Owner Name 1: | ONE STOP TILE AND GRANITE LLC |
Parcel PIN#: |
1708-08-605-0355 |
|
| Owner Name 2: | 1/4 section #: |
1708 |
||
| Owner Name 3: | Parent Acct: |
|
||
| Billing Address: | 1008 NE 32ND ST | Tax District: |
|
|
| City, State, Zip | MOORE, OK 73160-3102 | School System: |
Oklahoma City #89 |
|
|
Country: (If noted) |
Land Size: |
0.1584 Acres |
||
|
Land Value: 5,520 |
|
|||
|
Sect 27-T11N-R3W Qtr NW |
BEVERLY HILLS SURB RANCHES
Block
002
Lot
000
|
|||
| Full Legal Description: BEVERLY HILLS SURB RANCHES 002 000 W50FT OF E150FT OF N 1/2 EX N11.5FT |
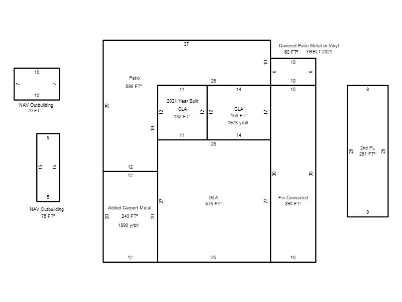
| Photo & Sketch (if available) | Comp Sales (ordered by relevancy) |
|
||||||||||||||||||
|
||||||||||||||||||||
| Value History (*The County Treasurer 405-713-1300 posts & collects actual tax amounts. Contact information HERE) | |||||||||||||
|---|---|---|---|---|---|---|---|---|---|---|---|---|---|
| Year | Market Value | Taxable Mkt Value | Gross Assessed | Exemption | Net Assessed | Millage | Est. Tax | Tax Savings | |||||
|
2025 |
139,500 |
94,606 |
10,406 |
0 |
10,406 |
119.02 |
$1,239 |
$588 |
|||||
|
2024 |
130,000 |
90,101 |
9,910 |
0 |
9,910 |
119.70 |
$1,186 |
$525 |
|||||
|
2023 |
127,000 |
85,811 |
9,439 |
0 |
9,439 |
118.33 |
$1,117 |
$536 |
|||||
|
2022 |
104,000 |
80,773 |
8,884 |
0 |
8,884 |
112.69 |
$1,001 |
$288 |
|||||
|
2021 |
76,500 |
70,260 |
7,728 |
0 |
7,728 |
112.29 |
$868 |
$77 |
|||||
| Property Account Status/Adjustments/Exemptions | ||
|---|---|---|
| Account # | Exemption Description | Amount |
|
R086050355 |
5% Capped Account |
0 |
| Property Deed Transaction History (Recorded in the County Clerk's Office) | ||||||||||
|---|---|---|---|---|---|---|---|---|---|---|
| Date | Type | Book | Page | Price | Grantor | Grantee | ||||
|
10/22/2015 |
|
Deeds |
$60,000 |
CLABAUGH JUNE |
ONE STOP TILE AND GRANITE LLC |
|||||
|
10/31/2014 |
|
Deeds |
$0 |
CLABAUGH JUNE TRACY JACK |
CLABAUGH JUNE |
|||||
|
2/24/2014 |
|
Mult Parcel |
$125,000 |
ZARING KYMBERLY |
CLABAUGH JUNE TRACY JACK |
|||||
|
7/15/2012 |
|
Hmstd Off & |
$0 |
GRANT JERRY L |
ZARING KYMBERLY |
|||||
|
12/19/1994 |
|
Historical |
$0 |
GRANT JERRY L |
GRANT JERRY L |
|||||
| Last Mailed Notice of Value (N.O.V.) Information/History | ||||||||
|---|---|---|---|---|---|---|---|---|
| Year | Date | Market Value | Taxable Market Value | Gross Assessed | Exemption | Net Assessed | ||
|
2026 |
02/06/2026 |
134,000 |
99,336 |
10,926 |
0 |
10,926 |
||
|
2025 |
01/31/2025 |
139,500 |
94,606 |
10,406 |
0 |
10,406 |
||
|
2024 |
01/22/2024 |
130,000 |
90,101 |
9,910 |
0 |
9,910 |
||
|
2023 |
03/02/2023 |
127,000 |
85,811 |
9,439 |
0 |
9,439 |
||
|
2022 |
02/22/2022 |
104,000 |
80,773 |
8,884 |
0 |
8,884 |
||
| Property Building Permit History | ||||||
|---|---|---|---|---|---|---|
| Issued | Permit # | Provided by | Bldg # | Description | Est Construction Cost | Status |
|
10/16/2020 |
|
|
|
Add On |
|
Inactive |
| Click button on building number to access detailed information: | ||||||
|---|---|---|---|---|---|---|
| Bldg # | Vacant/Improved Land | Bldg Description | Year Built | SqFt | # Stories | |
|
1 |
Improved |
1½ Story Fin |
1948 |
1,236 |
1.5 Stories |
|