|
|
|
| Larry Stein Oklahoma County Assessor (405) 713-1200 - Public Access System |
|
|
|
|
|
|
| Real Property Display - Screen Produced 3/22/2026 7:37:41 AM | ||||
|---|---|---|---|---|
| Account: R086055325 | Type: Residential | Location: |
337 SE 62ND ST |
|
| Building Name/Occupant: |
|
OKLAHOMA CITY |
||
| Owner Name 1: | CHAR ONE LLC |
Parcel PIN#: |
1708-08-605-5325 |
|
| Owner Name 2: | 1/4 section #: |
1708 |
||
| Owner Name 3: | Parent Acct: |
|
||
| Billing Address: | 317 SE 61ST ST | Tax District: |
|
|
| City, State, Zip | OKLAHOMA CITY, OK 73149 | School System: |
Oklahoma City #89 |
|
|
Country: (If noted) |
Land Size: |
0.6924 Acres |
||
|
Land Value: 24,128 |
|
|||
|
Sect 27-T11N-R3W Qtr NW |
BEVERLY HILLS SURB RANCHES
Block
000
Lot
000
|
|||
| Full Legal Description: BEVERLY HILLS SURB RANCHES 000 000 E 1/2 OF BLK 18 |
| No comparable sales report available. | ||||||||||||||||||||||
|
||||||||||||||||||||||
| Value History (*The County Treasurer 405-713-1300 posts & collects actual tax amounts. Contact information HERE) | |||||||||||||
|---|---|---|---|---|---|---|---|---|---|---|---|---|---|
| Year | Market Value | Taxable Mkt Value | Gross Assessed | Exemption | Net Assessed | Millage | Est. Tax | Tax Savings | |||||
|
2025 |
64,203 |
64,203 |
7,062 |
0 |
7,062 |
119.02 |
$841 |
$0 |
|||||
|
2024 |
64,351 |
64,351 |
7,078 |
0 |
7,078 |
119.70 |
$847 |
$0 |
|||||
|
2023 |
64,499 |
64,499 |
7,094 |
0 |
7,094 |
118.33 |
$840 |
$0 |
|||||
|
2022 |
197,215 |
131,617 |
14,477 |
1,000 |
13,477 |
112.69 |
$1,519 |
$926 |
|||||
|
2021 |
194,133 |
127,784 |
14,055 |
1,000 |
13,055 |
112.29 |
$1,466 |
$932 |
|||||
| Property Account Status/Adjustments/Exemptions | ||
|---|---|---|
| Account # | Exemption Description | Amount |
|
R086055325 |
5% Capped Account |
0 |
| Property Deed Transaction History (Recorded in the County Clerk's Office) | |||||||
|---|---|---|---|---|---|---|---|
| Date | Type | Book | Page | Price | Grantor | Grantee | |
|
8/5/2022 |
|
Deeds |
$80,000 |
KELLER KENNETH L & TERESA J |
CHAR ONE LLC |
||
|
9/6/2005 |
|
Deeds |
$0 |
BANK ONE ETAL |
KELLER KENNETH L & TERESA J |
||
|
2/7/2000 |
|
Deeds |
$102,000 |
COBURN CAROLYN Y |
KELLER KENNETH L & TERESA J |
||
|
10/9/1991 |
|
Historical |
$0 |
WARD CARL JR & JANE M |
COBURN CAROLYN Y |
||
|
8/1/1985 |
|
Historical |
$0 |
|
WARD CARL JR & JANE M |
||
| Last Mailed Notice of Value (N.O.V.) Information/History | ||||||||
|---|---|---|---|---|---|---|---|---|
| Year | Date | Market Value | Taxable Market Value | Gross Assessed | Exemption | Net Assessed | ||
|
2023 |
01/23/2023 |
300,000 |
300,000 |
33,000 |
0 |
33,000 |
||
|
2022 |
02/22/2022 |
197,215 |
131,617 |
14,476 |
1,000 |
13,476 |
||
|
2021 |
02/24/2021 |
194,133 |
127,784 |
14,056 |
1,000 |
13,056 |
||
|
2020 |
02/21/2020 |
198,285 |
124,063 |
13,646 |
1,000 |
12,646 |
||
|
2019 |
02/26/2019 |
208,785 |
120,450 |
13,249 |
1,000 |
12,249 |
||
| Property Building Permit History | ||||||
|---|---|---|---|---|---|---|
| Issued | Permit # | Provided by | Bldg # | Description | Est Construction Cost | Status |
|
1/11/2023 |
|
|
1 |
Remodeled |
|
Active |
|
4/9/2001 |
10197745 |
OKLAHOMA CITY |
1 |
Burn - Trip |
7,500 |
Inactive |
|
3/28/2001 |
10197744 |
OKLAHOMA CITY |
1 |
Fire Remodel |
25,000 |
Inactive |
|
2/8/1993 |
10197743 |
OKLAHOMA CITY |
1 |
Main Dwellin |
25,000 |
Inactive |
| Click button on building number to access detailed information: | ||||||
|---|---|---|---|---|---|---|
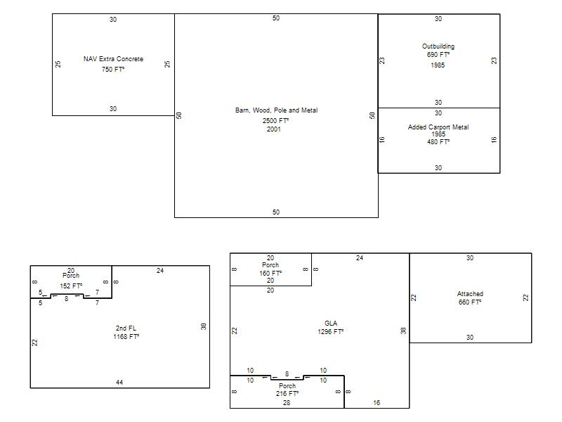
| Bldg # | Vacant/Improved Land | Bldg Description | Year Built | SqFt | # Stories | |
|
1 |
Improved |
Salvage |
1982 |
2,464 |
2 Stories |
|