|
|
|
| Larry Stein Oklahoma County Assessor (405) 713-1200 - Public Access System |
|
|
|
|
|
|
| Real Property Display - Screen Produced 3/22/2026 7:37:41 AM | ||||
|---|---|---|---|---|
| Account: R086057840 | Type: Residential | Location: |
301 SE 64TH ST |
|
| Building Name/Occupant: |
|
OKLAHOMA CITY |
||
| Owner Name 1: | LOPEZ ENTERPRISE LLC |
Parcel PIN#: |
1708-08-605-7840 |
|
| Owner Name 2: | 1/4 section #: |
1708 |
||
| Owner Name 3: | Parent Acct: |
|
||
| Billing Address: | 301 SE 64TH ST | Tax District: |
|
|
| City, State, Zip | OKLAHOMA CITY, OK 73149-1303 | School System: |
Oklahoma City #89 |
|
|
Country: (If noted) |
Land Size: |
2.0041 Acres |
||
|
Land Value: 41,904 |
|
|||
|
Sect 27-T11N-R3W Qtr NW |
BEVERLY HILLS SURB RANCHES
Block
022
Lot
000
|
|||
| Full Legal Description: BEVERLY HILLS SURB RANCHES 022 000 W 1/2 |
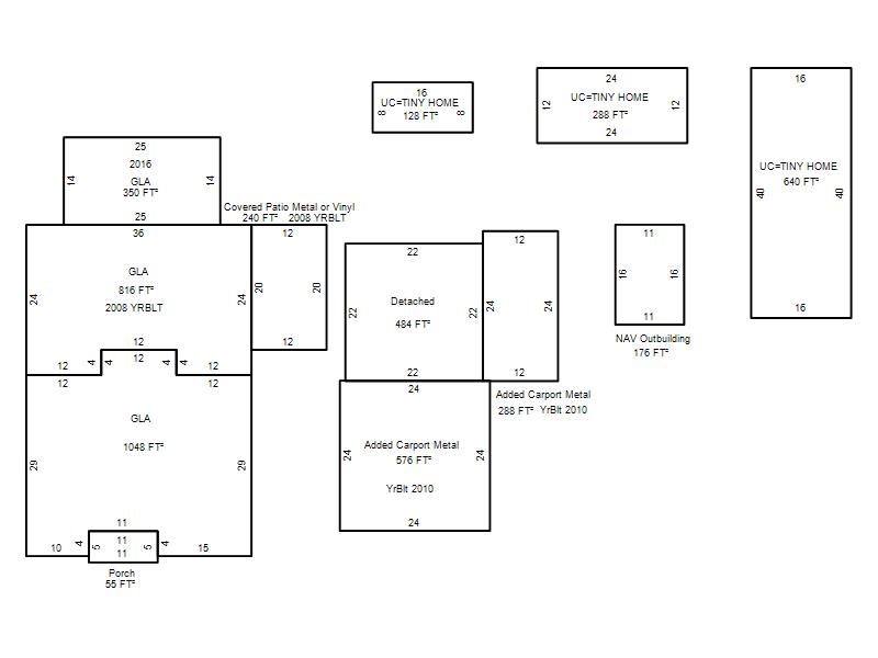
| Photo & Sketch (if available) | Comp Sales (ordered by relevancy) |
|
||||||||||||||||||
|
||||||||||||||||||||
| Value History (*The County Treasurer 405-713-1300 posts & collects actual tax amounts. Contact information HERE) | |||||||||||||
|---|---|---|---|---|---|---|---|---|---|---|---|---|---|
| Year | Market Value | Taxable Mkt Value | Gross Assessed | Exemption | Net Assessed | Millage | Est. Tax | Tax Savings | |||||
|
2025 |
192,000 |
94,307 |
10,372 |
0 |
10,372 |
119.02 |
$1,235 |
$1,279 |
|||||
|
2024 |
175,500 |
89,817 |
9,879 |
9,879 |
0 |
119.70 |
$0 |
$2,311 |
|||||
|
2023 |
172,500 |
87,201 |
9,591 |
9,591 |
0 |
118.33 |
$0 |
$2,245 |
|||||
|
2022 |
152,000 |
84,662 |
9,312 |
9,312 |
0 |
112.69 |
$0 |
$1,884 |
|||||
|
2021 |
124,500 |
82,197 |
9,041 |
9,041 |
0 |
112.29 |
$0 |
$1,538 |
|||||
| Property Account Status/Adjustments/Exemptions | ||||||
|---|---|---|---|---|---|---|
| Account # | Exemption Description | Amount | ||||
| No adjustment/exemption records returned. | ||||||
| Property Deed Transaction History (Recorded in the County Clerk's Office) | ||||||||||
|---|---|---|---|---|---|---|---|---|---|---|
| Date | Type | Book | Page | Price | Grantor | Grantee | ||||
|
1/29/2025 |
|
Deeds |
$210,000 |
WARREN GLENN WAYLON |
LOPEZ ENTERPRISE LLC |
|||||
|
7/12/2016 |
|
Deeds |
$0 |
WARREN GLENN W & BRENDA L |
WARREN GLENN WAYLON |
|||||
|
11/7/1996 |
|
Historical |
$63,000 |
WELSH KENT L & CHERALYN CO TRS |
WARREN GLENN W & BRENDA L |
|||||
|
9/22/1995 |
|
Historical |
$0 |
WELSH KENT L |
WELSH KENT L & CHERALYN CO TRS |
|||||
|
9/19/1995 |
|
Historical |
$0 |
WELSH KENT L |
WELSH KENT L |
|||||
| Last Mailed Notice of Value (N.O.V.) Information/History | ||||||||
|---|---|---|---|---|---|---|---|---|
| Year | Date | Market Value | Taxable Market Value | Gross Assessed | Exemption | Net Assessed | ||
|
2026 |
02/06/2026 |
195,000 |
195,000 |
21,450 |
0 |
21,450 |
||
|
2025 |
01/31/2025 |
192,000 |
92,511 |
10,175 |
10,175 |
0 |
||
|
2025 |
03/28/2025 |
192,000 |
94,307 |
10,372 |
0 |
10,372 |
||
|
2024 |
01/22/2024 |
175,500 |
89,817 |
9,879 |
9,879 |
0 |
||
|
2023 |
01/23/2023 |
172,500 |
87,201 |
9,591 |
9,591 |
0 |
||
| Property Building Permit History | ||||||
|---|---|---|---|---|---|---|
| Issued | Permit # | Provided by | Bldg # | Description | Est Construction Cost | Status |
|
6/8/2005 |
10299529 |
OKLAHOMA CITY |
1 |
Fire Remodel |
25,000 |
Inactive |
|
12/26/2004 |
10299282 |
OKLAHOMA CITY |
1 |
Burn - Trip |
5,000 |
Inactive |
| Click button on building number to access detailed information: | ||||||
|---|---|---|---|---|---|---|
| Bldg # | Vacant/Improved Land | Bldg Description | Year Built | SqFt | # Stories | |
|
1 |
Improved |
Ranch 1 Story |
1948 |
2,214 |
1 Stories |
|