|
|
|
| Larry Stein Oklahoma County Assessor (405) 713-1200 - Public Access System |
|
|
|
|
|
|
| Real Property Display - Screen Produced 3/22/2026 7:37:40 AM | ||||
|---|---|---|---|---|
| Account: R086058400 | Type: Residential | Location: |
328 SE 64TH ST |
|
| Building Name/Occupant: |
|
OKLAHOMA CITY |
||
| Owner Name 1: | MARTINEZ EDUARDO CALDERON |
Parcel PIN#: |
1708-08-605-8400 |
|
| Owner Name 2: | GUERRERO MARIA JARAMILLO | 1/4 section #: |
1708 |
|
| Owner Name 3: | Parent Acct: |
|
||
| Billing Address: | 328 SE 64TH ST | Tax District: |
|
|
| City, State, Zip | OKLAHOMA CITY, OK 73149 | School System: |
Oklahoma City #89 |
|
|
Country: (If noted) |
Land Size: |
0.3058 Acres |
||
|
Land Value: 10,657 |
|
|||
|
Sect 27-T11N-R3W Qtr NW |
BEVERLY HILLS SURB RANCHES
Block
023
Lot
000
|
|||
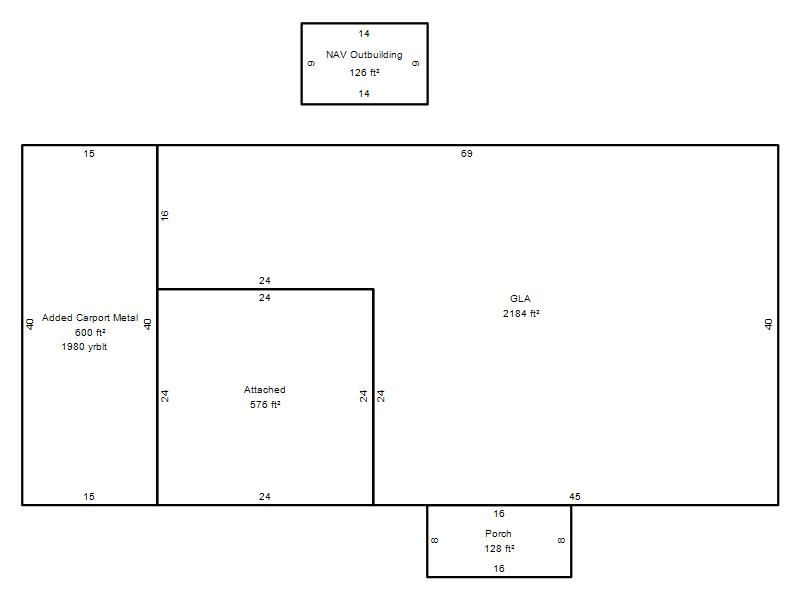
| Full Legal Description: BEVERLY HILLS SURB RANCHES 023 000 BEG NW/C E/2 OF SD BLK 23 TH E121.70FT S109FT W19.70FT S22FTW102FT N131FT TO BEG |
| Photo & Sketch (if available) | Comp Sales (ordered by relevancy) |
|
||||||||||||||||||
|
||||||||||||||||||||
| Value History (*The County Treasurer 405-713-1300 posts & collects actual tax amounts. Contact information HERE) | |||||||||||||
|---|---|---|---|---|---|---|---|---|---|---|---|---|---|
| Year | Market Value | Taxable Mkt Value | Gross Assessed | Exemption | Net Assessed | Millage | Est. Tax | Tax Savings | |||||
|
2025 |
213,000 |
136,277 |
14,989 |
0 |
14,989 |
119.02 |
$1,784 |
$1,004 |
|||||
|
2024 |
201,500 |
129,788 |
14,275 |
1,000 |
13,275 |
119.70 |
$1,589 |
$1,064 |
|||||
|
2023 |
197,500 |
126,008 |
13,860 |
1,000 |
12,860 |
118.33 |
$1,522 |
$1,049 |
|||||
|
2022 |
166,500 |
122,338 |
13,456 |
1,000 |
12,456 |
112.69 |
$1,404 |
$660 |
|||||
|
2021 |
135,500 |
118,775 |
13,064 |
1,000 |
12,064 |
112.29 |
$1,355 |
$319 |
|||||
| Property Account Status/Adjustments/Exemptions | ||||||
|---|---|---|---|---|---|---|
| Account # | Exemption Description | Amount | ||||
| No adjustment/exemption records returned. | ||||||
| Property Deed Transaction History (Recorded in the County Clerk's Office) | ||||||||||
|---|---|---|---|---|---|---|---|---|---|---|
| Date | Type | Book | Page | Price | Grantor | Grantee | ||||
|
7/16/2025 |
|
Deeds |
$121,000 |
ATLAS ACQUISITIONS LLC |
MARTINEZ EDUARDO CALDERON |
|||||
|
7/16/2025 |
|
Deeds |
$99,000 |
MANOWSKI RICKEY L |
ATLAS ACQUISITIONS LLC |
|||||
|
8/17/2007 |
|
Hmstd Off & |
$0 |
LUKER JAMES H & DORIS R TRS LUKER JAMES H FAMILY TRUST |
LUKER JACKIE SUE |
|||||
|
12/2/2006 |
|
Hmstd Off & |
$0 |
LUKER JACKIE SUE |
MANOWSKI RICKEY L |
|||||
|
11/25/1997 |
|
Historical |
$0 |
LUKER JAMES H & DORIS R TRS |
LUKER JAMES H & DORIS R TRS |
|||||
| Last Mailed Notice of Value (N.O.V.) Information/History | ||||||||
|---|---|---|---|---|---|---|---|---|
| Year | Date | Market Value | Taxable Market Value | Gross Assessed | Exemption | Net Assessed | ||
|
2026 |
02/06/2026 |
213,500 |
213,500 |
23,485 |
0 |
23,485 |
||
|
2025 |
01/31/2025 |
213,000 |
136,277 |
14,989 |
0 |
14,989 |
||
|
2024 |
01/22/2024 |
201,500 |
129,788 |
14,275 |
1,000 |
13,275 |
||
|
2023 |
01/23/2023 |
197,500 |
126,008 |
13,860 |
1,000 |
12,860 |
||
|
2022 |
02/22/2022 |
166,500 |
122,338 |
13,455 |
1,000 |
12,455 |
||
| Property Building Permit History | |||||||||||
|---|---|---|---|---|---|---|---|---|---|---|---|
| Issued | Permit # | Provided by | Bldg # | Description | Est Construction Cost | Status | |||||
| No Building Permit records returned. | |||||||||||
| Click button on building number to access detailed information: | ||||||
|---|---|---|---|---|---|---|
| Bldg # | Vacant/Improved Land | Bldg Description | Year Built | SqFt | # Stories | |
|
1 |
Improved |
Ranch 1 Story |
1974 |
2,184 |
1 Stories |
|