|
|
|
| Larry Stein Oklahoma County Assessor (405) 713-1200 - Public Access System |
|
|
|
|
|
|
| Real Property Display - Screen Produced 3/22/2026 4:17:31 AM | ||||
|---|---|---|---|---|
| Account: R109741420 | Type: Residential | Location: |
17 SW 66TH ST |
|
| Building Name/Occupant: |
|
OKLAHOMA CITY |
||
| Owner Name 1: | JAMIE JOSE D PALACIO |
Parcel PIN#: |
1709-10-974-1420 |
|
| Owner Name 2: | 1/4 section #: |
1709 |
||
| Owner Name 3: | Parent Acct: |
|
||
| Billing Address: | 17 SW 66TH ST | Tax District: |
|
|
| City, State, Zip | OKLAHOMA CITY , OK 73139 | School System: |
Oklahoma City #89 |
|
|
Country: (If noted) |
Land Size: |
0.1791 Acres |
||
|
Land Value: 34,320 |
|
|||
|
Sect 28-T11N-R3W Qtr NE |
SOUTHERN OAKS SEC 2
Block
013
Lot
025
|
|||
| Full Legal Description: SOUTHERN OAKS SEC 2 013 025 |
| Photo & Sketch (if available) | Comp Sales (ordered by relevancy) |
|
||||||||||||||||||
|
||||||||||||||||||||
| Value History (*The County Treasurer 405-713-1300 posts & collects actual tax amounts. Contact information HERE) | |||||||||||||
|---|---|---|---|---|---|---|---|---|---|---|---|---|---|
| Year | Market Value | Taxable Mkt Value | Gross Assessed | Exemption | Net Assessed | Millage | Est. Tax | Tax Savings | |||||
|
2025 |
188,500 |
149,323 |
16,425 |
0 |
16,425 |
119.02 |
$1,955 |
$513 |
|||||
|
2024 |
184,000 |
142,213 |
15,642 |
0 |
15,642 |
119.70 |
$1,873 |
$550 |
|||||
|
2023 |
170,500 |
135,441 |
14,898 |
0 |
14,898 |
118.33 |
$1,763 |
$456 |
|||||
|
2022 |
148,500 |
128,992 |
14,188 |
0 |
14,188 |
112.69 |
$1,599 |
$242 |
|||||
|
2021 |
129,500 |
122,850 |
13,513 |
0 |
13,513 |
112.29 |
$1,517 |
$82 |
|||||
| Property Account Status/Adjustments/Exemptions | ||
|---|---|---|
| Account # | Exemption Description | Amount |
|
R109741420 |
5% Capped Account |
0 |
| Property Deed Transaction History (Recorded in the County Clerk's Office) | ||||||||||
|---|---|---|---|---|---|---|---|---|---|---|
| Date | Type | Book | Page | Price | Grantor | Grantee | ||||
|
11/27/2017 |
|
Deeds |
$108,000 |
GRIFFIN LARRY |
JAMIE JOSE D PALACIO |
|||||
|
10/4/2017 |
|
Deeds |
$74,000 |
JENKINS RANDAL L TRS |
GRIFFIN LARRY |
|||||
|
7/15/2017 |
|
Hmstd Off & |
$0 |
JENKINS N JOANNE |
JENKINS RANDAL L TRS |
|||||
|
5/25/2017 |
|
Hmstd Off & |
$0 |
JENKINS ASA L & N JOANNE |
JENKINS N JOANNE |
|||||
|
11/18/2010 |
|
Deeds |
$0 |
DAVIS NOVA B LF EST JENKINS ASA L & N JOANNE |
JENKINS ASA L & N JOANNE |
|||||
| Last Mailed Notice of Value (N.O.V.) Information/History | ||||||||
|---|---|---|---|---|---|---|---|---|
| Year | Date | Market Value | Taxable Market Value | Gross Assessed | Exemption | Net Assessed | ||
|
2026 |
02/06/2026 |
193,500 |
156,789 |
17,246 |
0 |
17,246 |
||
|
2025 |
01/31/2025 |
188,500 |
149,323 |
16,425 |
0 |
16,425 |
||
|
2024 |
01/22/2024 |
184,000 |
142,213 |
15,642 |
0 |
15,642 |
||
|
2023 |
01/23/2023 |
170,500 |
135,441 |
14,898 |
0 |
14,898 |
||
|
2022 |
02/22/2022 |
148,500 |
128,992 |
14,188 |
0 |
14,188 |
||
| Property Building Permit History | |||||||||||
|---|---|---|---|---|---|---|---|---|---|---|---|
| Issued | Permit # | Provided by | Bldg # | Description | Est Construction Cost | Status | |||||
| No Building Permit records returned. | |||||||||||
| Click button on building number to access detailed information: | ||||||
|---|---|---|---|---|---|---|
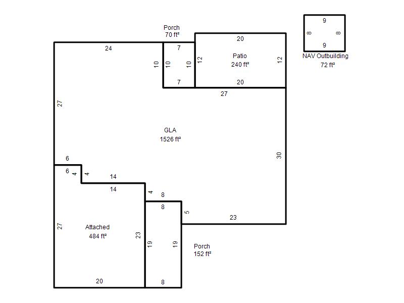
| Bldg # | Vacant/Improved Land | Bldg Description | Year Built | SqFt | # Stories | |
|
1 |
Improved |
Ranch 1 Story |
1970 |
1,526 |
1 Stories |
|