|
|
|
| Larry Stein Oklahoma County Assessor (405) 713-1200 - Public Access System |
|
|
|
|
|
|
| Real Property Display - Screen Produced 3/24/2026 4:47:22 AM | ||||
|---|---|---|---|---|
| Account: R109741920 | Type: Residential | Location: |
412 SW 65TH ST |
|
| Building Name/Occupant: |
|
OKLAHOMA CITY |
||
| Owner Name 1: | REYES MARIA L |
Parcel PIN#: |
1709-10-974-1920 |
|
| Owner Name 2: | 1/4 section #: |
1709 |
||
| Owner Name 3: | Parent Acct: |
|
||
| Billing Address: | 412 SW 65TH ST | Tax District: |
|
|
| City, State, Zip | OKLAHOMA CITY, OK 73139 | School System: |
Oklahoma City #89 |
|
|
Country: (If noted) |
Land Size: |
0.1768 Acres |
||
|
Land Value: 33,880 |
|
|||
|
Sect 28-T11N-R3W Qtr NE |
SOUTHERN OAKS SEC 2
Block
020
Lot
004
|
|||
| Full Legal Description: SOUTHERN OAKS SEC 2 020 004 |
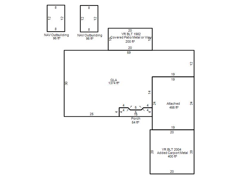
| Photo & Sketch (if available) | Comp Sales (ordered by relevancy) |
|
||||||||||||||||||
|
||||||||||||||||||||
| Value History (*The County Treasurer 405-713-1300 posts & collects actual tax amounts. Contact information HERE) | |||||||||||||
|---|---|---|---|---|---|---|---|---|---|---|---|---|---|
| Year | Market Value | Taxable Mkt Value | Gross Assessed | Exemption | Net Assessed | Millage | Est. Tax | Tax Savings | |||||
|
2025 |
200,000 |
168,954 |
18,583 |
0 |
18,583 |
119.02 |
$2,212 |
$406 |
|||||
|
2024 |
196,500 |
160,909 |
17,699 |
0 |
17,699 |
119.70 |
$2,119 |
$469 |
|||||
|
2023 |
181,500 |
153,247 |
16,856 |
0 |
16,856 |
118.33 |
$1,995 |
$368 |
|||||
|
2022 |
159,500 |
145,950 |
16,054 |
0 |
16,054 |
112.69 |
$1,809 |
$168 |
|||||
|
2021 |
139,000 |
139,000 |
15,290 |
0 |
15,290 |
112.29 |
$1,717 |
$0 |
|||||
| Property Account Status/Adjustments/Exemptions | ||
|---|---|---|
| Account # | Exemption Description | Amount |
|
R109741920 |
5% Capped Account |
0 |
| Property Deed Transaction History (Recorded in the County Clerk's Office) | ||||||||||
|---|---|---|---|---|---|---|---|---|---|---|
| Date | Type | Book | Page | Price | Grantor | Grantee | ||||
|
8/24/2020 |
|
Deeds |
$142,500 |
MOORE WILLIAM E JR & MONA B |
REYES MARIA L |
|||||
|
11/28/2007 |
|
Deeds |
$110,000 |
JACKSON CHARLES E TRS JACKSON CHARLES E 2003 REV TRUST |
MOORE WILLIAM E JR & MONA B |
|||||
|
12/3/2003 |
|
Deeds |
$0 |
JACKSON CHARLES E |
JACKSON CHARLES E TRS JACKSON CHARLES E 2003 REV TRUST |
|||||
|
7/1/1993 |
|
Historical |
$62,000 |
COPPOLA BONNIE R |
JACKSON CHARLES E |
|||||
|
8/29/1990 |
|
Historical |
$64,500 |
JACKSON JIMMY DALE |
COPPOLA BONNIE R |
|||||
| Last Mailed Notice of Value (N.O.V.) Information/History | ||||||||
|---|---|---|---|---|---|---|---|---|
| Year | Date | Market Value | Taxable Market Value | Gross Assessed | Exemption | Net Assessed | ||
|
2026 |
02/06/2026 |
207,000 |
177,401 |
19,513 |
0 |
19,513 |
||
|
2025 |
01/31/2025 |
200,000 |
168,954 |
18,583 |
0 |
18,583 |
||
|
2024 |
01/22/2024 |
196,500 |
160,909 |
17,699 |
0 |
17,699 |
||
|
2023 |
01/23/2023 |
181,500 |
153,247 |
16,856 |
0 |
16,856 |
||
|
2022 |
02/22/2022 |
159,500 |
145,950 |
16,054 |
0 |
16,054 |
||
| Property Building Permit History | |||||||||||
|---|---|---|---|---|---|---|---|---|---|---|---|
| Issued | Permit # | Provided by | Bldg # | Description | Est Construction Cost | Status | |||||
| No Building Permit records returned. | |||||||||||
| Click button on building number to access detailed information: | ||||||
|---|---|---|---|---|---|---|
| Bldg # | Vacant/Improved Land | Bldg Description | Year Built | SqFt | # Stories | |
|
1 |
Improved |
Ranch 1 Story |
1966 |
1,374 |
1 Stories |
|