|
|
|
| Larry Stein Oklahoma County Assessor (405) 713-1200 - Public Access System |
|
|
|
|
|
|
| Real Property Display - Screen Produced 4/5/2026 5:29:46 AM | ||||
|---|---|---|---|---|
| Account: R102931345 | Type: Residential | Location: |
7012 S SHARTEL AVE |
|
| Building Name/Occupant: |
|
OKLAHOMA CITY |
||
| Owner Name 1: | FLORES GONZALES ADRIAN |
Parcel PIN#: |
1711-10-293-1345 |
|
| Owner Name 2: | FLORES FATINA | 1/4 section #: |
1711 |
|
| Owner Name 3: | Parent Acct: |
|
||
| Billing Address: | 7012 S SHARTEL AVE | Tax District: |
|
|
| City, State, Zip | OKLAHOMA CITY, OK 73139-4414 | School System: |
Oklahoma City #89 |
|
|
Country: (If noted) |
Land Size: |
0.2717 Acres |
||
|
Land Value: 30,184 |
|
|||
|
Sect 28-T11N-R3W Qtr SW |
SOUTH WOODVIEW SEC 2
Block
008
Lot
000
|
|||
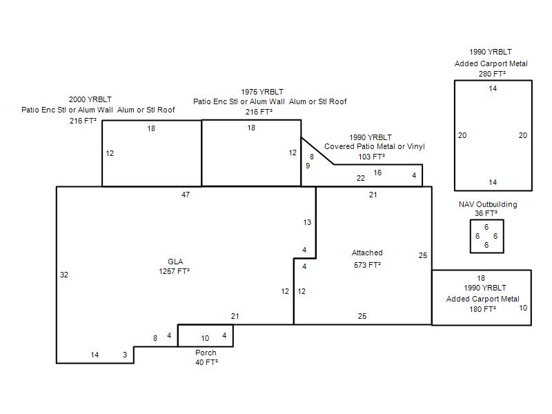
| Full Legal Description: SOUTH WOODVIEW SEC 2 008 000 ALL LOT 17 & W30FT OF LOT 18 |
| Photo & Sketch (if available) | Comp Sales (ordered by relevancy) |
|
||||||||||||||||||
|
||||||||||||||||||||
| Value History (*The County Treasurer 405-713-1300 posts & collects actual tax amounts. Contact information HERE) | |||||||||||||
|---|---|---|---|---|---|---|---|---|---|---|---|---|---|
| Year | Market Value | Taxable Mkt Value | Gross Assessed | Exemption | Net Assessed | Millage | Est. Tax | Tax Savings | |||||
|
2026 |
181,000 |
139,368 |
15,330 |
0 |
15,330 |
119.02 |
$1,825 |
$545 |
|||||
|
2025 |
183,000 |
132,732 |
14,600 |
0 |
14,600 |
119.02 |
$1,738 |
$658 |
|||||
|
2024 |
167,500 |
126,412 |
13,905 |
0 |
13,905 |
119.70 |
$1,664 |
$541 |
|||||
|
2023 |
150,000 |
120,393 |
13,242 |
0 |
13,242 |
118.33 |
$1,567 |
$385 |
|||||
|
2022 |
137,500 |
114,660 |
12,612 |
0 |
12,612 |
112.69 |
$1,421 |
$283 |
|||||
| Property Account Status/Adjustments/Exemptions | ||
|---|---|---|
| Account # | Exemption Description | Amount |
|
R102931345 |
5% Capped Account |
0 |
| Property Deed Transaction History (Recorded in the County Clerk's Office) | ||||||||||
|---|---|---|---|---|---|---|---|---|---|---|
| Date | Type | Book | Page | Price | Grantor | Grantee | ||||
|
2/10/2017 |
|
Deeds |
$0 |
WOMACK DALE & MARILYN |
WOMACK MARILYN |
|||||
|
2/10/2017 |
|
Deeds |
$84,500 |
WOMACK MARILYN A TRS WOMACK MARILYN A LIVING TRUST |
FLORES GONZALES ADRIAN |
|||||
|
10/10/2003 |
|
Deeds |
$0 |
WOMACK MARILYN A |
WOMACK MARILYN A TRS WOMACK MARILYN A LIVING TRUST |
|||||
|
4/30/1998 |
|
Historical |
$0 |
WOMACK MARILYN A |
WOMACK MARILYN A |
|||||
|
1/16/1997 |
|
Historical |
$0 |
WOMACK MARILYN A |
WOMACK MARILYN A |
|||||
| Last Mailed Notice of Value (N.O.V.) Information/History | ||||||||
|---|---|---|---|---|---|---|---|---|
| Year | Date | Market Value | Taxable Market Value | Gross Assessed | Exemption | Net Assessed | ||
|
2026 |
02/06/2026 |
181,000 |
139,368 |
15,330 |
0 |
15,330 |
||
|
2025 |
01/31/2025 |
183,000 |
132,732 |
14,600 |
0 |
14,600 |
||
|
2024 |
01/22/2024 |
167,500 |
126,412 |
13,905 |
0 |
13,905 |
||
|
2023 |
01/23/2023 |
150,000 |
120,393 |
13,242 |
0 |
13,242 |
||
|
2022 |
02/22/2022 |
137,500 |
114,660 |
12,612 |
0 |
12,612 |
||
| Property Building Permit History | ||||||
|---|---|---|---|---|---|---|
| Issued | Permit # | Provided by | Bldg # | Description | Est Construction Cost | Status |
|
4/5/2000 |
10201970 |
OKLAHOMA CITY |
1 |
Other |
2,000 |
Inactive |
|
10/6/1992 |
10201969 |
OKLAHOMA CITY |
1 |
Add On |
6,795 |
Inactive |
| Click button on building number to access detailed information: | ||||||
|---|---|---|---|---|---|---|
| Bldg # | Vacant/Improved Land | Bldg Description | Year Built | SqFt | # Stories | |
|
1 |
Improved |
Ranch 1 Story |
1963 |
1,257 |
1 Stories |
|