|
|
|
| Larry Stein Oklahoma County Assessor (405) 713-1200 - Public Access System |
|
|
|
|
|
|
| Real Property Display - Screen Produced 4/5/2026 5:29:47 AM | ||||
|---|---|---|---|---|
| Account: R102931885 | Type: Residential | Location: |
520 SW 71ST ST |
|
| Building Name/Occupant: |
|
OKLAHOMA CITY |
||
| Owner Name 1: | LE HONG LAM CONG |
Parcel PIN#: |
1711-10-293-1885 |
|
| Owner Name 2: | HOANG THANH NHUNG T | 1/4 section #: |
1711 |
|
| Owner Name 3: | Parent Acct: |
|
||
| Billing Address: | 3009 SW 137TH ST | Tax District: |
|
|
| City, State, Zip | OKLAHOMA CITY, OK 73170-5147 | School System: |
Oklahoma City #89 |
|
|
Country: (If noted) |
Land Size: |
0.1961 Acres |
||
|
Land Value: 21,777 |
|
|||
|
Sect 28-T11N-R3W Qtr SW |
SOUTH WOODVIEW SEC 2
Block
010
Lot
004
|
|||
| Full Legal Description: SOUTH WOODVIEW SEC 2 010 004 |
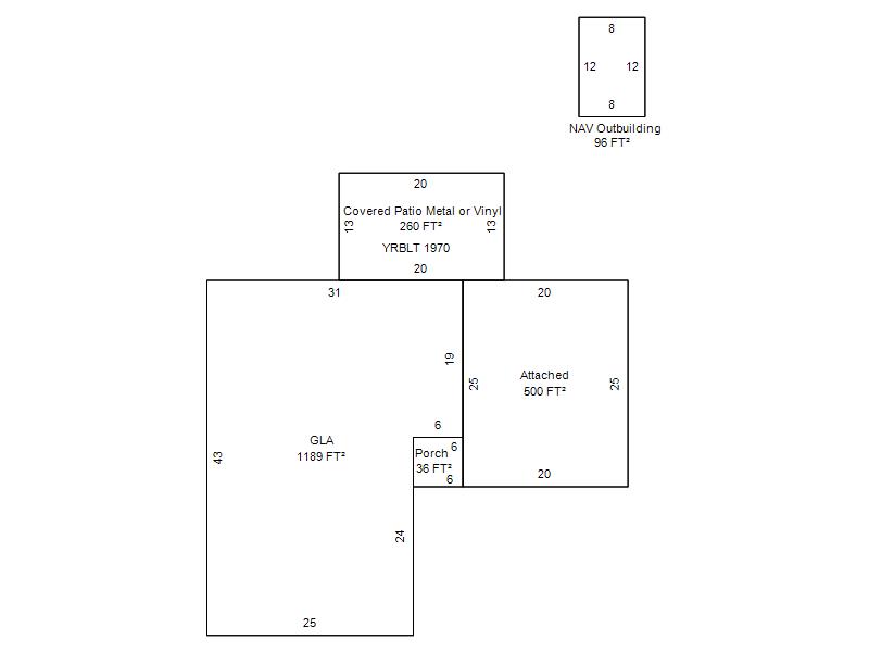
| Photo & Sketch (if available) | Comp Sales (ordered by relevancy) |
|
||||||||||||||||||
|
||||||||||||||||||||
| Value History (*The County Treasurer 405-713-1300 posts & collects actual tax amounts. Contact information HERE) | |||||||||||||
|---|---|---|---|---|---|---|---|---|---|---|---|---|---|
| Year | Market Value | Taxable Mkt Value | Gross Assessed | Exemption | Net Assessed | Millage | Est. Tax | Tax Savings | |||||
|
2026 |
175,500 |
127,976 |
14,077 |
0 |
14,077 |
119.02 |
$1,675 |
$622 |
|||||
|
2025 |
176,500 |
121,882 |
13,406 |
0 |
13,406 |
119.02 |
$1,596 |
$715 |
|||||
|
2024 |
158,500 |
116,079 |
12,768 |
0 |
12,768 |
119.70 |
$1,528 |
$559 |
|||||
|
2023 |
143,000 |
110,552 |
12,160 |
0 |
12,160 |
118.33 |
$1,439 |
$422 |
|||||
|
2022 |
129,500 |
105,288 |
11,581 |
0 |
11,581 |
112.69 |
$1,305 |
$300 |
|||||
| Property Account Status/Adjustments/Exemptions | ||
|---|---|---|
| Account # | Exemption Description | Amount |
|
R102931885 |
5% Capped Account |
0 |
| Property Deed Transaction History (Recorded in the County Clerk's Office) | |||||||
|---|---|---|---|---|---|---|---|
| Date | Type | Book | Page | Price | Grantor | Grantee | |
|
3/10/2017 |
|
Deeds |
$86,000 |
MAX MARY K IRREV TRUST |
LE HONG LAM CONG |
||
|
2/1/2012 |
|
Other |
$0 |
MAX MARY K TRS MAX MARY K REV TRUST |
MAX MARY K IRREV TRUST |
||
|
2/21/2008 |
|
Deeds |
$0 |
MAX MARY K |
MAX MARY K TRS MAX MARY K REV TRUST |
||
|
7/3/2002 |
|
Deeds |
$0 |
MAX WM L & MARY K |
MAX MARY K |
||
|
11/11/1911 |
|
Historical |
$0 |
|
MAX WM L & MARY K |
||
| Last Mailed Notice of Value (N.O.V.) Information/History | ||||||||
|---|---|---|---|---|---|---|---|---|
| Year | Date | Market Value | Taxable Market Value | Gross Assessed | Exemption | Net Assessed | ||
|
2026 |
02/06/2026 |
175,500 |
127,976 |
14,077 |
0 |
14,077 |
||
|
2025 |
01/31/2025 |
176,500 |
121,882 |
13,406 |
0 |
13,406 |
||
|
2024 |
01/22/2024 |
158,500 |
116,079 |
12,768 |
0 |
12,768 |
||
|
2023 |
01/23/2023 |
143,000 |
110,552 |
12,160 |
0 |
12,160 |
||
|
2022 |
02/22/2022 |
129,500 |
105,288 |
11,581 |
0 |
11,581 |
||
| Property Building Permit History | |||||||||||
|---|---|---|---|---|---|---|---|---|---|---|---|
| Issued | Permit # | Provided by | Bldg # | Description | Est Construction Cost | Status | |||||
| No Building Permit records returned. | |||||||||||
| Click button on building number to access detailed information: | ||||||
|---|---|---|---|---|---|---|
| Bldg # | Vacant/Improved Land | Bldg Description | Year Built | SqFt | # Stories | |
|
1 |
Improved |
Ranch 1 Story |
1963 |
1,189 |
1 Stories |
|