|
|
|
| Larry Stein Oklahoma County Assessor (405) 713-1200 - Public Access System |
|
|
|
|
|
|
| Real Property Display - Screen Produced 4/5/2026 8:17:13 PM | ||||
|---|---|---|---|---|
| Account: R125561000 | Type: Residential | Location: |
10529 GOLDENROD LN |
|
| Building Name/Occupant: |
|
MIDWEST CITY |
||
| Owner Name 1: | CRAMER BEVERLY L REV TRUST |
Parcel PIN#: |
1225-12-556-1000 |
|
| Owner Name 2: | 1/4 section #: |
1225 |
||
| Owner Name 3: | Parent Acct: |
|
||
| Billing Address: | 10529 GOLDENROD LN | Tax District: |
|
|
| City, State, Zip | MIDWEST CITY, OK 73130-7024 | School System: |
Choctaw #4 |
|
|
Country: (If noted) |
Land Size: |
0.1702 Acres |
||
|
Land Value: 39,305 |
|
|||
|
Sect 7-T11N-R1W Qtr NE |
WINDSONG SEC TWO TO MWC
Block
007
Lot
001
|
|||
| Full Legal Description: WINDSONG SEC TWO TO MWC 007 001 |
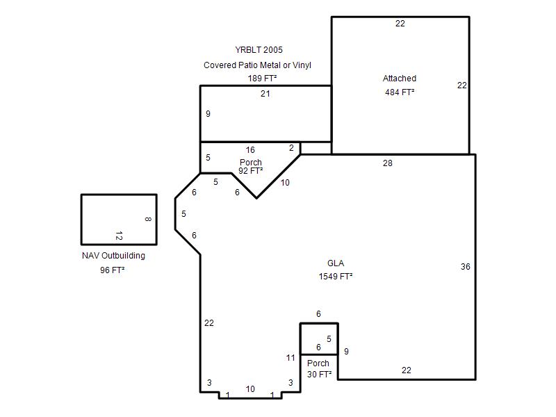
| Photo & Sketch (if available) | Comp Sales (ordered by relevancy) |
|
||||||||||||||||||
|
||||||||||||||||||||
| Value History (*The County Treasurer 405-713-1300 posts & collects actual tax amounts. Contact information HERE) | |||||||||||||
|---|---|---|---|---|---|---|---|---|---|---|---|---|---|
| Year | Market Value | Taxable Mkt Value | Gross Assessed | Exemption | Net Assessed | Millage | Est. Tax | Tax Savings | |||||
|
2026 |
216,500 |
121,617 |
13,377 |
1,000 |
12,377 |
127.03 |
$1,572 |
$1,453 |
|||||
|
2025 |
214,000 |
121,617 |
13,377 |
1,000 |
12,377 |
127.03 |
$1,572 |
$1,418 |
|||||
|
2024 |
210,000 |
121,617 |
13,377 |
1,000 |
12,377 |
127.00 |
$1,572 |
$1,362 |
|||||
|
2023 |
201,000 |
121,617 |
13,377 |
1,000 |
12,377 |
128.50 |
$1,591 |
$1,251 |
|||||
|
2022 |
176,500 |
121,617 |
13,377 |
1,000 |
12,377 |
127.22 |
$1,575 |
$895 |
|||||
| Property Account Status/Adjustments/Exemptions | ||
|---|---|---|
| Account # | Exemption Description | Amount |
|
R125561000 |
Freeze Senior Valuation |
0 |
|
R125561000 |
3% Cap Homestead |
0 |
|
R125561000 |
Homestead |
1,000 |
| Property Deed Transaction History (Recorded in the County Clerk's Office) | |||||||
|---|---|---|---|---|---|---|---|
| Date | Type | Book | Page | Price | Grantor | Grantee | |
|
11/10/1997 |
|
Historical |
$0 |
CRAMER BEVERLY L |
CRAMER BEVERLY L REV TRUST |
||
|
10/21/1993 |
|
Historical |
$76,500 |
BURKHART RONALD M & ARLEEN L |
CRAMER BEVERLY L |
||
|
4/24/1987 |
|
Historical |
$75,000 |
CHARLES E YANTIS BUILDER INC |
BURKHART RONALD M & ARLEEN L |
||
|
1/29/1987 |
|
Historical |
$0 |
BEAVER INVESTMENT CO |
CHARLES E YANTIS BUILDER INC |
||
|
5/20/1986 |
|
Historical |
$0 |
|
BEAVER INVESTMENT CO |
||
| Last Mailed Notice of Value (N.O.V.) Information/History | ||||||||
|---|---|---|---|---|---|---|---|---|
| Year | Date | Market Value | Taxable Market Value | Gross Assessed | Exemption | Net Assessed | ||
|
2026 |
02/06/2026 |
216,500 |
121,617 |
13,377 |
1,000 |
12,377 |
||
|
2025 |
01/31/2025 |
214,000 |
121,617 |
13,377 |
1,000 |
12,377 |
||
|
2024 |
01/22/2024 |
210,000 |
121,617 |
13,377 |
1,000 |
12,377 |
||
|
2023 |
01/23/2023 |
201,000 |
121,617 |
13,377 |
1,000 |
12,377 |
||
|
2022 |
02/22/2022 |
176,500 |
121,617 |
13,377 |
1,000 |
12,377 |
||
| Property Building Permit History | |||||||||||
|---|---|---|---|---|---|---|---|---|---|---|---|
| Issued | Permit # | Provided by | Bldg # | Description | Est Construction Cost | Status | |||||
| No Building Permit records returned. | |||||||||||
| Click button on building number to access detailed information: | ||||||
|---|---|---|---|---|---|---|
| Bldg # | Vacant/Improved Land | Bldg Description | Year Built | SqFt | # Stories | |
|
1 |
Improved |
Ranch 1 Story |
1987 |
1,549 |
1 Stories |
|