|
|
|
| Larry Stein Oklahoma County Assessor (405) 713-1200 - Public Access System |
|
|
|
|
|
|
| Real Property Display - Screen Produced 4/5/2026 8:17:14 PM | ||||
|---|---|---|---|---|
| Account: R125561090 | Type: Residential | Location: |
1720 HONEYSUCKLE LN |
|
| Building Name/Occupant: |
|
MIDWEST CITY |
||
| Owner Name 1: | RYAN JEFFREY R |
Parcel PIN#: |
1225-12-556-1090 |
|
| Owner Name 2: | 1/4 section #: |
1225 |
||
| Owner Name 3: | Parent Acct: |
|
||
| Billing Address: | 1135 RUTHERFORD RIDGE | Tax District: |
|
|
| City, State, Zip | O FALLON, IL 62269 | School System: |
Choctaw #4 |
|
|
Country: (If noted) |
Land Size: |
0.1897 Acres |
||
|
Land Value: 43,794 |
|
|||
|
Sect 7-T11N-R1W Qtr NE |
WINDSONG SEC TWO TO MWC
Block
007
Lot
010
|
|||
| Full Legal Description: WINDSONG SEC TWO TO MWC 007 010 |
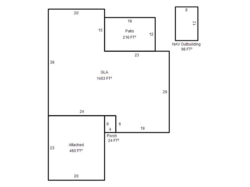
| Photo & Sketch (if available) | Comp Sales (ordered by relevancy) |
|
||||||||||||||||||
|
||||||||||||||||||||
| Value History (*The County Treasurer 405-713-1300 posts & collects actual tax amounts. Contact information HERE) | |||||||||||||
|---|---|---|---|---|---|---|---|---|---|---|---|---|---|
| Year | Market Value | Taxable Mkt Value | Gross Assessed | Exemption | Net Assessed | Millage | Est. Tax | Tax Savings | |||||
|
2026 |
203,000 |
180,241 |
19,826 |
0 |
19,826 |
127.03 |
$2,519 |
$318 |
|||||
|
2025 |
202,500 |
171,659 |
18,882 |
0 |
18,882 |
127.03 |
$2,399 |
$431 |
|||||
|
2024 |
198,000 |
163,485 |
17,983 |
0 |
17,983 |
127.00 |
$2,284 |
$482 |
|||||
|
2023 |
188,500 |
155,700 |
17,126 |
0 |
17,126 |
128.50 |
$2,201 |
$464 |
|||||
|
2022 |
165,500 |
148,286 |
16,310 |
0 |
16,310 |
127.22 |
$2,075 |
$241 |
|||||
| Property Account Status/Adjustments/Exemptions | ||
|---|---|---|
| Account # | Exemption Description | Amount |
|
R125561090 |
5% Capped Account |
0 |
| Property Deed Transaction History (Recorded in the County Clerk's Office) | |||||||
|---|---|---|---|---|---|---|---|
| Date | Type | Book | Page | Price | Grantor | Grantee | |
|
6/25/2010 |
|
Deeds |
$129,000 |
PRESTON TANZY D |
RYAN JEFFREY R |
||
|
3/17/1994 |
|
Historical |
$70,500 |
STRAILY MICHAEL C & CAROL A |
PRESTON TANZY D |
||
|
7/30/1987 |
|
Historical |
$66,500 |
MIDWEST CITY DEVELOPMENT |
STRAILY MICHAEL C & CAROL A |
||
|
5/13/1987 |
|
Historical |
$0 |
BEAVER INVESTMENT CO |
MIDWEST CITY DEVELOPMENT |
||
|
5/20/1986 |
|
Historical |
$0 |
|
BEAVER INVESTMENT CO |
||
| Last Mailed Notice of Value (N.O.V.) Information/History | ||||||||
|---|---|---|---|---|---|---|---|---|
| Year | Date | Market Value | Taxable Market Value | Gross Assessed | Exemption | Net Assessed | ||
|
2026 |
02/06/2026 |
203,000 |
180,241 |
19,826 |
0 |
19,826 |
||
|
2025 |
01/31/2025 |
202,500 |
171,659 |
18,882 |
0 |
18,882 |
||
|
2024 |
01/22/2024 |
198,000 |
163,485 |
17,983 |
0 |
17,983 |
||
|
2023 |
01/23/2023 |
188,500 |
155,700 |
17,126 |
0 |
17,126 |
||
|
2022 |
02/22/2022 |
165,500 |
148,286 |
16,310 |
0 |
16,310 |
||
| Property Building Permit History | |||||||||||
|---|---|---|---|---|---|---|---|---|---|---|---|
| Issued | Permit # | Provided by | Bldg # | Description | Est Construction Cost | Status | |||||
| No Building Permit records returned. | |||||||||||
| Click button on building number to access detailed information: | ||||||
|---|---|---|---|---|---|---|
| Bldg # | Vacant/Improved Land | Bldg Description | Year Built | SqFt | # Stories | |
|
1 |
Improved |
Ranch 1 Story |
1987 |
1,403 |
1 Stories |
|