|
|
|
| Larry Stein Oklahoma County Assessor (405) 713-1200 - Public Access System |
|
|
|
|
|
|
| Real Property Display - Screen Produced 3/11/2026 11:39:04 PM | ||||
|---|---|---|---|---|
| Account: R206881060 | Type: Residential | Location: |
294 MOUNDS RD |
|
| Building Name/Occupant: |
|
HARRAH |
||
| Owner Name 1: | IBRAHEEM ABDULLAH A |
Parcel PIN#: |
1005-20-688-1060 |
|
| Owner Name 2: | MASSEY SASHA E | 1/4 section #: |
1005 |
|
| Owner Name 3: | Parent Acct: |
1005-26-702-1000 |
||
| Billing Address: | 294 MOUNDS RD | Tax District: |
|
|
| City, State, Zip | HARRAH, OK 73045-6602 | School System: |
Harrah #7 |
|
|
Country: (If noted) |
Land Size: |
0.4964 Acres |
||
|
Land Value: 45,410 |
|
|||
|
Sect 2-T11N-R1E Qtr NE |
FALL CREEK ESTATES
Block
002
Lot
004
|
|||
| Full Legal Description: FALL CREEK ESTATES BLK 002 LOT 004 |
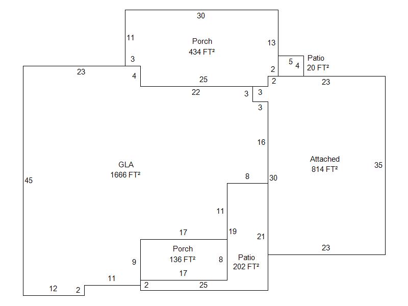
| Photo & Sketch (if available) | Comp Sales (ordered by relevancy) |
|
||||||||||||||||||
|
||||||||||||||||||||
| Value History (*The County Treasurer 405-713-1300 posts & collects actual tax amounts. Contact information HERE) | |||||||||||||
|---|---|---|---|---|---|---|---|---|---|---|---|---|---|
| Year | Market Value | Taxable Mkt Value | Gross Assessed | Exemption | Net Assessed | Millage | Est. Tax | Tax Savings | |||||
|
2025 |
291,000 |
227,794 |
25,056 |
1,000 |
24,056 |
107.54 |
$2,587 |
$855 |
|||||
|
2024 |
286,000 |
221,160 |
24,327 |
1,000 |
23,327 |
110.62 |
$2,580 |
$900 |
|||||
|
2023 |
268,500 |
214,719 |
23,618 |
1,000 |
22,618 |
97.88 |
$2,214 |
$677 |
|||||
|
2022 |
237,000 |
208,466 |
22,930 |
1,000 |
21,930 |
99.50 |
$2,182 |
$412 |
|||||
|
2021 |
212,000 |
202,395 |
22,263 |
1,000 |
21,263 |
99.52 |
$2,116 |
$205 |
|||||
| Property Account Status/Adjustments/Exemptions | ||
|---|---|---|
| Account # | Exemption Description | Amount |
|
R206881060 |
3% Cap Homestead |
0 |
|
R206881060 |
Homestead |
1,000 |
| Property Deed Transaction History (Recorded in the County Clerk's Office) | |||||||
|---|---|---|---|---|---|---|---|
| Date | Type | Book | Page | Price | Grantor | Grantee | |
|
7/31/2015 |
|
Deeds |
$175,000 |
HARRAH LAND FC LLC |
IBRAHEEM ABDULLAH A |
||
|
5/2/2014 |
|
Mult Parcel |
$468,000 |
FALL CREEK DEVELOPMENT LLC |
HARRAH LAND FC LLC |
||
|
5/19/2007 |
|
Mult Parcel |
$1,550,000 |
MIDWEST DEVELOPMENT LLC |
FALL CREEK DEVELOPMENT LLC |
||
| Last Mailed Notice of Value (N.O.V.) Information/History | ||||||||
|---|---|---|---|---|---|---|---|---|
| Year | Date | Market Value | Taxable Market Value | Gross Assessed | Exemption | Net Assessed | ||
|
2026 |
02/06/2026 |
300,500 |
234,627 |
25,808 |
1,000 |
24,808 |
||
|
2025 |
01/31/2025 |
291,000 |
227,794 |
25,056 |
1,000 |
24,056 |
||
|
2024 |
01/22/2024 |
286,000 |
221,160 |
24,327 |
1,000 |
23,327 |
||
|
2023 |
01/23/2023 |
268,500 |
214,719 |
23,618 |
1,000 |
22,618 |
||
|
2022 |
02/22/2022 |
237,000 |
208,466 |
22,930 |
1,000 |
21,930 |
||
| Property Building Permit History | ||||||
|---|---|---|---|---|---|---|
| Issued | Permit # | Provided by | Bldg # | Description | Est Construction Cost | Status |
|
6/26/2015 |
10473603 |
HARRAH |
1 |
Main Dwellin |
0 |
Inactive |
| Click button on building number to access detailed information: | ||||||
|---|---|---|---|---|---|---|
| Bldg # | Vacant/Improved Land | Bldg Description | Year Built | SqFt | # Stories | |
|
1 |
Improved |
Ranch 1 Story |
2015 |
1,666 |
1 Stories |
|