|
|
|
| Larry Stein Oklahoma County Assessor (405) 713-1200 - Public Access System |
|
|
|
|
|
|
| Real Property Display - Screen Produced 4/2/2026 10:39:51 PM | ||||
|---|---|---|---|---|
| Account: R074161025 | Type: Residential | Location: |
1017 SW 67TH ST |
|
| Building Name/Occupant: |
|
OKLAHOMA CITY |
||
| Owner Name 1: | MATRIX REAL ESTATE LLC |
Parcel PIN#: |
1714-07-416-1025 |
|
| Owner Name 2: | 1/4 section #: |
1714 |
||
| Owner Name 3: | Parent Acct: |
|
||
| Billing Address: | 8520 S PENNSYLVANIA AVE | Tax District: |
|
|
| City, State, Zip | OKLAHOMA CITY, OK 73159 | School System: |
Oklahoma City #89 |
|
|
Country: (If noted) |
Land Size: |
0.1653 Acres |
||
|
Land Value: 22,680 |
|
|||
|
Sect 29-T11N-R3W Qtr SE |
JEFFERSON HEIGHTS
Block
001
Lot
005
|
|||
| Full Legal Description: JEFFERSON HEIGHTS 001 005 |
| Photo & Sketch (if available) | Comp Sales (ordered by relevancy) |
|
||||||||||||||||||
|
||||||||||||||||||||
| Value History (*The County Treasurer 405-713-1300 posts & collects actual tax amounts. Contact information HERE) | |||||||||||||
|---|---|---|---|---|---|---|---|---|---|---|---|---|---|
| Year | Market Value | Taxable Mkt Value | Gross Assessed | Exemption | Net Assessed | Millage | Est. Tax | Tax Savings | |||||
|
2026 |
133,500 |
99,166 |
10,907 |
0 |
10,907 |
119.02 |
$1,298 |
$450 |
|||||
|
2025 |
132,500 |
94,444 |
10,388 |
0 |
10,388 |
119.02 |
$1,236 |
$498 |
|||||
|
2024 |
126,500 |
89,947 |
9,894 |
0 |
9,894 |
119.70 |
$1,184 |
$481 |
|||||
|
2023 |
114,000 |
85,664 |
9,422 |
0 |
9,422 |
118.33 |
$1,115 |
$369 |
|||||
|
2022 |
98,500 |
81,585 |
8,974 |
0 |
8,974 |
112.69 |
$1,011 |
$210 |
|||||
| Property Account Status/Adjustments/Exemptions | ||
|---|---|---|
| Account # | Exemption Description | Amount |
|
R074161025 |
5% Capped Account |
0 |
| Property Deed Transaction History (Recorded in the County Clerk's Office) | ||||||||||
|---|---|---|---|---|---|---|---|---|---|---|
| Date | Type | Book | Page | Price | Grantor | Grantee | ||||
|
4/10/2020 |
|
Hmstd Off & |
$0 |
DECENT PROPERTY MANAGEMENT LLC |
MATRIX REAL ESTATE LLC |
|||||
|
7/3/2012 |
|
Deeds |
$46,500 |
GILL CURTIS M HODGE ERVA |
DECENT PROPERTY MANAGEMENT LLC |
|||||
|
4/30/2007 |
|
Deeds |
$0 |
HODGE ERVA |
GILL CURTIS M HODGE ERVA |
|||||
|
7/28/2006 |
|
Deeds |
$75,000 |
LINTHICUM DONALD GENE |
HODGE ERVA |
|||||
|
12/1/1986 |
|
Historical |
$43,000 |
CONNELLY HARRY R ETAL |
LINTHICUM DONALD GENE |
|||||
| Last Mailed Notice of Value (N.O.V.) Information/History | ||||||||
|---|---|---|---|---|---|---|---|---|
| Year | Date | Market Value | Taxable Market Value | Gross Assessed | Exemption | Net Assessed | ||
|
2026 |
02/06/2026 |
133,500 |
99,166 |
10,907 |
0 |
10,907 |
||
|
2025 |
01/31/2025 |
132,500 |
94,444 |
10,388 |
0 |
10,388 |
||
|
2024 |
01/22/2024 |
126,500 |
89,947 |
9,894 |
0 |
9,894 |
||
|
2023 |
01/23/2023 |
114,000 |
85,664 |
9,422 |
0 |
9,422 |
||
|
2022 |
02/22/2022 |
98,500 |
81,585 |
8,974 |
0 |
8,974 |
||
| Property Building Permit History | |||||||||||
|---|---|---|---|---|---|---|---|---|---|---|---|
| Issued | Permit # | Provided by | Bldg # | Description | Est Construction Cost | Status | |||||
| No Building Permit records returned. | |||||||||||
| Click button on building number to access detailed information: | ||||||
|---|---|---|---|---|---|---|
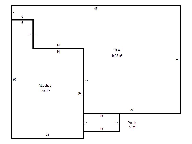
| Bldg # | Vacant/Improved Land | Bldg Description | Year Built | SqFt | # Stories | |
|
1 |
Improved |
Ranch 1 Story |
1960 |
1,002 |
1 Stories |
|