|
|
|
| Larry Stein Oklahoma County Assessor (405) 713-1200 - Public Access System |
|
|
|
|
|
|
| Real Property Display - Screen Produced 4/6/2026 11:48:33 AM | ||||
|---|---|---|---|---|
| Account: R106231005 | Type: Residential | Location: |
1000 SW 70TH ST |
|
| Building Name/Occupant: |
|
OKLAHOMA CITY |
||
| Owner Name 1: | GARDNER RANDALL C |
Parcel PIN#: |
1714-10-623-1005 |
|
| Owner Name 2: | 1/4 section #: |
1714 |
||
| Owner Name 3: | Parent Acct: |
|
||
| Billing Address: | 1000 SW 70TH ST | Tax District: |
|
|
| City, State, Zip | OKLAHOMA CITY, OK 73139-1552 | School System: |
Oklahoma City #89 |
|
|
Country: (If noted) |
Land Size: |
0.1862 Acres |
||
|
Land Value: 20,686 |
|
|||
|
Sect 29-T11N-R3W Qtr SE |
JEFFERSON HEIGHTS 2ND
Block
001
Lot
000
|
|||
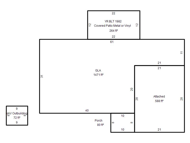
| Full Legal Description: JEFFERSON HEIGHTS 2ND 001 000 LOT 1 & N10FT LOT 2 |
| Photo & Sketch (if available) | Comp Sales (ordered by relevancy) |
|
||||||||||||||||||
|
||||||||||||||||||||
| Value History (*The County Treasurer 405-713-1300 posts & collects actual tax amounts. Contact information HERE) | |||||||||||||
|---|---|---|---|---|---|---|---|---|---|---|---|---|---|
| Year | Market Value | Taxable Mkt Value | Gross Assessed | Exemption | Net Assessed | Millage | Est. Tax | Tax Savings | |||||
|
2026 |
197,000 |
197,000 |
21,670 |
0 |
21,670 |
119.02 |
$2,579 |
$0 |
|||||
|
2025 |
201,500 |
201,500 |
22,165 |
0 |
22,165 |
119.02 |
$2,638 |
$0 |
|||||
|
2024 |
156,500 |
110,719 |
12,178 |
0 |
12,178 |
119.70 |
$1,458 |
$603 |
|||||
|
2023 |
142,500 |
105,447 |
11,598 |
1,000 |
10,598 |
118.33 |
$1,254 |
$601 |
|||||
|
2022 |
125,000 |
102,376 |
11,260 |
1,000 |
10,260 |
112.69 |
$1,156 |
$393 |
|||||
| Property Account Status/Adjustments/Exemptions | ||
|---|---|---|
| Account # | Exemption Description | Amount |
|
R106231005 |
5% Capped Account |
0 |
| Property Deed Transaction History (Recorded in the County Clerk's Office) | |||||||
|---|---|---|---|---|---|---|---|
| Date | Type | Book | Page | Price | Grantor | Grantee | |
|
8/13/2024 |
|
Deeds |
$193,000 |
MARTIN KIRK R |
GARDNER RANDALL C |
||
|
2/20/2001 |
|
Deeds |
$70,500 |
MCDONALD MERILEE J |
MARTIN KIRK R |
||
|
7/1/1979 |
|
Historical |
$0 |
|
MCDONALD MERILEE J |
||
| Last Mailed Notice of Value (N.O.V.) Information/History | ||||||||
|---|---|---|---|---|---|---|---|---|
| Year | Date | Market Value | Taxable Market Value | Gross Assessed | Exemption | Net Assessed | ||
|
2025 |
01/31/2025 |
201,500 |
201,500 |
22,165 |
0 |
22,165 |
||
|
2024 |
01/22/2024 |
156,500 |
108,610 |
11,946 |
1,000 |
10,946 |
||
|
2024 |
03/01/2024 |
156,500 |
110,719 |
12,178 |
0 |
12,178 |
||
|
2023 |
01/23/2023 |
142,500 |
105,447 |
11,598 |
1,000 |
10,598 |
||
|
2022 |
02/22/2022 |
125,000 |
102,376 |
11,260 |
1,000 |
10,260 |
||
| Property Building Permit History | |||||||||||
|---|---|---|---|---|---|---|---|---|---|---|---|
| Issued | Permit # | Provided by | Bldg # | Description | Est Construction Cost | Status | |||||
| No Building Permit records returned. | |||||||||||
| Click button on building number to access detailed information: | ||||||
|---|---|---|---|---|---|---|
| Bldg # | Vacant/Improved Land | Bldg Description | Year Built | SqFt | # Stories | |
|
1 |
Improved |
Ranch 1 Story |
1961 |
1,471 |
1 Stories |
|