|
|
|
| Larry Stein Oklahoma County Assessor (405) 713-1200 - Public Access System |
|
|
|
|
|
|
| Real Property Display - Screen Produced 4/6/2026 11:48:33 AM | ||||
|---|---|---|---|---|
| Account: R106231245 | Type: Residential | Location: |
7204 S KLEIN AVE |
|
| Building Name/Occupant: |
|
OKLAHOMA CITY |
||
| Owner Name 1: | ROMAN NANCY |
Parcel PIN#: |
1714-10-623-1245 |
|
| Owner Name 2: | 1/4 section #: |
1714 |
||
| Owner Name 3: | Parent Acct: |
|
||
| Billing Address: | 7204 S KLEIN AVE | Tax District: |
|
|
| City, State, Zip | OKLAHOMA CITY, OK 73139 | School System: |
Oklahoma City #89 |
|
|
Country: (If noted) |
Land Size: |
0.1722 Acres |
||
|
Land Value: 19,125 |
|
|||
|
Sect 29-T11N-R3W Qtr SE |
JEFFERSON HEIGHTS 2ND
Block
002
Lot
005
|
|||
| Full Legal Description: JEFFERSON HEIGHTS 2ND 002 005 |
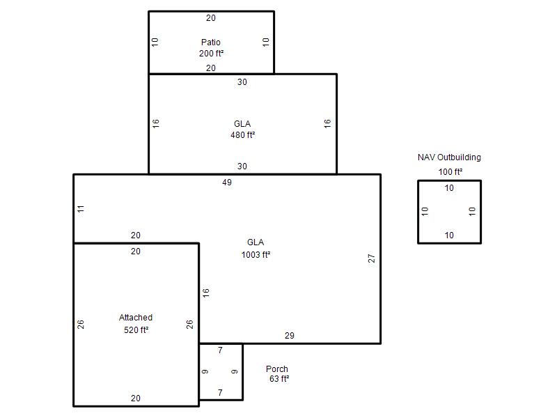
| Photo & Sketch (if available) | Comp Sales (ordered by relevancy) |
|
||||||||||||||||||
|
||||||||||||||||||||
| Value History (*The County Treasurer 405-713-1300 posts & collects actual tax amounts. Contact information HERE) | |||||||||||||
|---|---|---|---|---|---|---|---|---|---|---|---|---|---|
| Year | Market Value | Taxable Mkt Value | Gross Assessed | Exemption | Net Assessed | Millage | Est. Tax | Tax Savings | |||||
|
2026 |
200,000 |
200,000 |
22,000 |
0 |
22,000 |
119.02 |
$2,618 |
$0 |
|||||
|
2025 |
206,500 |
196,796 |
21,646 |
0 |
21,646 |
119.02 |
$2,576 |
$127 |
|||||
|
2024 |
197,500 |
187,425 |
20,616 |
0 |
20,616 |
119.70 |
$2,468 |
$133 |
|||||
|
2023 |
178,500 |
178,500 |
19,635 |
0 |
19,635 |
118.33 |
$2,323 |
$0 |
|||||
|
2022 |
122,500 |
86,588 |
9,524 |
0 |
9,524 |
112.69 |
$1,073 |
$445 |
|||||
| Property Account Status/Adjustments/Exemptions | ||
|---|---|---|
| Account # | Exemption Description | Amount |
|
R106231245 |
5% Capped Account |
0 |
| Property Deed Transaction History (Recorded in the County Clerk's Office) | |||||||
|---|---|---|---|---|---|---|---|
| Date | Type | Book | Page | Price | Grantor | Grantee | |
|
7/15/2022 |
|
Deeds |
$175,000 |
MCF PROPERTIES LLC |
ROMAN NANCY |
||
|
3/31/2022 |
|
Deeds |
$115,000 |
HIGGINS DENNIS CARL |
MCF PROPERTIES LLC |
||
|
11/15/2021 |
|
Hmstd Off & |
$0 |
HIGGINS DELBERT DALE |
HIGGINS DENNIS CARL |
||
|
4/20/2011 |
|
Deeds |
$0 |
HIGGINS D D & EDDIE |
HIGGINS DELBERT DALE |
||
|
11/11/1911 |
|
Historical |
$0 |
|
HIGGINS D D & EDDIE |
||
| Last Mailed Notice of Value (N.O.V.) Information/History | ||||||||
|---|---|---|---|---|---|---|---|---|
| Year | Date | Market Value | Taxable Market Value | Gross Assessed | Exemption | Net Assessed | ||
|
2026 |
02/06/2026 |
200,000 |
200,000 |
22,000 |
0 |
22,000 |
||
|
2025 |
01/31/2025 |
206,500 |
196,796 |
21,646 |
0 |
21,646 |
||
|
2024 |
01/22/2024 |
197,500 |
187,425 |
20,616 |
0 |
20,616 |
||
|
2023 |
01/23/2023 |
178,500 |
178,500 |
19,635 |
0 |
19,635 |
||
|
2022 |
02/22/2022 |
122,500 |
86,588 |
9,524 |
0 |
9,524 |
||
| Property Building Permit History | |||||||||||
|---|---|---|---|---|---|---|---|---|---|---|---|
| Issued | Permit # | Provided by | Bldg # | Description | Est Construction Cost | Status | |||||
| No Building Permit records returned. | |||||||||||
| Click button on building number to access detailed information: | ||||||
|---|---|---|---|---|---|---|
| Bldg # | Vacant/Improved Land | Bldg Description | Year Built | SqFt | # Stories | |
|
1 |
Improved |
Ranch 1 Story |
1961 |
1,483 |
1 Stories |
|