|
|
|
| Larry Stein Oklahoma County Assessor (405) 713-1200 - Public Access System |
|
|
|
|
|
|
| Real Property Display - Screen Produced 4/6/2026 11:47:22 AM | ||||
|---|---|---|---|---|
| Account: R106231285 | Type: Residential | Location: |
7300 S KLEIN AVE |
|
| Building Name/Occupant: |
|
OKLAHOMA CITY |
||
| Owner Name 1: | HUNTER JERRY MICHEAL & TRINA G |
Parcel PIN#: |
1714-10-623-1285 |
|
| Owner Name 2: | 1/4 section #: |
1714 |
||
| Owner Name 3: | Parent Acct: |
|
||
| Billing Address: | 7300 S KLEIN AVE | Tax District: |
|
|
| City, State, Zip | OKLAHOMA CITY, OK 73139-1924 | School System: |
Oklahoma City #89 |
|
|
Country: (If noted) |
Land Size: |
0.1722 Acres |
||
|
Land Value: 19,125 |
|
|||
|
Sect 29-T11N-R3W Qtr SE |
JEFFERSON HEIGHTS 2ND
Block
002
Lot
009
|
|||
| Full Legal Description: JEFFERSON HEIGHTS 2ND 002 009 |
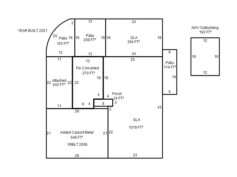
| Photo & Sketch (if available) | Comp Sales (ordered by relevancy) |
|
||||||||||||||||||
|
||||||||||||||||||||
| Value History (*The County Treasurer 405-713-1300 posts & collects actual tax amounts. Contact information HERE) | |||||||||||||
|---|---|---|---|---|---|---|---|---|---|---|---|---|---|
| Year | Market Value | Taxable Mkt Value | Gross Assessed | Exemption | Net Assessed | Millage | Est. Tax | Tax Savings | |||||
|
2026 |
163,000 |
120,150 |
13,215 |
1,000 |
12,215 |
119.02 |
$1,454 |
$680 |
|||||
|
2025 |
169,000 |
116,651 |
12,830 |
1,000 |
11,830 |
119.02 |
$1,408 |
$804 |
|||||
|
2024 |
162,500 |
113,254 |
12,457 |
1,000 |
11,457 |
119.70 |
$1,372 |
$768 |
|||||
|
2023 |
148,500 |
109,956 |
12,094 |
1,000 |
11,094 |
118.33 |
$1,313 |
$620 |
|||||
|
2022 |
134,000 |
106,268 |
11,689 |
1,000 |
10,689 |
112.69 |
$1,205 |
$456 |
|||||
| Property Account Status/Adjustments/Exemptions | ||
|---|---|---|
| Account # | Exemption Description | Amount |
|
R106231285 |
3% Cap Homestead |
0 |
|
R106231285 |
Homestead |
1,000 |
| Property Deed Transaction History (Recorded in the County Clerk's Office) | |||||||
|---|---|---|---|---|---|---|---|
| Date | Type | Book | Page | Price | Grantor | Grantee | |
|
5/1/1983 |
|
Historical |
$0 |
|
HUNTER JERRY MICHEAL & TRINA G |
||
| Last Mailed Notice of Value (N.O.V.) Information/History | ||||||||
|---|---|---|---|---|---|---|---|---|
| Year | Date | Market Value | Taxable Market Value | Gross Assessed | Exemption | Net Assessed | ||
|
2026 |
02/06/2026 |
163,000 |
120,150 |
13,215 |
1,000 |
12,215 |
||
|
2025 |
01/31/2025 |
169,000 |
116,651 |
12,830 |
1,000 |
11,830 |
||
|
2024 |
01/22/2024 |
162,500 |
113,254 |
12,457 |
1,000 |
11,457 |
||
|
2023 |
03/02/2023 |
148,500 |
109,956 |
12,094 |
1,000 |
11,094 |
||
|
2022 |
02/22/2022 |
134,000 |
106,268 |
11,688 |
1,000 |
10,688 |
||
| Property Building Permit History | |||||||||||
|---|---|---|---|---|---|---|---|---|---|---|---|
| Issued | Permit # | Provided by | Bldg # | Description | Est Construction Cost | Status | |||||
| No Building Permit records returned. | |||||||||||
| Click button on building number to access detailed information: | ||||||
|---|---|---|---|---|---|---|
| Bldg # | Vacant/Improved Land | Bldg Description | Year Built | SqFt | # Stories | |
|
1 |
Improved |
Ranch 1 Story |
1962 |
1,403 |
1 Stories |
|