|
|
|
| Larry Stein Oklahoma County Assessor (405) 713-1200 - Public Access System |
|
|
|
|
|
|
| Real Property Display - Screen Produced 4/9/2026 5:38:12 AM | ||||
|---|---|---|---|---|
| Account: R074561005 | Type: Residential | Location: |
1501 SW 67TH ST |
|
| Building Name/Occupant: |
|
OKLAHOMA CITY |
||
| Owner Name 1: | GARCIA GENARO |
Parcel PIN#: |
1715-07-456-1005 |
|
| Owner Name 2: | 1/4 section #: |
1715 |
||
| Owner Name 3: | Parent Acct: |
|
||
| Billing Address: | 3032 SW 41ST ST | Tax District: |
|
|
| City, State, Zip | OKLAHOMA CITY, OK 73119-3269 | School System: |
Oklahoma City #89 |
|
|
Country: (If noted) |
Land Size: |
0.1704 Acres |
||
|
Land Value: 23,757 |
|
|||
|
Sect 29-T11N-R3W Qtr SW |
O T WITTENS SOUTHRIDGE
Block
001
Lot
001
|
|||
| Full Legal Description: O T WITTENS SOUTHRIDGE 001 001 |
| Photo & Sketch (if available) | Comp Sales (ordered by relevancy) |
|
||||||||||||||||||
|
||||||||||||||||||||
| Value History (*The County Treasurer 405-713-1300 posts & collects actual tax amounts. Contact information HERE) | |||||||||||||
|---|---|---|---|---|---|---|---|---|---|---|---|---|---|
| Year | Market Value | Taxable Mkt Value | Gross Assessed | Exemption | Net Assessed | Millage | Est. Tax | Tax Savings | |||||
|
2026 |
148,500 |
148,500 |
16,335 |
0 |
16,335 |
119.02 |
$1,944 |
$0 |
|||||
|
2025 |
143,000 |
142,800 |
15,708 |
0 |
15,708 |
119.02 |
$1,870 |
$3 |
|||||
|
2024 |
136,000 |
136,000 |
14,960 |
0 |
14,960 |
119.70 |
$1,791 |
$0 |
|||||
|
2023 |
128,000 |
101,291 |
11,141 |
0 |
11,141 |
118.33 |
$1,318 |
$348 |
|||||
|
2022 |
113,000 |
96,468 |
10,611 |
0 |
10,611 |
112.69 |
$1,196 |
$205 |
|||||
| Property Account Status/Adjustments/Exemptions | ||
|---|---|---|
| Account # | Exemption Description | Amount |
|
R074561005 |
5% Capped Account |
0 |
| Property Deed Transaction History (Recorded in the County Clerk's Office) | ||||||||||
|---|---|---|---|---|---|---|---|---|---|---|
| Date | Type | Book | Page | Price | Grantor | Grantee | ||||
|
9/1/2023 |
|
Deeds |
$92,500 |
NATIONSTAR MORTGAGE LLC |
GARCIA GENARO |
|||||
|
3/29/2023 |
|
Hmstd Off & |
$0 |
LEDESMA CARLO J |
NATIONSTAR MORTGAGE LLC |
|||||
|
2/28/2012 |
|
Deeds |
$85,000 |
HOLMAN KEITH D & ALLISON M |
LEDESMA CARLO J |
|||||
|
4/25/2008 |
|
Deeds |
$70,000 |
BALDWIN GERALDINE |
HOLMAN KEITH D & ALLISON M |
|||||
|
6/6/2002 |
|
Deeds |
$32,500 |
BAXTER BARBARA L |
BALDWIN GERALDINE |
|||||
| Last Mailed Notice of Value (N.O.V.) Information/History | ||||||||
|---|---|---|---|---|---|---|---|---|
| Year | Date | Market Value | Taxable Market Value | Gross Assessed | Exemption | Net Assessed | ||
|
2026 |
02/06/2026 |
148,500 |
148,500 |
16,335 |
0 |
16,335 |
||
|
2025 |
01/31/2025 |
143,000 |
142,800 |
15,708 |
0 |
15,708 |
||
|
2024 |
01/22/2024 |
136,000 |
136,000 |
14,960 |
0 |
14,960 |
||
|
2023 |
01/23/2023 |
128,000 |
101,291 |
11,141 |
0 |
11,141 |
||
|
2022 |
02/22/2022 |
113,000 |
96,468 |
10,611 |
0 |
10,611 |
||
| Property Building Permit History | |||||||||||
|---|---|---|---|---|---|---|---|---|---|---|---|
| Issued | Permit # | Provided by | Bldg # | Description | Est Construction Cost | Status | |||||
| No Building Permit records returned. | |||||||||||
| Click button on building number to access detailed information: | ||||||
|---|---|---|---|---|---|---|
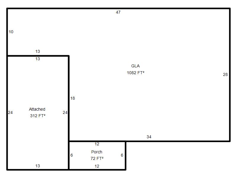
| Bldg # | Vacant/Improved Land | Bldg Description | Year Built | SqFt | # Stories | |
|
1 |
Improved |
Ranch 1 Story |
1955 |
1,082 |
1 Stories |
|