|
|
|
| Larry Stein Oklahoma County Assessor (405) 713-1200 - Public Access System |
|
|
|
|
|
|
| Real Property Display - Screen Produced 4/7/2026 8:31:41 AM | ||||
|---|---|---|---|---|
| Account: R074561525 | Type: Residential | Location: |
1600 SW 68TH ST |
|
| Building Name/Occupant: |
|
OKLAHOMA CITY |
||
| Owner Name 1: | DHQ LLC |
Parcel PIN#: |
1715-07-456-1525 |
|
| Owner Name 2: | 1/4 section #: |
1715 |
||
| Owner Name 3: | Parent Acct: |
|
||
| Billing Address: | 6608 N WESTERN AVE, Unit 1500 | Tax District: |
|
|
| City, State, Zip | OKLAHOMA CITY, OK 73116 | School System: |
Oklahoma City #89 |
|
|
Country: (If noted) |
UNITED STATES |
Land Size: |
0.1653 Acres |
|
|
Land Value: 23,040 |
|
|||
|
Sect 29-T11N-R3W Qtr SW |
O T WITTENS SOUTHRIDGE
Block
003
Lot
008
|
|||
| Full Legal Description: O T WITTENS SOUTHRIDGE 003 008 |
| Photo & Sketch (if available) | Comp Sales (ordered by relevancy) |
|
||||||||||||||||||
|
||||||||||||||||||||
| Value History (*The County Treasurer 405-713-1300 posts & collects actual tax amounts. Contact information HERE) | |||||||||||||
|---|---|---|---|---|---|---|---|---|---|---|---|---|---|
| Year | Market Value | Taxable Mkt Value | Gross Assessed | Exemption | Net Assessed | Millage | Est. Tax | Tax Savings | |||||
|
2026 |
129,000 |
105,865 |
11,644 |
0 |
11,644 |
119.02 |
$1,386 |
$303 |
|||||
|
2025 |
122,000 |
100,824 |
11,090 |
0 |
11,090 |
119.02 |
$1,320 |
$277 |
|||||
|
2024 |
115,500 |
96,023 |
10,561 |
0 |
10,561 |
119.70 |
$1,264 |
$256 |
|||||
|
2023 |
111,000 |
91,451 |
10,059 |
0 |
10,059 |
118.33 |
$1,190 |
$254 |
|||||
|
2022 |
99,000 |
87,097 |
9,580 |
0 |
9,580 |
112.69 |
$1,080 |
$148 |
|||||
| Property Account Status/Adjustments/Exemptions | ||
|---|---|---|
| Account # | Exemption Description | Amount |
|
R074561525 |
5% Capped Account |
0 |
| Property Deed Transaction History (Recorded in the County Clerk's Office) | |||||||
|---|---|---|---|---|---|---|---|
| Date | Type | Book | Page | Price | Grantor | Grantee | |
|
4/18/2018 |
|
Deeds |
$48,000 |
BENTLEY VIRGINIA I TRS |
DHQ LLC |
||
|
4/12/2006 |
|
Deeds |
$0 |
BENTYLEY VIRGINIA I |
BENTLEY VIRGINIA I TRS |
||
|
4/28/2004 |
|
Deeds |
$68,000 |
BARBER MARY KATHRYN |
BENTLEY VIRGINIA I |
||
|
6/1/1979 |
|
Historical |
$0 |
|
BARBER MARY KATHRYN |
||
| Last Mailed Notice of Value (N.O.V.) Information/History | ||||||||
|---|---|---|---|---|---|---|---|---|
| Year | Date | Market Value | Taxable Market Value | Gross Assessed | Exemption | Net Assessed | ||
|
2026 |
02/06/2026 |
129,000 |
105,865 |
11,644 |
0 |
11,644 |
||
|
2025 |
01/31/2025 |
122,000 |
100,824 |
11,090 |
0 |
11,090 |
||
|
2024 |
01/22/2024 |
115,500 |
96,023 |
10,561 |
0 |
10,561 |
||
|
2023 |
01/23/2023 |
111,000 |
91,451 |
10,059 |
0 |
10,059 |
||
|
2022 |
02/22/2022 |
99,000 |
87,097 |
9,580 |
0 |
9,580 |
||
| Property Building Permit History | |||||||||||
|---|---|---|---|---|---|---|---|---|---|---|---|
| Issued | Permit # | Provided by | Bldg # | Description | Est Construction Cost | Status | |||||
| No Building Permit records returned. | |||||||||||
| Click button on building number to access detailed information: | ||||||
|---|---|---|---|---|---|---|
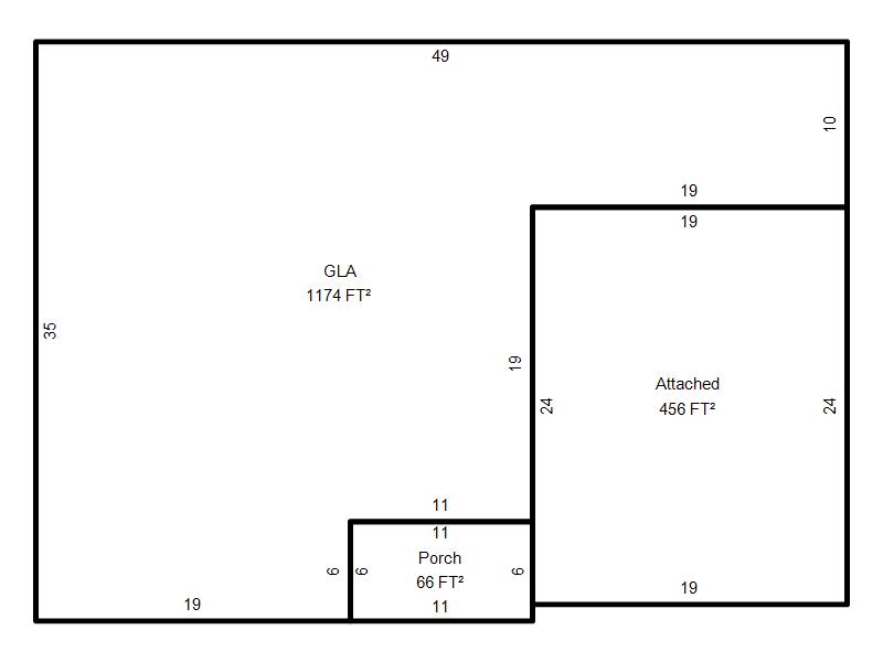
| Bldg # | Vacant/Improved Land | Bldg Description | Year Built | SqFt | # Stories | |
|
1 |
Improved |
Ranch 1 Story |
1955 |
1,174 |
1 Stories |
|