|
|
|
| Larry Stein Oklahoma County Assessor (405) 713-1200 - Public Access System |
|
|
|
|
|
|
| Real Property Display - Screen Produced 3/23/2026 8:48:23 AM | ||||
|---|---|---|---|---|
| Account: R074571075 | Type: Residential | Location: |
1333 SW 67TH ST |
|
| Building Name/Occupant: |
|
OKLAHOMA CITY |
||
| Owner Name 1: | OKLAHOMA HOME OPTIONS LLC |
Parcel PIN#: |
1715-07-457-1075 |
|
| Owner Name 2: | 1/4 section #: |
1715 |
||
| Owner Name 3: | Parent Acct: |
|
||
| Billing Address: | PO BOX 50660 | Tax District: |
|
|
| City, State, Zip | MIDWEST CITY, OK 73140 | School System: |
Oklahoma City #89 |
|
|
Country: (If noted) |
Land Size: |
0.1928 Acres |
||
|
Land Value: 26,880 |
|
|||
|
Sect 29-T11N-R3W Qtr SW |
O T WITTENS SOUTHRIDGE 2ND
Block
001
Lot
000
|
|||
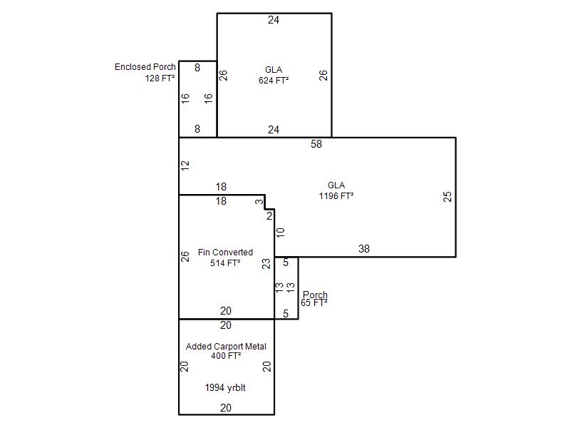
| Full Legal Description: O T WITTENS SOUTHRIDGE 2ND 001 000 W20FT LOT 8 & E50FT LOT 9 |
| Photo & Sketch (if available) | Comp Sales (ordered by relevancy) |
|
||||||||||||||||||
|
||||||||||||||||||||
| Value History (*The County Treasurer 405-713-1300 posts & collects actual tax amounts. Contact information HERE) | |||||||||||||
|---|---|---|---|---|---|---|---|---|---|---|---|---|---|
| Year | Market Value | Taxable Mkt Value | Gross Assessed | Exemption | Net Assessed | Millage | Est. Tax | Tax Savings | |||||
|
2025 |
228,500 |
218,987 |
24,087 |
0 |
24,087 |
119.02 |
$2,867 |
$125 |
|||||
|
2024 |
163,500 |
153,798 |
16,917 |
0 |
16,917 |
119.70 |
$2,025 |
$128 |
|||||
|
2023 |
158,500 |
146,475 |
16,112 |
0 |
16,112 |
118.33 |
$1,907 |
$157 |
|||||
|
2022 |
139,500 |
139,500 |
15,345 |
0 |
15,345 |
112.69 |
$1,729 |
$0 |
|||||
|
2021 |
124,000 |
117,420 |
12,916 |
1,000 |
11,916 |
112.29 |
$1,338 |
$194 |
|||||
| Property Account Status/Adjustments/Exemptions | ||
|---|---|---|
| Account # | Exemption Description | Amount |
|
R074571075 |
5% Capped Account |
0 |
| Property Deed Transaction History (Recorded in the County Clerk's Office) | ||||||||||
|---|---|---|---|---|---|---|---|---|---|---|
| Date | Type | Book | Page | Price | Grantor | Grantee | ||||
|
12/10/2021 |
|
Deeds |
$138,000 |
ANDERSON DAVID E |
OKLAHOMA HOME OPTIONS LLC |
|||||
|
8/25/2008 |
|
Deeds |
$78,000 |
FEDERAL NATIONAL MTG ASSOCIATION |
ANDERSON DAVID E |
|||||
|
11/26/2007 |
|
Hmstd Off & |
$0 |
HOPPER COLLEEN & WAYNE T |
FEDERAL NATIONAL MTG ASSOCIATION |
|||||
|
3/21/1995 |
|
Historical |
$0 |
COUNTS EULA |
HOPPER COLLEEN & WAYNE T |
|||||
|
2/15/1994 |
|
Historical |
$0 |
COUNTS N D & EULA |
COUNTS EULA |
|||||
| Last Mailed Notice of Value (N.O.V.) Information/History | ||||||||
|---|---|---|---|---|---|---|---|---|
| Year | Date | Market Value | Taxable Market Value | Gross Assessed | Exemption | Net Assessed | ||
|
2026 |
02/06/2026 |
234,000 |
229,936 |
25,292 |
0 |
25,292 |
||
|
2025 |
03/28/2025 |
228,500 |
218,987 |
24,087 |
0 |
24,087 |
||
|
2024 |
01/22/2024 |
163,500 |
153,798 |
16,917 |
0 |
16,917 |
||
|
2023 |
01/23/2023 |
158,500 |
146,475 |
16,112 |
0 |
16,112 |
||
|
2022 |
02/22/2022 |
139,500 |
139,500 |
15,345 |
0 |
15,345 |
||
| Property Building Permit History | ||||||
|---|---|---|---|---|---|---|
| Issued | Permit # | Provided by | Bldg # | Description | Est Construction Cost | Status |
|
1/19/2023 |
|
|
1 |
Remodeled |
|
Inactive |
| Click button on building number to access detailed information: | ||||||
|---|---|---|---|---|---|---|
| Bldg # | Vacant/Improved Land | Bldg Description | Year Built | SqFt | # Stories | |
|
1 |
Improved |
Ranch 1 Story |
1958 |
1,820 |
1 Stories |
|