|
|
|
| Larry Stein Oklahoma County Assessor (405) 713-1200 - Public Access System |
|
|
|
|
|
|
| Real Property Display - Screen Produced 3/23/2026 8:48:23 AM | ||||
|---|---|---|---|---|
| Account: R074571455 | Type: Residential | Location: |
1409 SW 68TH ST |
|
| Building Name/Occupant: |
|
OKLAHOMA CITY |
||
| Owner Name 1: | ACOSTA HENRY A |
Parcel PIN#: |
1715-07-457-1455 |
|
| Owner Name 2: | 1/4 section #: |
1715 |
||
| Owner Name 3: | Parent Acct: |
|
||
| Billing Address: | 1409 SW 68TH ST | Tax District: |
|
|
| City, State, Zip | OKLAHOMA CITY, OK 73159-3211 | School System: |
Oklahoma City #89 |
|
|
Country: (If noted) |
Land Size: |
0.1791 Acres |
||
|
Land Value: 24,960 |
|
|||
|
Sect 29-T11N-R3W Qtr SW |
O T WITTENS SOUTHRIDGE 2ND
Block
003
Lot
022
|
|||
| Full Legal Description: O T WITTENS SOUTHRIDGE 2ND 003 022 |
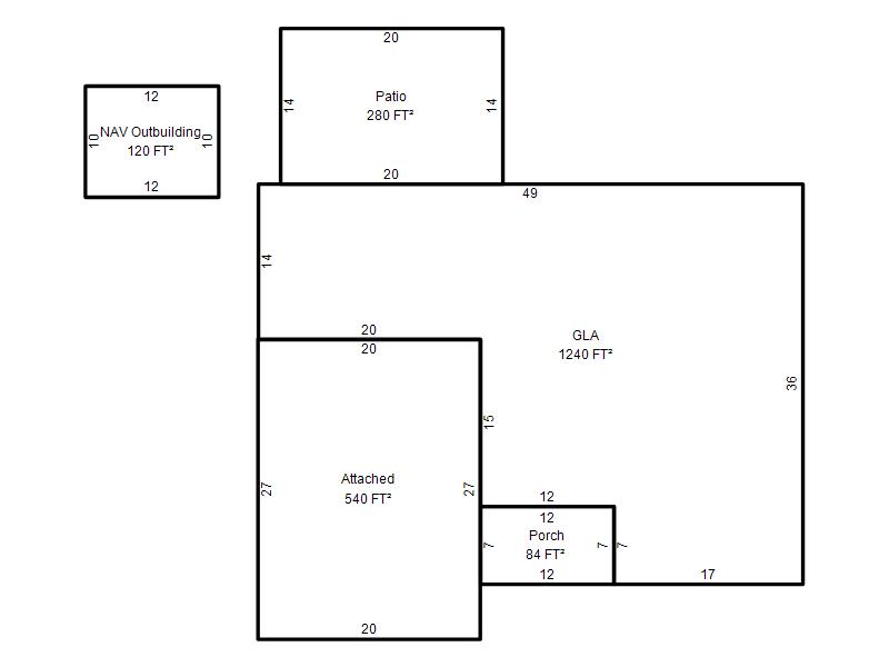
| Photo & Sketch (if available) | Comp Sales (ordered by relevancy) |
|
||||||||||||||||||
|
||||||||||||||||||||
| Value History (*The County Treasurer 405-713-1300 posts & collects actual tax amounts. Contact information HERE) | |||||||||||||
|---|---|---|---|---|---|---|---|---|---|---|---|---|---|
| Year | Market Value | Taxable Mkt Value | Gross Assessed | Exemption | Net Assessed | Millage | Est. Tax | Tax Savings | |||||
|
2025 |
168,000 |
138,363 |
15,219 |
0 |
15,219 |
119.02 |
$1,811 |
$388 |
|||||
|
2024 |
162,500 |
131,775 |
14,495 |
0 |
14,495 |
119.70 |
$1,735 |
$405 |
|||||
|
2023 |
125,500 |
125,500 |
13,805 |
0 |
13,805 |
118.33 |
$1,634 |
$0 |
|||||
|
2022 |
125,500 |
125,500 |
13,805 |
0 |
13,805 |
112.69 |
$1,556 |
$0 |
|||||
|
2021 |
125,500 |
125,500 |
13,805 |
0 |
13,805 |
112.29 |
$1,550 |
$0 |
|||||
| Property Account Status/Adjustments/Exemptions | ||
|---|---|---|
| Account # | Exemption Description | Amount |
|
R074571455 |
5% Capped Account |
0 |
| Property Deed Transaction History (Recorded in the County Clerk's Office) | |||||||
|---|---|---|---|---|---|---|---|
| Date | Type | Book | Page | Price | Grantor | Grantee | |
|
6/19/2020 |
|
Deeds |
$127,500 |
FLOYD CHRISTOPHER B & BRENDA D |
ACOSTA HENRY A |
||
|
10/29/1996 |
|
Historical |
$50,000 |
WINTER ELEANOR F TRS |
FLOYD CHRISTOPHER B & BRENDA D |
||
|
12/16/1993 |
|
Historical |
$0 |
WINTER ROBERT A & E |
WINTER ELEANOR F TRS |
||
|
11/11/1911 |
|
Historical |
$0 |
|
WINTER ROBERT A & E |
||
| Last Mailed Notice of Value (N.O.V.) Information/History | ||||||||
|---|---|---|---|---|---|---|---|---|
| Year | Date | Market Value | Taxable Market Value | Gross Assessed | Exemption | Net Assessed | ||
|
2026 |
02/06/2026 |
176,000 |
145,281 |
15,979 |
0 |
15,979 |
||
|
2025 |
01/31/2025 |
168,000 |
138,363 |
15,219 |
0 |
15,219 |
||
|
2024 |
01/22/2024 |
162,500 |
131,775 |
14,495 |
0 |
14,495 |
||
|
2021 |
02/24/2021 |
125,500 |
125,500 |
13,805 |
0 |
13,805 |
||
|
2020 |
02/21/2020 |
89,500 |
89,500 |
9,845 |
1,000 |
8,845 |
||
| Property Building Permit History | |||||||||||
|---|---|---|---|---|---|---|---|---|---|---|---|
| Issued | Permit # | Provided by | Bldg # | Description | Est Construction Cost | Status | |||||
| No Building Permit records returned. | |||||||||||
| Click button on building number to access detailed information: | ||||||
|---|---|---|---|---|---|---|
| Bldg # | Vacant/Improved Land | Bldg Description | Year Built | SqFt | # Stories | |
|
1 |
Improved |
Ranch 1 Story |
1959 |
1,240 |
1 Stories |
|