|
|
|
| Larry Stein Oklahoma County Assessor (405) 713-1200 - Public Access System |
|
|
|
|
|
|
| Real Property Display - Screen Produced 3/23/2026 8:48:22 AM | ||||
|---|---|---|---|---|
| Account: R074571505 | Type: Residential | Location: |
1312 SW 67TH ST |
|
| Building Name/Occupant: |
|
OKLAHOMA CITY |
||
| Owner Name 1: | PREWITT KYLA |
Parcel PIN#: |
1715-07-457-1505 |
|
| Owner Name 2: | 1/4 section #: |
1715 |
||
| Owner Name 3: | Parent Acct: |
|
||
| Billing Address: | 1312 SW 67TH ST | Tax District: |
|
|
| City, State, Zip | OKLAHOMA CITY, OK 73159-3202 | School System: |
Oklahoma City #89 |
|
|
Country: (If noted) |
Land Size: |
0.1708 Acres |
||
|
Land Value: 23,808 |
|
|||
|
Sect 29-T11N-R3W Qtr SW |
O T WITTENS SOUTHRIDGE 2ND
Block
004
Lot
000
|
|||
| Full Legal Description: O T WITTENS SOUTHRIDGE 2ND 004 000 W57FT LOT 3 & E5FT LOT 4 |
| Photo & Sketch (if available) | Comp Sales (ordered by relevancy) |
|
||||||||||||||||||
|
||||||||||||||||||||
| Value History (*The County Treasurer 405-713-1300 posts & collects actual tax amounts. Contact information HERE) | |||||||||||||
|---|---|---|---|---|---|---|---|---|---|---|---|---|---|
| Year | Market Value | Taxable Mkt Value | Gross Assessed | Exemption | Net Assessed | Millage | Est. Tax | Tax Savings | |||||
|
2025 |
139,000 |
137,505 |
15,125 |
1,000 |
14,125 |
119.02 |
$1,681 |
$139 |
|||||
|
2024 |
133,500 |
133,500 |
14,685 |
1,000 |
13,685 |
119.70 |
$1,638 |
$120 |
|||||
|
2023 |
128,000 |
88,554 |
9,740 |
1,000 |
8,740 |
118.33 |
$1,034 |
$632 |
|||||
|
2022 |
114,000 |
88,554 |
9,740 |
1,000 |
8,740 |
112.69 |
$985 |
$428 |
|||||
|
2021 |
98,000 |
88,554 |
9,740 |
1,000 |
8,740 |
112.29 |
$982 |
$229 |
|||||
| Property Account Status/Adjustments/Exemptions | ||
|---|---|---|
| Account # | Exemption Description | Amount |
|
R074571505 |
3% Cap Homestead |
0 |
|
R074571505 |
Homestead |
1,000 |
| Property Deed Transaction History (Recorded in the County Clerk's Office) | ||||||||||
|---|---|---|---|---|---|---|---|---|---|---|
| Date | Type | Book | Page | Price | Grantor | Grantee | ||||
|
10/18/2023 |
|
Deeds |
$0 |
BAKER TERRY H & MARY A |
BAKER MARY A |
|||||
|
10/17/2023 |
|
Deeds |
$143,000 |
BAKER MARY A |
PREWITT KYLA |
|||||
|
11/20/2009 |
|
Deeds |
$82,500 |
RANSOM FANNIE MAE TRS RANSOM FANNIE MAE REV TRUST |
BAKER TERRY H & MARY A |
|||||
|
10/22/1993 |
|
Historical |
$0 |
RANSOM FANNIE MAE TRS |
RANSOM FANNIE MAE TRS |
|||||
|
10/12/1993 |
|
Historical |
$0 |
RANSOM FANNIE MAE |
RANSOM FANNIE MAE TRS |
|||||
| Last Mailed Notice of Value (N.O.V.) Information/History | ||||||||
|---|---|---|---|---|---|---|---|---|
| Year | Date | Market Value | Taxable Market Value | Gross Assessed | Exemption | Net Assessed | ||
|
2026 |
02/06/2026 |
145,000 |
141,630 |
15,578 |
1,000 |
14,578 |
||
|
2025 |
01/31/2025 |
139,000 |
137,505 |
15,125 |
1,000 |
14,125 |
||
|
2024 |
01/22/2024 |
133,500 |
133,500 |
14,685 |
0 |
14,685 |
||
|
2023 |
01/23/2023 |
128,000 |
88,554 |
9,740 |
1,000 |
8,740 |
||
|
2022 |
02/22/2022 |
114,000 |
88,554 |
9,740 |
1,000 |
8,740 |
||
| Property Building Permit History | |||||||||||
|---|---|---|---|---|---|---|---|---|---|---|---|
| Issued | Permit # | Provided by | Bldg # | Description | Est Construction Cost | Status | |||||
| No Building Permit records returned. | |||||||||||
| Click button on building number to access detailed information: | ||||||
|---|---|---|---|---|---|---|
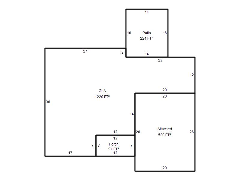
| Bldg # | Vacant/Improved Land | Bldg Description | Year Built | SqFt | # Stories | |
|
1 |
Improved |
Ranch 1 Story |
1959 |
1,220 |
1 Stories |
|