|
|
|
| Larry Stein Oklahoma County Assessor (405) 713-1200 - Public Access System |
|
|
|
|
|
|
| Real Property Display - Screen Produced 3/17/2026 6:20:56 AM | ||||
|---|---|---|---|---|
| Account: R078311080 | Type: Residential | Location: |
1433 SW 71ST ST |
|
| Building Name/Occupant: |
|
OKLAHOMA CITY |
||
| Owner Name 1: | MOORE BRIAN K JR |
Parcel PIN#: |
1715-07-831-1080 |
|
| Owner Name 2: | GOMEZ MARYLWI | 1/4 section #: |
1715 |
|
| Owner Name 3: | Parent Acct: |
|
||
| Billing Address: | 1433 SW 71ST ST | Tax District: |
|
|
| City, State, Zip | OKLAHOMA CITY , OK 73159 | School System: |
Oklahoma City #89 |
|
|
Country: (If noted) |
Land Size: |
0.2755 Acres |
||
|
Land Value: 42,600 |
|
|||
|
Sect 29-T11N-R3W Qtr SW |
O T WITTENS SOUTHRIDGE SEC 4
Block
001
Lot
000
|
|||
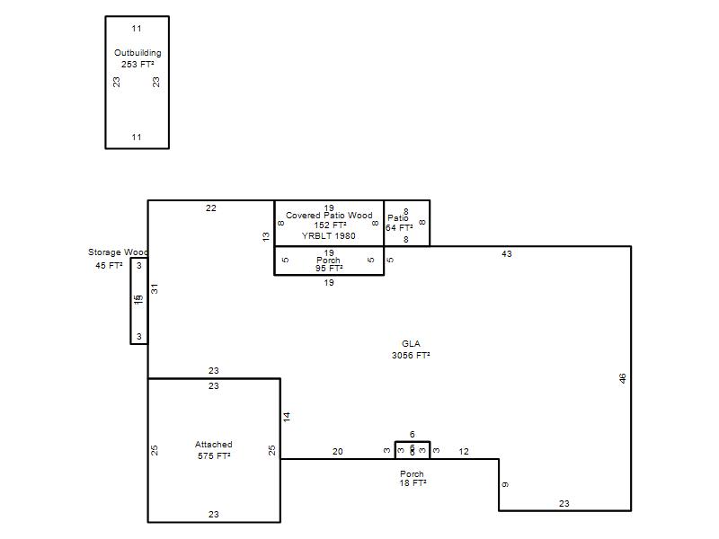
| Full Legal Description: O T WITTENS SOUTHRIDGE SEC 4 001 000 W20FT OF LOT 8 & ALL LOT 9 |
| Photo & Sketch (if available) | Comp Sales (ordered by relevancy) |
|
||||||||||||||||||
|
||||||||||||||||||||
| Value History (*The County Treasurer 405-713-1300 posts & collects actual tax amounts. Contact information HERE) | |||||||||||||
|---|---|---|---|---|---|---|---|---|---|---|---|---|---|
| Year | Market Value | Taxable Mkt Value | Gross Assessed | Exemption | Net Assessed | Millage | Est. Tax | Tax Savings | |||||
|
2025 |
284,500 |
226,537 |
24,918 |
0 |
24,918 |
119.02 |
$2,966 |
$759 |
|||||
|
2024 |
277,500 |
215,750 |
23,732 |
0 |
23,732 |
119.70 |
$2,841 |
$813 |
|||||
|
2023 |
260,500 |
205,477 |
22,602 |
0 |
22,602 |
118.33 |
$2,675 |
$716 |
|||||
|
2022 |
220,000 |
195,693 |
21,526 |
0 |
21,526 |
112.69 |
$2,426 |
$301 |
|||||
|
2021 |
196,000 |
186,375 |
20,501 |
0 |
20,501 |
112.29 |
$2,302 |
$119 |
|||||
| Property Account Status/Adjustments/Exemptions | ||
|---|---|---|
| Account # | Exemption Description | Amount |
|
R078311080 |
5% Capped Account |
0 |
| Property Deed Transaction History (Recorded in the County Clerk's Office) | ||||||||||
|---|---|---|---|---|---|---|---|---|---|---|
| Date | Type | Book | Page | Price | Grantor | Grantee | ||||
|
12/15/2017 |
|
Hmstd Off & |
$0 |
HOWETH CALVIN R & PATSY S TRS |
HOWETH PATSY S TRS |
|||||
|
12/15/2017 |
|
Deeds |
$168,500 |
HOWETH PATSY S TRS |
MOORE BRIAN K JR |
|||||
|
8/21/2001 |
|
Deeds |
$0 |
HOWETH CALVIN R & PATSY S |
HOWETH CALVIN R & PATSY S TRS |
|||||
|
7/19/1996 |
|
Historical |
$0 |
HOWETH CALVIN R |
HOWETH CALVIN R & PATSY S |
|||||
|
6/27/1996 |
|
Historical |
$0 |
HOWETH CALVIN R & MARY F |
HOWETH CALVIN R |
|||||
| Last Mailed Notice of Value (N.O.V.) Information/History | ||||||||
|---|---|---|---|---|---|---|---|---|
| Year | Date | Market Value | Taxable Market Value | Gross Assessed | Exemption | Net Assessed | ||
|
2026 |
02/06/2026 |
291,500 |
237,863 |
26,164 |
0 |
26,164 |
||
|
2025 |
01/31/2025 |
284,500 |
226,537 |
24,918 |
0 |
24,918 |
||
|
2024 |
01/22/2024 |
277,500 |
215,750 |
23,732 |
0 |
23,732 |
||
|
2023 |
01/23/2023 |
260,500 |
205,477 |
22,602 |
0 |
22,602 |
||
|
2022 |
02/22/2022 |
220,000 |
195,693 |
21,526 |
0 |
21,526 |
||
| Property Building Permit History | |||||||||||
|---|---|---|---|---|---|---|---|---|---|---|---|
| Issued | Permit # | Provided by | Bldg # | Description | Est Construction Cost | Status | |||||
| No Building Permit records returned. | |||||||||||
| Click button on building number to access detailed information: | ||||||
|---|---|---|---|---|---|---|
| Bldg # | Vacant/Improved Land | Bldg Description | Year Built | SqFt | # Stories | |
|
1 |
Improved |
Ranch 1 Story |
1968 |
3,056 |
1 Stories |
|