|
|
|
| Larry Stein Oklahoma County Assessor (405) 713-1200 - Public Access System |
|
|
|
|
|
|
| Real Property Display - Screen Produced 3/17/2026 6:21:54 AM | ||||
|---|---|---|---|---|
| Account: R078311140 | Type: Residential | Location: |
1515 SW 71ST ST |
|
| Building Name/Occupant: |
|
OKLAHOMA CITY |
||
| Owner Name 1: | ALVAREZ JOSE GUSTAVO SALDIVAR |
Parcel PIN#: |
1715-07-831-1140 |
|
| Owner Name 2: | 1/4 section #: |
1715 |
||
| Owner Name 3: | Parent Acct: |
|
||
| Billing Address: | 1515 SW 71ST ST | Tax District: |
|
|
| City, State, Zip | OKLAHOMA CITY , OK 73159 | School System: |
Oklahoma City #89 |
|
|
Country: (If noted) |
Land Size: |
0.2204 Acres |
||
|
Land Value: 34,080 |
|
|||
|
Sect 29-T11N-R3W Qtr SW |
O T WITTENS SOUTHRIDGE SEC 4
Block
002
Lot
000
|
|||
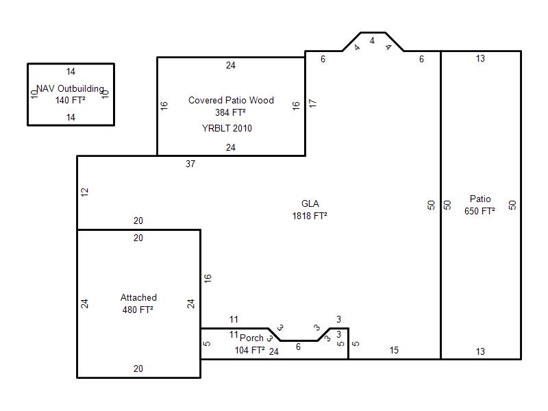
| Full Legal Description: O T WITTENS SOUTHRIDGE SEC 4 002 000 W31FT OF LOT 4 & E49FT OF LOT 5 |
| Photo & Sketch (if available) | Comp Sales (ordered by relevancy) |
|
||||||||||||||||||
|
||||||||||||||||||||
| Value History (*The County Treasurer 405-713-1300 posts & collects actual tax amounts. Contact information HERE) | |||||||||||||
|---|---|---|---|---|---|---|---|---|---|---|---|---|---|
| Year | Market Value | Taxable Mkt Value | Gross Assessed | Exemption | Net Assessed | Millage | Est. Tax | Tax Savings | |||||
|
2025 |
213,000 |
170,382 |
18,741 |
0 |
18,741 |
119.02 |
$2,231 |
$558 |
|||||
|
2024 |
207,500 |
162,269 |
17,848 |
0 |
17,848 |
119.70 |
$2,137 |
$596 |
|||||
|
2023 |
192,500 |
154,542 |
16,999 |
0 |
16,999 |
118.33 |
$2,012 |
$494 |
|||||
|
2022 |
167,500 |
147,183 |
16,189 |
0 |
16,189 |
112.69 |
$1,824 |
$252 |
|||||
|
2021 |
146,000 |
140,175 |
15,419 |
0 |
15,419 |
112.29 |
$1,731 |
$72 |
|||||
| Property Account Status/Adjustments/Exemptions | ||
|---|---|---|
| Account # | Exemption Description | Amount |
|
R078311140 |
5% Capped Account |
0 |
| Property Deed Transaction History (Recorded in the County Clerk's Office) | |||||||
|---|---|---|---|---|---|---|---|
| Date | Type | Book | Page | Price | Grantor | Grantee | |
|
6/28/2018 |
|
Deeds |
$0 |
GRIZZLE BILL E & ALTHA J JT LIV TRUST |
GRIZZLE ALTHA J LIVING TRUST |
||
|
6/28/2018 |
|
Deeds |
$135,000 |
GRIZZLE ALTHA J LIVING TRUST |
ALVAREZ JOSE GUSTAVO SALDIVAR |
||
|
8/14/2012 |
|
Deeds |
$0 |
GRIZZLE BILL E & ALTHA J |
GRIZZLE BILL E & ALTHA J JT LIV TRUST |
||
|
8/25/1993 |
|
Historical |
$85,000 |
SHIPMAN ROBERT L & GRACE C |
GRIZZLE BILL E & ALTHA J |
||
|
11/11/1911 |
|
Historical |
$0 |
|
SHIPMAN ROBERT L & GRACE C |
||
| Last Mailed Notice of Value (N.O.V.) Information/History | ||||||||
|---|---|---|---|---|---|---|---|---|
| Year | Date | Market Value | Taxable Market Value | Gross Assessed | Exemption | Net Assessed | ||
|
2026 |
02/06/2026 |
217,500 |
178,901 |
19,679 |
0 |
19,679 |
||
|
2025 |
01/31/2025 |
213,000 |
170,382 |
18,741 |
0 |
18,741 |
||
|
2024 |
01/22/2024 |
207,500 |
162,269 |
17,848 |
0 |
17,848 |
||
|
2023 |
01/23/2023 |
192,500 |
154,542 |
16,999 |
0 |
16,999 |
||
|
2022 |
02/22/2022 |
167,500 |
147,183 |
16,189 |
0 |
16,189 |
||
| Property Building Permit History | |||||||||||
|---|---|---|---|---|---|---|---|---|---|---|---|
| Issued | Permit # | Provided by | Bldg # | Description | Est Construction Cost | Status | |||||
| No Building Permit records returned. | |||||||||||
| Click button on building number to access detailed information: | ||||||
|---|---|---|---|---|---|---|
| Bldg # | Vacant/Improved Land | Bldg Description | Year Built | SqFt | # Stories | |
|
1 |
Improved |
Ranch 1 Story |
1968 |
1,818 |
1 Stories |
|