|
|
|
| Larry Stein Oklahoma County Assessor (405) 713-1200 - Public Access System |
|
|
|
|
|
|
| Real Property Display - Screen Produced 3/17/2026 6:23:03 AM | ||||
|---|---|---|---|---|
| Account: R078311350 | Type: Residential | Location: |
1408 SW 71ST ST |
|
| Building Name/Occupant: |
|
OKLAHOMA CITY |
||
| Owner Name 1: | JUSTICE LAURA H TRS |
Parcel PIN#: |
1715-07-831-1350 |
|
| Owner Name 2: | JUSTICE LAURA H LIV TRUST | 1/4 section #: |
1715 |
|
| Owner Name 3: | Parent Acct: |
|
||
| Billing Address: | 1408 SW 71ST ST | Tax District: |
|
|
| City, State, Zip | OKLAHOMA CITY, OK 73159-3406 | School System: |
Oklahoma City #89 |
|
|
Country: (If noted) |
Land Size: |
0.2342 Acres |
||
|
Land Value: 36,210 |
|
|||
|
Sect 29-T11N-R3W Qtr SW |
O T WITTENS SOUTHRIDGE SEC 4
Block
004
Lot
000
|
|||
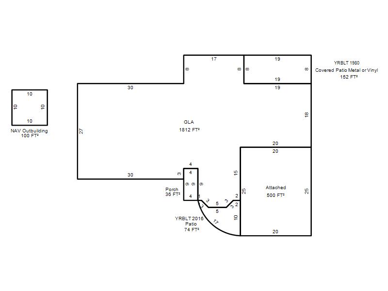
| Full Legal Description: O T WITTENS SOUTHRIDGE SEC 4 004 000 W54FT OF LOT 3 & E31FT OF LOT 4 |
| Photo & Sketch (if available) | Comp Sales (ordered by relevancy) |
|
||||||||||||||||||
|
||||||||||||||||||||
| Value History (*The County Treasurer 405-713-1300 posts & collects actual tax amounts. Contact information HERE) | |||||||||||||
|---|---|---|---|---|---|---|---|---|---|---|---|---|---|
| Year | Market Value | Taxable Mkt Value | Gross Assessed | Exemption | Net Assessed | Millage | Est. Tax | Tax Savings | |||||
|
2025 |
198,500 |
104,488 |
11,493 |
1,000 |
10,493 |
119.02 |
$1,249 |
$1,350 |
|||||
|
2024 |
191,500 |
104,488 |
11,493 |
1,000 |
10,493 |
119.70 |
$1,256 |
$1,265 |
|||||
|
2023 |
178,000 |
104,488 |
11,493 |
1,000 |
10,493 |
118.33 |
$1,242 |
$1,075 |
|||||
|
2022 |
155,000 |
104,488 |
11,493 |
1,000 |
10,493 |
112.69 |
$1,183 |
$739 |
|||||
|
2021 |
136,500 |
104,488 |
11,493 |
1,000 |
10,493 |
112.29 |
$1,178 |
$508 |
|||||
| Property Account Status/Adjustments/Exemptions | ||
|---|---|---|
| Account # | Exemption Description | Amount |
|
R078311350 |
Freeze Senior Valuation |
0 |
|
R078311350 |
3% Cap Homestead |
0 |
|
R078311350 |
Homestead |
1,000 |
| Property Deed Transaction History (Recorded in the County Clerk's Office) | |||||||
|---|---|---|---|---|---|---|---|
| Date | Type | Book | Page | Price | Grantor | Grantee | |
|
5/4/2005 |
|
Deeds |
$0 |
JUSTICE LAURA H |
JUSTICE LAURA H TRS |
||
|
9/19/2003 |
|
Deeds |
$95,000 |
WILKERSON JESS J & JOHNNIE TRS WILKERSON JESS J & JOHNNIE V |
JUSTICE LAURA H |
||
|
4/5/1996 |
|
Historical |
$0 |
WILKERSON JESS J & JOHNNIE V |
WILKERSON JESS J & JOHNNIE TRS |
||
|
4/4/1988 |
|
Historical |
$0 |
WILKERSON JESS J |
WILKERSON JESS J & JOHNNIE V |
||
|
10/1/1985 |
|
Historical |
$0 |
|
WILKERSON JESS J |
||
| Last Mailed Notice of Value (N.O.V.) Information/History | ||||||||
|---|---|---|---|---|---|---|---|---|
| Year | Date | Market Value | Taxable Market Value | Gross Assessed | Exemption | Net Assessed | ||
|
2026 |
02/06/2026 |
202,500 |
104,488 |
11,493 |
1,000 |
10,493 |
||
|
2025 |
01/31/2025 |
198,500 |
104,488 |
11,493 |
1,000 |
10,493 |
||
|
2024 |
01/22/2024 |
191,500 |
104,488 |
11,493 |
1,000 |
10,493 |
||
|
2023 |
01/23/2023 |
178,000 |
104,488 |
11,493 |
1,000 |
10,493 |
||
|
2022 |
02/22/2022 |
155,000 |
104,488 |
11,493 |
1,000 |
10,493 |
||
| Property Building Permit History | |||||||||||
|---|---|---|---|---|---|---|---|---|---|---|---|
| Issued | Permit # | Provided by | Bldg # | Description | Est Construction Cost | Status | |||||
| No Building Permit records returned. | |||||||||||
| Click button on building number to access detailed information: | ||||||
|---|---|---|---|---|---|---|
| Bldg # | Vacant/Improved Land | Bldg Description | Year Built | SqFt | # Stories | |
|
1 |
Improved |
Ranch 1 Story |
1965 |
1,812 |
1 Stories |
|