|
|
|
| Larry Stein Oklahoma County Assessor (405) 713-1200 - Public Access System |
|
|
|
|
|
|
| Real Property Display - Screen Produced 3/21/2026 7:11:52 AM | ||||
|---|---|---|---|---|
| Account: R099151465 | Type: Residential | Location: |
7205 S KENTUCKY AVE |
|
| Building Name/Occupant: |
|
OKLAHOMA CITY |
||
| Owner Name 1: | THANG HAU |
Parcel PIN#: |
1715-09-915-1465 |
|
| Owner Name 2: | VUNG HAU | 1/4 section #: |
1715 |
|
| Owner Name 3: | Parent Acct: |
|
||
| Billing Address: | 7205 S KENTUCKY AVE | Tax District: |
|
|
| City, State, Zip | OKLAHOMA CITY , OK 73159 | School System: |
Oklahoma City #89 |
|
|
Country: (If noted) |
Land Size: |
0.1806 Acres |
||
|
Land Value: 27,924 |
|
|||
|
Sect 29-T11N-R3W Qtr SW |
P B ODOM HILLCREST PRK 1ST
Block
005
Lot
001
|
|||
| Full Legal Description: P B ODOM HILLCREST PRK 1ST 005 001 |
| Photo & Sketch (if available) | Comp Sales (ordered by relevancy) |
|
||||||||||||||||||
|
||||||||||||||||||||
| Value History (*The County Treasurer 405-713-1300 posts & collects actual tax amounts. Contact information HERE) | |||||||||||||
|---|---|---|---|---|---|---|---|---|---|---|---|---|---|
| Year | Market Value | Taxable Mkt Value | Gross Assessed | Exemption | Net Assessed | Millage | Est. Tax | Tax Savings | |||||
|
2025 |
199,500 |
162,085 |
17,829 |
0 |
17,829 |
119.02 |
$2,122 |
$490 |
|||||
|
2024 |
193,500 |
154,367 |
16,979 |
0 |
16,979 |
119.70 |
$2,033 |
$515 |
|||||
|
2023 |
181,000 |
147,017 |
16,171 |
0 |
16,171 |
118.33 |
$1,914 |
$442 |
|||||
|
2022 |
157,000 |
140,017 |
15,401 |
0 |
15,401 |
112.69 |
$1,736 |
$211 |
|||||
|
2021 |
138,500 |
133,350 |
14,668 |
0 |
14,668 |
112.29 |
$1,647 |
$64 |
|||||
| Property Account Status/Adjustments/Exemptions | ||
|---|---|---|
| Account # | Exemption Description | Amount |
|
R099151465 |
5% Capped Account |
0 |
| Property Deed Transaction History (Recorded in the County Clerk's Office) | |||||||
|---|---|---|---|---|---|---|---|
| Date | Type | Book | Page | Price | Grantor | Grantee | |
|
2/8/2019 |
|
Deeds |
$135,000 |
MIG HOLDINGS LLC |
THANG HAU |
||
|
11/6/2018 |
|
Deeds |
$72,000 |
DAVIS EDGAR E |
MIG HOLDINGS LLC |
||
|
10/25/2018 |
|
Deeds |
$0 |
DAVIS EDGAR E & ROBERTA J |
DAVIS EDGAR E |
||
|
4/12/1999 |
|
Historical |
$89,500 |
DOBSON WILLIAM H & G S |
DAVIS EDGAR E & ROBERTA J |
||
|
11/11/1911 |
|
Historical |
$0 |
|
DOBSON WILLIAM H & G S |
||
| Last Mailed Notice of Value (N.O.V.) Information/History | ||||||||
|---|---|---|---|---|---|---|---|---|
| Year | Date | Market Value | Taxable Market Value | Gross Assessed | Exemption | Net Assessed | ||
|
2026 |
02/06/2026 |
203,000 |
170,189 |
18,720 |
0 |
18,720 |
||
|
2025 |
01/31/2025 |
199,500 |
162,085 |
17,829 |
0 |
17,829 |
||
|
2024 |
01/22/2024 |
193,500 |
154,367 |
16,979 |
0 |
16,979 |
||
|
2023 |
01/23/2023 |
181,000 |
147,017 |
16,171 |
0 |
16,171 |
||
|
2022 |
02/22/2022 |
157,000 |
140,017 |
15,401 |
0 |
15,401 |
||
| Property Building Permit History | |||||||||||
|---|---|---|---|---|---|---|---|---|---|---|---|
| Issued | Permit # | Provided by | Bldg # | Description | Est Construction Cost | Status | |||||
| No Building Permit records returned. | |||||||||||
| Click button on building number to access detailed information: | ||||||
|---|---|---|---|---|---|---|
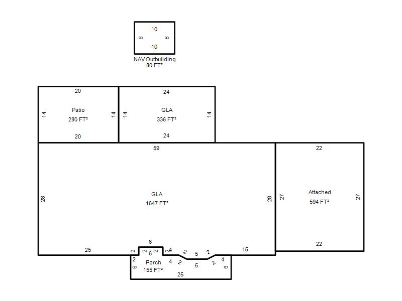
| Bldg # | Vacant/Improved Land | Bldg Description | Year Built | SqFt | # Stories | |
|
1 |
Improved |
Ranch 1 Story |
1963 |
1,983 |
1 Stories |
|