|
|
|
| Larry Stein Oklahoma County Assessor (405) 713-1200 - Public Access System |
|
|
|
|
|
|
| Real Property Display - Screen Produced 3/17/2026 5:07:55 AM | ||||
|---|---|---|---|---|
| Account: R074505145 | Type: Residential | Location: |
1409 SW 63RD ST |
|
| Building Name/Occupant: |
|
OKLAHOMA CITY |
||
| Owner Name 1: | AKT EQUITY LLC |
Parcel PIN#: |
1716-07-450-5145 |
|
| Owner Name 2: | 1/4 section #: |
1716 |
||
| Owner Name 3: | Parent Acct: |
|
||
| Billing Address: | 24664 CORDILLERA DR | Tax District: |
|
|
| City, State, Zip | CALABASAS, CA 91302 | School System: |
Oklahoma City #89 |
|
|
Country: (If noted) |
Land Size: |
0.1427 Acres |
||
|
Land Value: 21,753 |
|
|||
|
Sect 29-T11N-R3W Qtr NW |
HILLCREST HEIGHTS ADD
Block
085
Lot
006
|
|||
| Full Legal Description: HILLCREST HEIGHTS ADD 085 006 |
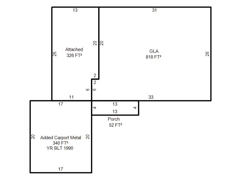
| Photo & Sketch (if available) | Comp Sales (ordered by relevancy) |
|
||||||||||||||||||
|
||||||||||||||||||||
| Value History (*The County Treasurer 405-713-1300 posts & collects actual tax amounts. Contact information HERE) | |||||||||||||
|---|---|---|---|---|---|---|---|---|---|---|---|---|---|
| Year | Market Value | Taxable Mkt Value | Gross Assessed | Exemption | Net Assessed | Millage | Est. Tax | Tax Savings | |||||
|
2025 |
121,000 |
81,042 |
8,914 |
0 |
8,914 |
119.02 |
$1,061 |
$523 |
|||||
|
2024 |
111,000 |
77,183 |
8,489 |
0 |
8,489 |
119.70 |
$1,016 |
$445 |
|||||
|
2023 |
99,000 |
73,508 |
8,085 |
0 |
8,085 |
118.33 |
$957 |
$332 |
|||||
|
2022 |
89,000 |
70,008 |
7,700 |
0 |
7,700 |
112.69 |
$868 |
$235 |
|||||
|
2021 |
72,500 |
66,675 |
7,334 |
0 |
7,334 |
112.29 |
$824 |
$72 |
|||||
| Property Account Status/Adjustments/Exemptions | ||
|---|---|---|
| Account # | Exemption Description | Amount |
|
R074505145 |
5% Capped Account |
0 |
| Property Deed Transaction History (Recorded in the County Clerk's Office) | |||||||
|---|---|---|---|---|---|---|---|
| Date | Type | Book | Page | Price | Grantor | Grantee | |
|
5/30/2014 |
|
Deeds |
$0 |
GENTRY TROY & MARY R |
GENTRY MARY RUTH |
||
|
5/30/2014 |
|
Deeds |
$48,000 |
GENTRY MARY RUTH |
AKT EQUITY LLC |
||
|
11/11/1911 |
|
Historical |
$0 |
|
GENTRY TROY & MARY R |
||
| Last Mailed Notice of Value (N.O.V.) Information/History | ||||||||
|---|---|---|---|---|---|---|---|---|
| Year | Date | Market Value | Taxable Market Value | Gross Assessed | Exemption | Net Assessed | ||
|
2026 |
02/06/2026 |
116,500 |
85,094 |
9,359 |
0 |
9,359 |
||
|
2025 |
01/31/2025 |
121,000 |
81,042 |
8,914 |
0 |
8,914 |
||
|
2024 |
01/22/2024 |
111,000 |
77,183 |
8,489 |
0 |
8,489 |
||
|
2023 |
01/23/2023 |
99,000 |
73,508 |
8,085 |
0 |
8,085 |
||
|
2022 |
02/22/2022 |
89,000 |
70,008 |
7,700 |
0 |
7,700 |
||
| Property Building Permit History | |||||||||||
|---|---|---|---|---|---|---|---|---|---|---|---|
| Issued | Permit # | Provided by | Bldg # | Description | Est Construction Cost | Status | |||||
| No Building Permit records returned. | |||||||||||
| Click button on building number to access detailed information: | ||||||
|---|---|---|---|---|---|---|
| Bldg # | Vacant/Improved Land | Bldg Description | Year Built | SqFt | # Stories | |
|
1 |
Improved |
Ranch 1 Story |
1960 |
818 |
1 Stories |
|