|
|
|
| Larry Stein Oklahoma County Assessor (405) 713-1200 - Public Access System |
|
|
|
|
|
|
| Real Property Display - Screen Produced 3/13/2026 12:50:43 AM | ||||
|---|---|---|---|---|
| Account: R074505255 | Type: Residential | Location: |
1340 SW 63RD ST |
|
| Building Name/Occupant: |
|
OKLAHOMA CITY |
||
| Owner Name 1: | RODRIGUEZ DAMIAN LAGUNA |
Parcel PIN#: |
1716-07-450-5255 |
|
| Owner Name 2: | 1/4 section #: |
1716 |
||
| Owner Name 3: | Parent Acct: |
|
||
| Billing Address: | 1453 SW 64TH ST | Tax District: |
|
|
| City, State, Zip | OKLAHOMA CITY, OK 73159-3101 | School System: |
Oklahoma City #89 |
|
|
Country: (If noted) |
Land Size: |
0.1578 Acres |
||
|
Land Value: 24,063 |
|
|||
|
Sect 29-T11N-R3W Qtr NW |
HILLCREST HEIGHTS ADD
Block
086
Lot
011
|
|||
| Full Legal Description: HILLCREST HEIGHTS ADD 086 011 |
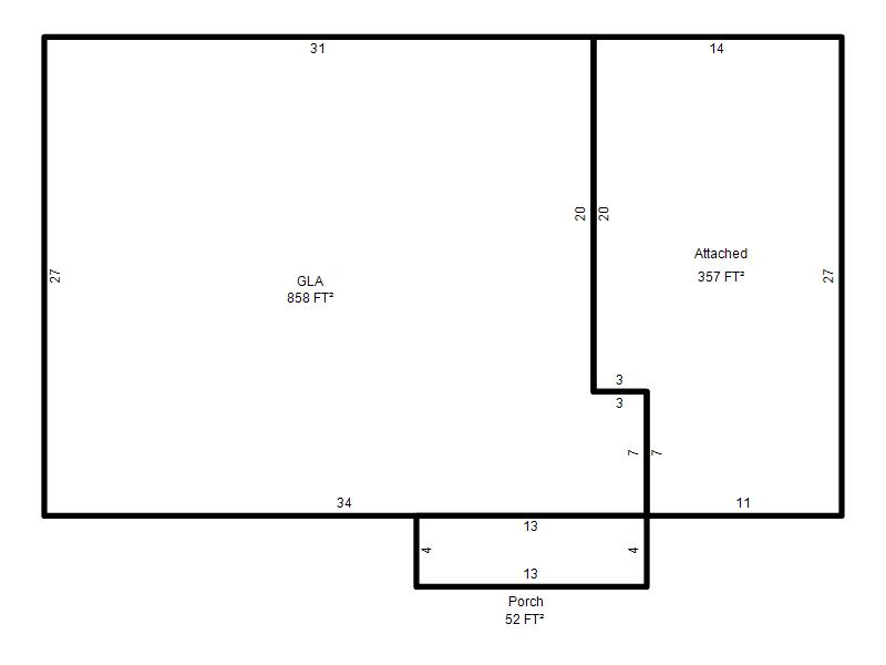
| Photo & Sketch (if available) | Comp Sales (ordered by relevancy) |
|
||||||||||||||||||
|
||||||||||||||||||||
| Value History (*The County Treasurer 405-713-1300 posts & collects actual tax amounts. Contact information HERE) | |||||||||||||
|---|---|---|---|---|---|---|---|---|---|---|---|---|---|
| Year | Market Value | Taxable Mkt Value | Gross Assessed | Exemption | Net Assessed | Millage | Est. Tax | Tax Savings | |||||
|
2025 |
126,500 |
84,871 |
9,335 |
0 |
9,335 |
119.02 |
$1,111 |
$545 |
|||||
|
2024 |
116,000 |
80,830 |
8,890 |
0 |
8,890 |
119.70 |
$1,064 |
$463 |
|||||
|
2023 |
103,500 |
76,981 |
8,467 |
0 |
8,467 |
118.33 |
$1,002 |
$345 |
|||||
|
2022 |
91,500 |
73,316 |
8,064 |
0 |
8,064 |
112.69 |
$909 |
$225 |
|||||
|
2021 |
76,000 |
69,825 |
7,680 |
0 |
7,680 |
112.29 |
$862 |
$76 |
|||||
| Property Account Status/Adjustments/Exemptions | ||||||
|---|---|---|---|---|---|---|
| Account # | Exemption Description | Amount | ||||
| No adjustment/exemption records returned. | ||||||
| Property Deed Transaction History (Recorded in the County Clerk's Office) | |||||||
|---|---|---|---|---|---|---|---|
| Date | Type | Book | Page | Price | Grantor | Grantee | |
|
8/28/2025 |
|
Deeds |
$85,000 |
RIDLE JANET C |
RODRIGUEZ DAMIAN LAGUNA |
||
|
7/1/1986 |
|
Historical |
$0 |
|
RIDLE JANET C |
||
| Last Mailed Notice of Value (N.O.V.) Information/History | ||||||||
|---|---|---|---|---|---|---|---|---|
| Year | Date | Market Value | Taxable Market Value | Gross Assessed | Exemption | Net Assessed | ||
|
2026 |
02/06/2026 |
123,500 |
123,500 |
13,585 |
0 |
13,585 |
||
|
2025 |
01/31/2025 |
126,500 |
84,871 |
9,335 |
0 |
9,335 |
||
|
2024 |
01/22/2024 |
116,000 |
80,830 |
8,890 |
0 |
8,890 |
||
|
2023 |
01/23/2023 |
103,500 |
76,981 |
8,467 |
0 |
8,467 |
||
|
2022 |
02/22/2022 |
91,500 |
73,316 |
8,064 |
0 |
8,064 |
||
| Property Building Permit History | |||||||||||
|---|---|---|---|---|---|---|---|---|---|---|---|
| Issued | Permit # | Provided by | Bldg # | Description | Est Construction Cost | Status | |||||
| No Building Permit records returned. | |||||||||||
| Click button on building number to access detailed information: | ||||||
|---|---|---|---|---|---|---|
| Bldg # | Vacant/Improved Land | Bldg Description | Year Built | SqFt | # Stories | |
|
1 |
Improved |
Ranch 1 Story |
1961 |
858 |
1 Stories |
|