|
|
|
| Larry Stein Oklahoma County Assessor (405) 713-1200 - Public Access System |
|
|
|
|
|
|
| Real Property Display - Screen Produced 3/15/2026 4:35:59 AM | ||||
|---|---|---|---|---|
| Account: R074506180 | Type: Residential | Location: |
1437 SW 61ST ST |
|
| Building Name/Occupant: |
|
OKLAHOMA CITY |
||
| Owner Name 1: | DIAMOND STAR PROPERTY MANAGEMENT LLC |
Parcel PIN#: |
1716-07-450-6180 |
|
| Owner Name 2: | 1/4 section #: |
1716 |
||
| Owner Name 3: | Parent Acct: |
|
||
| Billing Address: | 4520 TUSCANY DR | Tax District: |
|
|
| City, State, Zip | NORMAN , OK 73072 | School System: |
Oklahoma City #89 |
|
|
Country: (If noted) |
Land Size: |
0.1389 Acres |
||
|
Land Value: 21,175 |
|
|||
|
Sect 29-T11N-R3W Qtr NW |
HILLCREST HEIGHTS ADD
Block
090
Lot
033
|
|||
| Full Legal Description: HILLCREST HEIGHTS ADD 090 033 |
| Photo & Sketch (if available) | Comp Sales (ordered by relevancy) |
|
||||||||||||||||||
|
||||||||||||||||||||
| Value History (*The County Treasurer 405-713-1300 posts & collects actual tax amounts. Contact information HERE) | |||||||||||||
|---|---|---|---|---|---|---|---|---|---|---|---|---|---|
| Year | Market Value | Taxable Mkt Value | Gross Assessed | Exemption | Net Assessed | Millage | Est. Tax | Tax Savings | |||||
|
2025 |
137,000 |
97,020 |
10,672 |
0 |
10,672 |
119.02 |
$1,270 |
$523 |
|||||
|
2024 |
126,500 |
92,400 |
10,164 |
0 |
10,164 |
119.70 |
$1,217 |
$449 |
|||||
|
2023 |
88,000 |
88,000 |
9,680 |
0 |
9,680 |
118.33 |
$1,145 |
$0 |
|||||
|
2022 |
88,000 |
88,000 |
9,680 |
0 |
9,680 |
112.69 |
$1,091 |
$0 |
|||||
|
2021 |
84,000 |
76,650 |
8,431 |
0 |
8,431 |
112.29 |
$947 |
$91 |
|||||
| Property Account Status/Adjustments/Exemptions | ||
|---|---|---|
| Account # | Exemption Description | Amount |
|
R074506180 |
5% Capped Account |
0 |
| Property Deed Transaction History (Recorded in the County Clerk's Office) | ||||||||||
|---|---|---|---|---|---|---|---|---|---|---|
| Date | Type | Book | Page | Price | Grantor | Grantee | ||||
|
9/22/2021 |
|
Hmstd Off & |
$0 |
ASHIQ MUHAMMAD IRFAN |
DIAMOND STAR PROPERTY MANAGEMENT LLC |
|||||
|
1/21/2021 |
|
Deeds |
$86,000 |
LANG VU TUAN & QUYEN HUE |
ASHIQ MUHAMMAD IRFAN |
|||||
|
9/21/2012 |
|
Deeds |
$0 |
LANG VU TUAN |
LANG VU TUAN & QUYEN HUE |
|||||
|
11/1/2004 |
|
Other |
$0 |
SECRETARY OF HOUSING & URBAN DEV |
LANG VU TUAN |
|||||
|
7/19/2004 |
|
Other |
$0 |
CAVES ERIC T |
SECRETARY OF HOUSING & URBAN DEV |
|||||
| Last Mailed Notice of Value (N.O.V.) Information/History | ||||||||
|---|---|---|---|---|---|---|---|---|
| Year | Date | Market Value | Taxable Market Value | Gross Assessed | Exemption | Net Assessed | ||
|
2026 |
02/06/2026 |
134,000 |
101,871 |
11,205 |
0 |
11,205 |
||
|
2025 |
01/31/2025 |
137,000 |
97,020 |
10,672 |
0 |
10,672 |
||
|
2024 |
01/22/2024 |
126,500 |
92,400 |
10,164 |
0 |
10,164 |
||
|
2022 |
02/22/2022 |
88,000 |
88,000 |
9,680 |
0 |
9,680 |
||
|
2021 |
02/24/2021 |
84,000 |
76,650 |
8,431 |
0 |
8,431 |
||
| Property Building Permit History | |||||||||||
|---|---|---|---|---|---|---|---|---|---|---|---|
| Issued | Permit # | Provided by | Bldg # | Description | Est Construction Cost | Status | |||||
| No Building Permit records returned. | |||||||||||
| Click button on building number to access detailed information: | ||||||
|---|---|---|---|---|---|---|
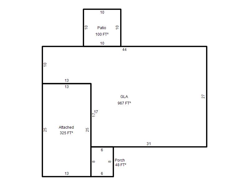
| Bldg # | Vacant/Improved Land | Bldg Description | Year Built | SqFt | # Stories | |
|
1 |
Improved |
Ranch 1 Story |
1963 |
967 |
1 Stories |
|