|
|
|
| Larry Stein Oklahoma County Assessor (405) 713-1200 - Public Access System |
|
|
|
|
|
|
| Real Property Display - Screen Produced 3/12/2026 11:28:43 PM | ||||
|---|---|---|---|---|
| Account: R074491175 | Type: Residential | Location: |
6300 S COUNTRY CLUB DR |
|
| Building Name/Occupant: |
|
OKLAHOMA CITY |
||
| Owner Name 1: | ROJAS CONRADO MARTINEZ ETAL |
Parcel PIN#: |
1717-07-449-1175 |
|
| Owner Name 2: | DE MARTINEZ ELVIA DAVALOS | 1/4 section #: |
1717 |
|
| Owner Name 3: | TRUJILLO ROLANDO GAMEZ | Parent Acct: |
|
|
| Billing Address: | 6300 S COUNTRY CLUB DR | Tax District: |
|
|
| City, State, Zip | OKLAHOMA CITY, OK 73159-1830 | School System: |
Oklahoma City #89 |
|
|
Country: (If noted) |
Land Size: |
0.3150 Acres |
||
|
Land Value: 33,614 |
|
|||
|
Sect 30-T11N-R3W Qtr NE |
HILLCREST HGTS CTRY CL
Block
011
Lot
007
|
|||
| Full Legal Description: HILLCREST HGTS CTRY CL 011 007 |
| Photo & Sketch (if available) | Comp Sales (ordered by relevancy) |
|
||||||||||||||||||
|
||||||||||||||||||||
| Value History (*The County Treasurer 405-713-1300 posts & collects actual tax amounts. Contact information HERE) | |||||||||||||
|---|---|---|---|---|---|---|---|---|---|---|---|---|---|
| Year | Market Value | Taxable Mkt Value | Gross Assessed | Exemption | Net Assessed | Millage | Est. Tax | Tax Savings | |||||
|
2025 |
240,000 |
181,869 |
20,004 |
0 |
20,004 |
119.02 |
$2,381 |
$761 |
|||||
|
2024 |
229,500 |
173,209 |
19,052 |
0 |
19,052 |
119.70 |
$2,281 |
$741 |
|||||
|
2023 |
206,500 |
164,961 |
18,145 |
0 |
18,145 |
118.33 |
$2,147 |
$541 |
|||||
|
2022 |
176,000 |
157,106 |
17,280 |
0 |
17,280 |
112.69 |
$1,947 |
$234 |
|||||
|
2021 |
157,500 |
149,625 |
16,458 |
0 |
16,458 |
112.29 |
$1,848 |
$97 |
|||||
| Property Account Status/Adjustments/Exemptions | ||
|---|---|---|
| Account # | Exemption Description | Amount |
|
R074491175 |
5% Capped Account |
0 |
| Property Deed Transaction History (Recorded in the County Clerk's Office) | ||||||||||
|---|---|---|---|---|---|---|---|---|---|---|
| Date | Type | Book | Page | Price | Grantor | Grantee | ||||
|
2/15/2023 |
|
Deeds |
$0 |
ROJAS CONRADO MARTINEZ |
ROJAS CONRADO MARTINEZ ETAL |
|||||
|
12/9/2013 |
|
Deeds |
$132,000 |
CUNNINGHAM WILLIAM B |
ROJAS CONRADO MARTINEZ |
|||||
|
5/19/2009 |
|
Deeds |
$141,000 |
MUNZURIS PAUL M & DENISE N |
CUNNINGHAM WILLIAM B |
|||||
|
5/5/1987 |
|
Historical |
$78,000 |
GRIGGS PAUL V TRS |
MUNZURIS PAUL M & DENISE N |
|||||
|
12/1/1986 |
|
Historical |
$0 |
LARKIN ELISHA C & LELA G |
GRIGGS PAUL V TRS |
|||||
| Last Mailed Notice of Value (N.O.V.) Information/History | ||||||||
|---|---|---|---|---|---|---|---|---|
| Year | Date | Market Value | Taxable Market Value | Gross Assessed | Exemption | Net Assessed | ||
|
2026 |
02/06/2026 |
238,500 |
190,962 |
21,005 |
0 |
21,005 |
||
|
2025 |
01/31/2025 |
240,000 |
181,869 |
20,004 |
0 |
20,004 |
||
|
2024 |
01/22/2024 |
229,500 |
173,209 |
19,052 |
0 |
19,052 |
||
|
2023 |
01/23/2023 |
206,500 |
164,961 |
18,145 |
0 |
18,145 |
||
|
2022 |
02/22/2022 |
176,000 |
157,106 |
17,280 |
0 |
17,280 |
||
| Property Building Permit History | |||||||||||
|---|---|---|---|---|---|---|---|---|---|---|---|
| Issued | Permit # | Provided by | Bldg # | Description | Est Construction Cost | Status | |||||
| No Building Permit records returned. | |||||||||||
| Click button on building number to access detailed information: | ||||||
|---|---|---|---|---|---|---|
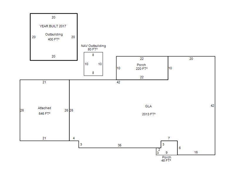
| Bldg # | Vacant/Improved Land | Bldg Description | Year Built | SqFt | # Stories | |
|
1 |
Improved |
Ranch 1 Story |
1955 |
2,013 |
1 Stories |
|