|
|
|
| Larry Stein Oklahoma County Assessor (405) 713-1200 - Public Access System |
|
|
|
|
|
|
| Real Property Display - Screen Produced 3/12/2026 11:28:43 PM | ||||
|---|---|---|---|---|
| Account: R074491485 | Type: Residential | Location: |
6416 S COUNTRY CLUB DR |
|
| Building Name/Occupant: |
|
OKLAHOMA CITY |
||
| Owner Name 1: | BRADLEY CAREY |
Parcel PIN#: |
1717-07-449-1485 |
|
| Owner Name 2: | 1/4 section #: |
1717 |
||
| Owner Name 3: | Parent Acct: |
|
||
| Billing Address: | 6416 S COUNTRY CLUB DR | Tax District: |
|
|
| City, State, Zip | OKLAHOMA CITY, OK 73159 | School System: |
Oklahoma City #89 |
|
|
Country: (If noted) |
UNITED STATES |
Land Size: |
0.3831 Acres |
|
|
Land Value: 40,886 |
|
|||
|
Sect 30-T11N-R3W Qtr NE |
HILLCREST HGTS CTRY CL
Block
013
Lot
006
|
|||
| Full Legal Description: HILLCREST HGTS CTRY CL 013 006 |
| Photo & Sketch (if available) | Comp Sales (ordered by relevancy) |
|
||||||||||||||||||
|
||||||||||||||||||||
| Value History (*The County Treasurer 405-713-1300 posts & collects actual tax amounts. Contact information HERE) | |||||||||||||
|---|---|---|---|---|---|---|---|---|---|---|---|---|---|
| Year | Market Value | Taxable Mkt Value | Gross Assessed | Exemption | Net Assessed | Millage | Est. Tax | Tax Savings | |||||
|
2025 |
235,000 |
178,689 |
19,655 |
1,000 |
18,655 |
119.02 |
$2,220 |
$856 |
|||||
|
2024 |
226,500 |
173,485 |
19,082 |
1,000 |
18,082 |
119.70 |
$2,165 |
$818 |
|||||
|
2023 |
203,500 |
168,433 |
18,527 |
0 |
18,527 |
118.33 |
$2,192 |
$456 |
|||||
|
2022 |
178,000 |
160,413 |
17,645 |
0 |
17,645 |
112.69 |
$1,988 |
$218 |
|||||
|
2021 |
157,500 |
152,775 |
16,805 |
0 |
16,805 |
112.29 |
$1,887 |
$58 |
|||||
| Property Account Status/Adjustments/Exemptions | ||
|---|---|---|
| Account # | Exemption Description | Amount |
|
R074491485 |
Homestead |
1,000 |
|
R074491485 |
3% Cap Homestead |
0 |
| Property Deed Transaction History (Recorded in the County Clerk's Office) | ||||||||||
|---|---|---|---|---|---|---|---|---|---|---|
| Date | Type | Book | Page | Price | Grantor | Grantee | ||||
|
4/1/2009 |
|
Deeds |
$101,000 |
DEUTSCHE BANK NATIONAL TRUST CO |
BRADLEY CAREY |
|||||
|
1/15/2009 |
|
Hmstd Off & |
$0 |
DENNIS IRA & DIANE |
DEUTSCHE BANK NATIONAL TRUST CO |
|||||
|
6/23/2006 |
|
Deeds |
$150,000 |
BACHELOR LUCILLE M |
DENNIS IRA & DIANE |
|||||
|
12/4/1991 |
|
Historical |
$0 |
BACHELOR LUCILLE M |
BACHELOR LUCILLE M |
|||||
|
5/20/1988 |
|
Historical |
$75,000 |
HARRIS HERSHEL M |
BACHELOR LUCILLE M |
|||||
| Last Mailed Notice of Value (N.O.V.) Information/History | ||||||||
|---|---|---|---|---|---|---|---|---|
| Year | Date | Market Value | Taxable Market Value | Gross Assessed | Exemption | Net Assessed | ||
|
2026 |
02/06/2026 |
233,500 |
184,049 |
20,244 |
1,000 |
19,244 |
||
|
2025 |
01/31/2025 |
235,000 |
178,689 |
19,655 |
1,000 |
18,655 |
||
|
2024 |
01/22/2024 |
226,500 |
176,854 |
19,453 |
0 |
19,453 |
||
|
2023 |
01/23/2023 |
203,500 |
168,433 |
18,527 |
0 |
18,527 |
||
|
2022 |
02/22/2022 |
178,000 |
160,413 |
17,645 |
0 |
17,645 |
||
| Property Building Permit History | ||||||
|---|---|---|---|---|---|---|
| Issued | Permit # | Provided by | Bldg # | Description | Est Construction Cost | Status |
|
7/7/1993 |
10196516 |
OKLAHOMA CITY |
1 |
Swimming Pool |
9,000 |
Inactive |
| Click button on building number to access detailed information: | ||||||
|---|---|---|---|---|---|---|
| Bldg # | Vacant/Improved Land | Bldg Description | Year Built | SqFt | # Stories | |
|
1 |
Improved |
Ranch 1 Story |
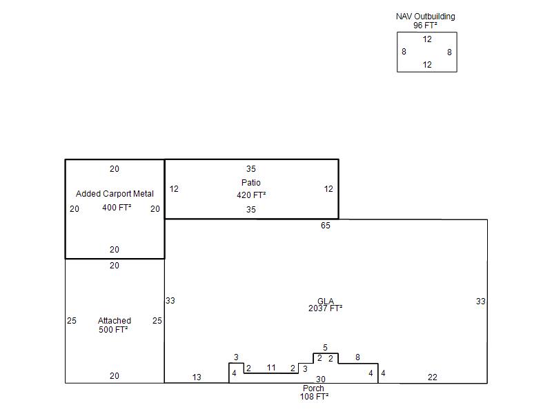
1958 |
2,037 |
1 Stories |
|