|
|
|
| Larry Stein Oklahoma County Assessor (405) 713-1200 - Public Access System |
|
|
|
|
|
|
| Real Property Display - Screen Produced 3/15/2026 5:38:20 AM | ||||
|---|---|---|---|---|
| Account: R074501020 | Type: Commercial | Location: |
2150 SW 59TH ST |
|
| Building Name/Occupant: |
ALDI FOOD STORE |
OKLAHOMA CITY |
||
| Owner Name 1: | ALDI INC |
Parcel PIN#: |
1717-07-450-1020 |
|
| Owner Name 2: | 1/4 section #: |
1717 |
||
| Owner Name 3: | C/O RYAN TAX COMPLANICE SERVICES LLC DEPT 501 | Parent Acct: |
1717-07-450-1005 |
|
| Billing Address: | PO BOX 460049 | Tax District: |
|
|
| City, State, Zip | HOUSTON, TX 77056 | School System: |
Oklahoma City #89 |
|
|
Country: (If noted) |
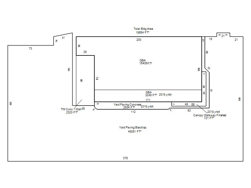
Land Size: |
85,805.0000 Square Feet |
||
|
Land Value: 386,122 |
|
|||
|
Sect 30-T11N-R3W Qtr NE |
HILLCREST HEIGHTS ADD
Block
001
Lot
000
|
|||
| Full Legal Description: HILLCREST HEIGHTS ADD 001 000 PT OF LOT 1 BEG NLY NW/C LOT 1 TH E204.68FT S390.04FT W199.28FT RIGHT ALONG CURVE 293.72FT N69.49FT NE35.36FT TO BEG |
| No comparable sales report available. | ||||||||||||||||||||||
|
||||||||||||||||||||||
| Value History (*The County Treasurer 405-713-1300 posts & collects actual tax amounts. Contact information HERE) | |||||||||||||
|---|---|---|---|---|---|---|---|---|---|---|---|---|---|
| Year | Market Value | Taxable Mkt Value | Gross Assessed | Exemption | Net Assessed | Millage | Est. Tax | Tax Savings | |||||
|
2025 |
1,540,696 |
1,540,696 |
169,476 |
0 |
169,476 |
119.02 |
$20,171 |
$0 |
|||||
|
2024 |
1,514,302 |
1,514,302 |
166,573 |
0 |
166,573 |
119.70 |
$19,939 |
$0 |
|||||
|
2023 |
1,514,302 |
1,514,302 |
166,573 |
0 |
166,573 |
118.33 |
$19,711 |
$0 |
|||||
|
2022 |
1,514,302 |
1,514,302 |
166,573 |
0 |
166,573 |
112.69 |
$18,771 |
$0 |
|||||
|
2021 |
1,514,302 |
1,514,302 |
166,573 |
0 |
166,573 |
112.29 |
$18,705 |
$0 |
|||||
| Property Account Status/Adjustments/Exemptions | ||
|---|---|---|
| Account # | Exemption Description | Amount |
|
R074501020 |
5% Capped Account |
0 |
| Property Deed Transaction History (Recorded in the County Clerk's Office) | |||||||
|---|---|---|---|---|---|---|---|
| Date | Type | Book | Page | Price | Grantor | Grantee | |
|
5/2/2003 |
|
Deeds |
$900,000 |
ROARING FORK ASSOCIATES LLC |
ALDI INC |
||
| Last Mailed Notice of Value (N.O.V.) Information/History | ||||||
|---|---|---|---|---|---|---|
| Year | Date | Market Value | Taxable Market Value | Gross Assessed | Exemption | Net Assessed |
|
2025 |
03/14/2025 |
1,540,696 |
1,540,696 |
169,476 |
0 |
169,476 |
|
2019 |
04/12/2019 |
1,514,302 |
1,514,302 |
166,573 |
0 |
166,573 |
|
2016 |
03/04/2016 |
1,430,350 |
1,430,350 |
157,337 |
0 |
157,337 |
|
2011 |
03/10/2011 |
1,417,260 |
1,417,260 |
155,897 |
0 |
155,897 |
| Property Building Permit History | |||||||||||
|---|---|---|---|---|---|---|---|---|---|---|---|
| Issued | Permit # | Provided by | Bldg # | Description | Est Construction Cost | Status | |||||
| No Building Permit records returned. | |||||||||||
| Click button on building number to access detailed information: | ||||||
|---|---|---|---|---|---|---|
| Bldg # | Vacant/Improved Land | Bldg Description | Year Built | SqFt | # Stories | |
|
1 |
Improved |
Market |
2003 |
18,654 |
1 Stories |
|