|
|
|
| Larry Stein Oklahoma County Assessor (405) 713-1200 - Public Access System |
|
|
|
|
|
|
| Real Property Display - Screen Produced 3/15/2026 8:34:46 AM | ||||
|---|---|---|---|---|
| Account: R074501035 | Type: Residential | Location: |
2109 SW 60TH ST |
|
| Building Name/Occupant: |
|
OKLAHOMA CITY |
||
| Owner Name 1: | PEDROZA ALFREDO OLVEDA |
Parcel PIN#: |
1717-07-450-1035 |
|
| Owner Name 2: | DE OLVEDA AMALIA NAJERA | 1/4 section #: |
1717 |
|
| Owner Name 3: | Parent Acct: |
|
||
| Billing Address: | 2109 SW 60TH ST | Tax District: |
|
|
| City, State, Zip | OKLAHOMA CITY, OK 73159 | School System: |
Oklahoma City #89 |
|
|
Country: (If noted) |
Land Size: |
0.1501 Acres |
||
|
Land Value: 19,947 |
|
|||
|
Sect 30-T11N-R3W Qtr NE |
HILLCREST HEIGHTS ADD
Block
001
Lot
004
|
|||
| Full Legal Description: HILLCREST HEIGHTS ADD 001 004 |
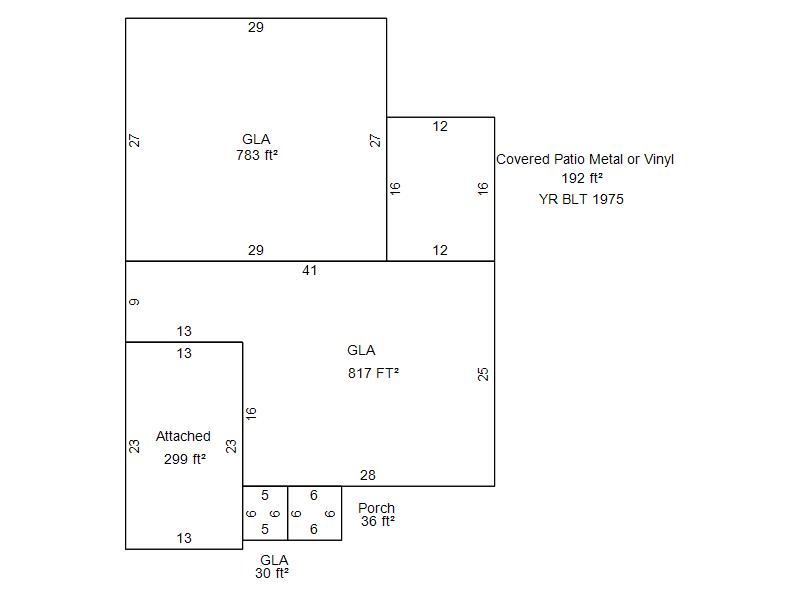
| Photo & Sketch (if available) | Comp Sales (ordered by relevancy) |
|
||||||||||||||||||
|
||||||||||||||||||||
| Value History (*The County Treasurer 405-713-1300 posts & collects actual tax amounts. Contact information HERE) | |||||||||||||
|---|---|---|---|---|---|---|---|---|---|---|---|---|---|
| Year | Market Value | Taxable Mkt Value | Gross Assessed | Exemption | Net Assessed | Millage | Est. Tax | Tax Savings | |||||
|
2025 |
156,000 |
143,545 |
15,789 |
0 |
15,789 |
119.02 |
$1,879 |
$163 |
|||||
|
2024 |
149,000 |
136,710 |
15,038 |
0 |
15,038 |
119.70 |
$1,800 |
$162 |
|||||
|
2023 |
139,000 |
130,200 |
14,322 |
0 |
14,322 |
118.33 |
$1,695 |
$115 |
|||||
|
2022 |
124,000 |
124,000 |
13,640 |
0 |
13,640 |
112.69 |
$1,537 |
$0 |
|||||
|
2021 |
110,500 |
104,475 |
11,492 |
0 |
11,492 |
112.29 |
$1,290 |
$74 |
|||||
| Property Account Status/Adjustments/Exemptions | ||
|---|---|---|
| Account # | Exemption Description | Amount |
|
R074501035 |
5% Capped Account |
0 |
| Property Deed Transaction History (Recorded in the County Clerk's Office) | |||||||
|---|---|---|---|---|---|---|---|
| Date | Type | Book | Page | Price | Grantor | Grantee | |
|
3/15/2021 |
|
Deeds |
$70,000 |
COLLINGS PATRICIA A |
PEDROZA ALFREDO OLVEDA |
||
|
1/17/2003 |
|
Deeds |
$72,000 |
HARTMAN MICHAEL J |
COLLINGS PATRICIA A |
||
|
12/10/1998 |
|
Historical |
$41,500 |
SMITH MARY M TRS |
HARTMAN MICHAEL J |
||
|
5/19/1994 |
|
Historical |
$0 |
SMITH MARY |
SMITH MARY M TRS |
||
|
11/11/1911 |
|
Historical |
$0 |
|
SMITH MARY |
||
| Last Mailed Notice of Value (N.O.V.) Information/History | ||||||||
|---|---|---|---|---|---|---|---|---|
| Year | Date | Market Value | Taxable Market Value | Gross Assessed | Exemption | Net Assessed | ||
|
2026 |
02/06/2026 |
156,500 |
150,722 |
16,578 |
0 |
16,578 |
||
|
2025 |
01/31/2025 |
156,000 |
143,545 |
15,789 |
0 |
15,789 |
||
|
2024 |
01/22/2024 |
149,000 |
136,710 |
15,038 |
0 |
15,038 |
||
|
2023 |
01/23/2023 |
139,000 |
130,200 |
14,322 |
0 |
14,322 |
||
|
2022 |
02/22/2022 |
124,000 |
124,000 |
13,640 |
0 |
13,640 |
||
| Property Building Permit History | |||||||||||
|---|---|---|---|---|---|---|---|---|---|---|---|
| Issued | Permit # | Provided by | Bldg # | Description | Est Construction Cost | Status | |||||
| No Building Permit records returned. | |||||||||||
| Click button on building number to access detailed information: | ||||||
|---|---|---|---|---|---|---|
| Bldg # | Vacant/Improved Land | Bldg Description | Year Built | SqFt | # Stories | |
|
1 |
Improved |
Ranch 1 Story |
1952 |
1,630 |
1 Stories |
|