|
|
|
| Larry Stein Oklahoma County Assessor (405) 713-1200 - Public Access System |
|
|
|
|
|
|
| Real Property Display - Screen Produced 3/13/2026 2:38:34 AM | ||||
|---|---|---|---|---|
| Account: R074501355 | Type: Residential | Location: |
2205 SW 59TH PL |
|
| Building Name/Occupant: |
|
OKLAHOMA CITY |
||
| Owner Name 1: | GAYTAN JOSE M |
Parcel PIN#: |
1717-07-450-1355 |
|
| Owner Name 2: | 1/4 section #: |
1717 |
||
| Owner Name 3: | Parent Acct: |
|
||
| Billing Address: | 2205 SW 59TH PL | Tax District: |
|
|
| City, State, Zip | OKLAHOMA CITY, OK 73159-1801 | School System: |
Oklahoma City #89 |
|
|
Country: (If noted) |
Land Size: |
0.1376 Acres |
||
|
Land Value: 18,285 |
|
|||
|
Sect 30-T11N-R3W Qtr NE |
HILLCREST HEIGHTS ADD
Block
002
Lot
022
|
|||
| Full Legal Description: HILLCREST HEIGHTS ADD 002 022 |
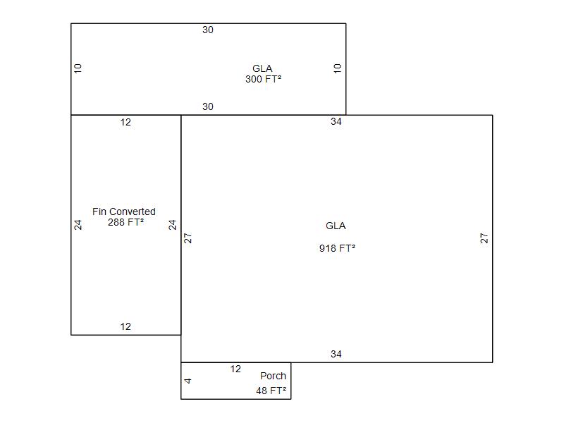
| Photo & Sketch (if available) | Comp Sales (ordered by relevancy) |
|
||||||||||||||||||
|
||||||||||||||||||||
| Value History (*The County Treasurer 405-713-1300 posts & collects actual tax amounts. Contact information HERE) | |||||||||||||
|---|---|---|---|---|---|---|---|---|---|---|---|---|---|
| Year | Market Value | Taxable Mkt Value | Gross Assessed | Exemption | Net Assessed | Millage | Est. Tax | Tax Savings | |||||
|
2025 |
150,500 |
68,265 |
7,508 |
1,000 |
6,508 |
119.02 |
$775 |
$1,196 |
|||||
|
2024 |
141,500 |
66,277 |
7,290 |
1,000 |
6,290 |
119.70 |
$753 |
$1,110 |
|||||
|
2023 |
129,500 |
64,347 |
7,078 |
1,000 |
6,078 |
118.33 |
$719 |
$966 |
|||||
|
2022 |
62,473 |
62,473 |
6,872 |
1,000 |
5,872 |
112.69 |
$662 |
$113 |
|||||
|
2021 |
62,473 |
62,473 |
6,872 |
1,000 |
5,872 |
112.29 |
$659 |
$112 |
|||||
| Property Account Status/Adjustments/Exemptions | ||
|---|---|---|
| Account # | Exemption Description | Amount |
|
R074501355 |
3% Cap Homestead |
0 |
|
R074501355 |
Homestead |
1,000 |
| Property Deed Transaction History (Recorded in the County Clerk's Office) | ||||||||||
|---|---|---|---|---|---|---|---|---|---|---|
| Date | Type | Book | Page | Price | Grantor | Grantee | ||||
|
2/26/2015 |
|
Deeds |
$60,000 |
MILLER JACK BRADLEY |
GAYTAN JOSE M |
|||||
|
11/30/2005 |
|
Deeds |
$69,000 |
HUERTA JERRY & NICKOL C |
MILLER JACK BRADLEY |
|||||
|
11/30/2005 |
|
Deeds |
$0 |
HUERTA JERRY & NICKOL C |
MILLER JACK BRADLEY |
|||||
|
8/27/1998 |
|
Historical |
$45,000 |
FONDOBLE JOYCE ANN |
HUERTA JERRY & NICKOL C |
|||||
|
1/4/1989 |
|
Historical |
$0 |
CRABTREE ALEETA |
FONDOBLE JOYCE ANN |
|||||
| Last Mailed Notice of Value (N.O.V.) Information/History | ||||||
|---|---|---|---|---|---|---|
| Year | Date | Market Value | Taxable Market Value | Gross Assessed | Exemption | Net Assessed |
|
2026 |
02/06/2026 |
150,000 |
70,312 |
7,734 |
1,000 |
6,734 |
|
2025 |
01/31/2025 |
150,500 |
68,265 |
7,508 |
1,000 |
6,508 |
|
2024 |
01/22/2024 |
141,500 |
66,277 |
7,290 |
1,000 |
6,290 |
|
2023 |
01/23/2023 |
129,500 |
64,347 |
7,078 |
1,000 |
6,078 |
|
2011 |
02/28/2011 |
72,766 |
72,766 |
8,004 |
0 |
8,004 |
| Property Building Permit History | ||||||
|---|---|---|---|---|---|---|
| Issued | Permit # | Provided by | Bldg # | Description | Est Construction Cost | Status |
|
11/13/2015 |
10478589 |
OKLAHOMA CITY |
1 |
Remodeled |
3,000 |
Inactive |
| Click button on building number to access detailed information: | ||||||
|---|---|---|---|---|---|---|
| Bldg # | Vacant/Improved Land | Bldg Description | Year Built | SqFt | # Stories | |
|
1 |
Improved |
Ranch 1 Story |
1953 |
1,218 |
1 Stories |
|