|
|
|
| Larry Stein Oklahoma County Assessor (405) 713-1200 - Public Access System |
|
|
|
|
|
|
| Real Property Display - Screen Produced 3/13/2026 12:47:37 AM | ||||
|---|---|---|---|---|
| Account: R074502505 | Type: Residential | Location: |
2229 SW 61ST TER |
|
| Building Name/Occupant: |
|
OKLAHOMA CITY |
||
| Owner Name 1: | MALICOTT ERNEST C & NELDA |
Parcel PIN#: |
1717-07-450-2505 |
|
| Owner Name 2: | 1/4 section #: |
1717 |
||
| Owner Name 3: | Parent Acct: |
|
||
| Billing Address: | 2229 SW 61ST TER | Tax District: |
|
|
| City, State, Zip | OKLAHOMA CITY, OK 73159-1813 | School System: |
Oklahoma City #89 |
|
|
Country: (If noted) |
Land Size: |
0.1687 Acres |
||
|
Land Value: 22,418 |
|
|||
|
Sect 30-T11N-R3W Qtr NE |
HILLCREST HEIGHTS ADD
Block
007
Lot
016
|
|||
| Full Legal Description: HILLCREST HEIGHTS ADD 007 016 |
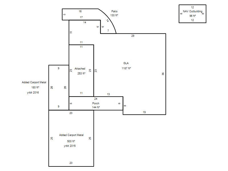
| Photo & Sketch (if available) | Comp Sales (ordered by relevancy) |
|
||||||||||||||||||
|
||||||||||||||||||||
| Value History (*The County Treasurer 405-713-1300 posts & collects actual tax amounts. Contact information HERE) | |||||||||||||
|---|---|---|---|---|---|---|---|---|---|---|---|---|---|
| Year | Market Value | Taxable Mkt Value | Gross Assessed | Exemption | Net Assessed | Millage | Est. Tax | Tax Savings | |||||
|
2025 |
134,500 |
73,587 |
8,094 |
1,000 |
7,094 |
119.02 |
$844 |
$917 |
|||||
|
2024 |
126,000 |
73,587 |
8,094 |
1,000 |
7,094 |
119.70 |
$849 |
$810 |
|||||
|
2023 |
110,000 |
73,587 |
8,094 |
1,000 |
7,094 |
118.33 |
$840 |
$592 |
|||||
|
2022 |
99,000 |
73,587 |
8,094 |
1,000 |
7,094 |
112.69 |
$799 |
$428 |
|||||
|
2021 |
87,000 |
73,587 |
8,094 |
1,000 |
7,094 |
112.29 |
$797 |
$278 |
|||||
| Property Account Status/Adjustments/Exemptions | ||
|---|---|---|
| Account # | Exemption Description | Amount |
|
R074502505 |
Freeze Senior Valuation |
0 |
|
R074502505 |
3% Cap Homestead |
0 |
|
R074502505 |
Homestead |
1,000 |
| Property Deed Transaction History (Recorded in the County Clerk's Office) | |||||||
|---|---|---|---|---|---|---|---|
| Date | Type | Book | Page | Price | Grantor | Grantee | |
|
1/29/1990 |
|
Historical |
$50,000 |
COSHOW STEVEN R & NIKKI A |
MALICOTT ERNEST C & NELDA |
||
|
4/30/1987 |
|
Historical |
$55,500 |
MUNZURIS PAUL M & DENISE N |
COSHOW STEVEN R & NIKKI A |
||
|
9/1/1983 |
|
Historical |
$0 |
|
MUNZURIS PAUL M & DENISE N |
||
| Last Mailed Notice of Value (N.O.V.) Information/History | ||||||||
|---|---|---|---|---|---|---|---|---|
| Year | Date | Market Value | Taxable Market Value | Gross Assessed | Exemption | Net Assessed | ||
|
2026 |
02/06/2026 |
136,500 |
73,587 |
8,094 |
1,000 |
7,094 |
||
|
2025 |
01/31/2025 |
134,500 |
73,587 |
8,094 |
1,000 |
7,094 |
||
|
2024 |
01/22/2024 |
126,000 |
73,587 |
8,094 |
1,000 |
7,094 |
||
|
2023 |
01/23/2023 |
110,000 |
73,587 |
8,094 |
1,000 |
7,094 |
||
|
2022 |
02/22/2022 |
99,000 |
73,587 |
8,094 |
1,000 |
7,094 |
||
| Property Building Permit History | |||||||||||
|---|---|---|---|---|---|---|---|---|---|---|---|
| Issued | Permit # | Provided by | Bldg # | Description | Est Construction Cost | Status | |||||
| No Building Permit records returned. | |||||||||||
| Click button on building number to access detailed information: | ||||||
|---|---|---|---|---|---|---|
| Bldg # | Vacant/Improved Land | Bldg Description | Year Built | SqFt | # Stories | |
|
1 |
Improved |
Ranch 1 Story |
1952 |
1,187 |
1 Stories |
|