|
|
|
| Larry Stein Oklahoma County Assessor (405) 713-1200 - Public Access System |
|
|
|
|
|
|
| Real Property Display - Screen Produced 3/17/2026 4:14:56 AM | ||||
|---|---|---|---|---|
| Account: R074502545 | Type: Residential | Location: |
2213 SW 61ST TER |
|
| Building Name/Occupant: |
|
OKLAHOMA CITY |
||
| Owner Name 1: | VILLA SANTOS MOLINA |
Parcel PIN#: |
1717-07-450-2545 |
|
| Owner Name 2: | 1/4 section #: |
1717 |
||
| Owner Name 3: | Parent Acct: |
|
||
| Billing Address: | 2213 SW 61ST TER | Tax District: |
|
|
| City, State, Zip | OKLAHOMA CITY, OK 73159-1813 | School System: |
Oklahoma City #89 |
|
|
Country: (If noted) |
Land Size: |
0.1377 Acres |
||
|
Land Value: 18,300 |
|
|||
|
Sect 30-T11N-R3W Qtr NE |
HILLCREST HEIGHTS ADD
Block
007
Lot
020
|
|||
| Full Legal Description: HILLCREST HEIGHTS ADD 007 020 |
| Photo & Sketch (if available) | Comp Sales (ordered by relevancy) |
|
||||||||||||||||||
|
||||||||||||||||||||
| Value History (*The County Treasurer 405-713-1300 posts & collects actual tax amounts. Contact information HERE) | |||||||||||||
|---|---|---|---|---|---|---|---|---|---|---|---|---|---|
| Year | Market Value | Taxable Mkt Value | Gross Assessed | Exemption | Net Assessed | Millage | Est. Tax | Tax Savings | |||||
|
2025 |
157,500 |
107,611 |
11,836 |
1,000 |
10,836 |
119.02 |
$1,290 |
$772 |
|||||
|
2024 |
149,500 |
104,477 |
11,491 |
1,000 |
10,491 |
119.70 |
$1,256 |
$713 |
|||||
|
2023 |
136,000 |
101,434 |
11,156 |
1,000 |
10,156 |
118.33 |
$1,202 |
$568 |
|||||
|
2022 |
119,500 |
98,480 |
10,832 |
1,000 |
9,832 |
112.69 |
$1,108 |
$373 |
|||||
|
2021 |
105,000 |
95,612 |
10,517 |
1,000 |
9,517 |
112.29 |
$1,069 |
$228 |
|||||
| Property Account Status/Adjustments/Exemptions | ||||||
|---|---|---|---|---|---|---|
| Account # | Exemption Description | Amount | ||||
| No adjustment/exemption records returned. | ||||||
| Property Deed Transaction History (Recorded in the County Clerk's Office) | |||||||
|---|---|---|---|---|---|---|---|
| Date | Type | Book | Page | Price | Grantor | Grantee | |
|
6/5/2015 |
|
Deeds |
$85,000 |
GREENE TRUST NO 1 |
VILLA SANTOS MOLINA |
||
|
3/22/1999 |
|
Deeds |
$0 |
WALDON LOREECE J |
GREENE TRUST NO 1 |
||
|
4/13/1998 |
|
Historical |
$0 |
GREENE CLIFFIE M |
WALDON LOREECE J |
||
|
3/22/1989 |
|
Historical |
$0 |
POLLARD ROBERT KENT |
GREENE CLIFFIE M |
||
|
4/1/1983 |
|
Historical |
$0 |
|
POLLARD ROBERT KENT |
||
| Last Mailed Notice of Value (N.O.V.) Information/History | ||||||||
|---|---|---|---|---|---|---|---|---|
| Year | Date | Market Value | Taxable Market Value | Gross Assessed | Exemption | Net Assessed | ||
|
2026 |
02/06/2026 |
158,000 |
110,839 |
12,192 |
1,000 |
11,192 |
||
|
2025 |
01/31/2025 |
157,500 |
107,611 |
11,836 |
1,000 |
10,836 |
||
|
2024 |
01/22/2024 |
149,500 |
104,477 |
11,491 |
1,000 |
10,491 |
||
|
2023 |
01/23/2023 |
136,000 |
101,434 |
11,156 |
1,000 |
10,156 |
||
|
2022 |
02/22/2022 |
119,500 |
98,480 |
10,832 |
1,000 |
9,832 |
||
| Property Building Permit History | |||||||||||
|---|---|---|---|---|---|---|---|---|---|---|---|
| Issued | Permit # | Provided by | Bldg # | Description | Est Construction Cost | Status | |||||
| No Building Permit records returned. | |||||||||||
| Click button on building number to access detailed information: | ||||||
|---|---|---|---|---|---|---|
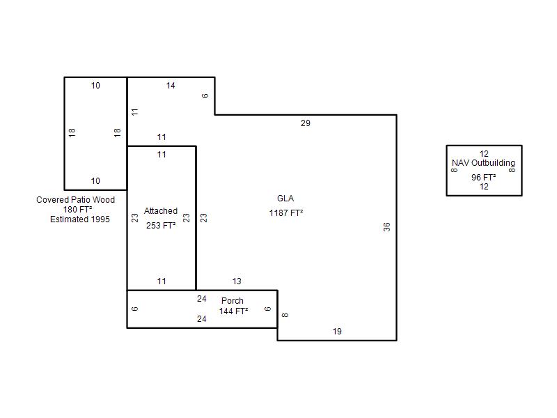
| Bldg # | Vacant/Improved Land | Bldg Description | Year Built | SqFt | # Stories | |
|
1 |
Improved |
Ranch 1 Story |
1952 |
1,187 |
1 Stories |
|