|
|
|
| Larry Stein Oklahoma County Assessor (405) 713-1200 - Public Access System |
|
|
|
|
|
|
| Real Property Display - Screen Produced 3/13/2026 12:50:43 AM | ||||
|---|---|---|---|---|
| Account: R074531315 | Type: Residential | Location: |
2101 SW 64TH ST |
|
| Building Name/Occupant: |
|
OKLAHOMA CITY |
||
| Owner Name 1: | RODRIGUEZ MELISSA R |
Parcel PIN#: |
1717-07-453-1315 |
|
| Owner Name 2: | 1/4 section #: |
1717 |
||
| Owner Name 3: | Parent Acct: |
|
||
| Billing Address: | 2101 SW 64TH ST | Tax District: |
|
|
| City, State, Zip | OKLAHOMA CITY, OK 73159-2917 | School System: |
Oklahoma City #89 |
|
|
Country: (If noted) |
Land Size: |
0.2054 Acres |
||
|
Land Value: 27,285 |
|
|||
|
Sect 30-T11N-R3W Qtr NE |
HILLCREST HEIGHTS 5TH ADD
Block
014
Lot
021
|
|||
| Full Legal Description: HILLCREST HEIGHTS 5TH ADD 014 021 |
| Photo & Sketch (if available) | Comp Sales (ordered by relevancy) |
|
||||||||||||||||||
|
||||||||||||||||||||
| Value History (*The County Treasurer 405-713-1300 posts & collects actual tax amounts. Contact information HERE) | |||||||||||||
|---|---|---|---|---|---|---|---|---|---|---|---|---|---|
| Year | Market Value | Taxable Mkt Value | Gross Assessed | Exemption | Net Assessed | Millage | Est. Tax | Tax Savings | |||||
|
2025 |
164,000 |
133,369 |
14,670 |
0 |
14,670 |
119.02 |
$1,746 |
$401 |
|||||
|
2024 |
154,500 |
127,019 |
13,971 |
0 |
13,971 |
119.70 |
$1,672 |
$362 |
|||||
|
2023 |
145,000 |
120,971 |
13,306 |
0 |
13,306 |
118.33 |
$1,575 |
$313 |
|||||
|
2022 |
130,000 |
115,211 |
12,672 |
0 |
12,672 |
112.69 |
$1,428 |
$183 |
|||||
|
2021 |
114,000 |
109,725 |
12,069 |
0 |
12,069 |
112.29 |
$1,355 |
$53 |
|||||
| Property Account Status/Adjustments/Exemptions | ||
|---|---|---|
| Account # | Exemption Description | Amount |
|
R074531315 |
5% Capped Account |
0 |
| Property Deed Transaction History (Recorded in the County Clerk's Office) | |||||||
|---|---|---|---|---|---|---|---|
| Date | Type | Book | Page | Price | Grantor | Grantee | |
|
8/31/2004 |
|
Deeds |
$78,000 |
TORRES MAURO D |
RODRIGUEZ MELISSA R |
||
|
11/19/1999 |
|
Deeds |
$67,000 |
WHITE MARY JOHN MOWDY JOANN |
TORRES MAURO D |
||
|
1/1/1984 |
|
Historical |
$0 |
|
WHITE MARY JOHN |
||
| Last Mailed Notice of Value (N.O.V.) Information/History | ||||||||
|---|---|---|---|---|---|---|---|---|
| Year | Date | Market Value | Taxable Market Value | Gross Assessed | Exemption | Net Assessed | ||
|
2026 |
02/06/2026 |
168,500 |
140,037 |
15,403 |
0 |
15,403 |
||
|
2025 |
01/31/2025 |
164,000 |
133,369 |
14,670 |
0 |
14,670 |
||
|
2024 |
01/22/2024 |
154,500 |
127,019 |
13,971 |
0 |
13,971 |
||
|
2023 |
01/23/2023 |
145,000 |
120,971 |
13,306 |
0 |
13,306 |
||
|
2022 |
02/22/2022 |
130,000 |
115,211 |
12,672 |
0 |
12,672 |
||
| Property Building Permit History | |||||||||||
|---|---|---|---|---|---|---|---|---|---|---|---|
| Issued | Permit # | Provided by | Bldg # | Description | Est Construction Cost | Status | |||||
| No Building Permit records returned. | |||||||||||
| Click button on building number to access detailed information: | ||||||
|---|---|---|---|---|---|---|
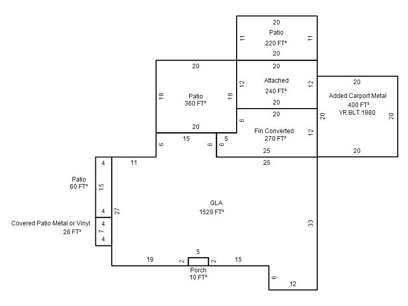
| Bldg # | Vacant/Improved Land | Bldg Description | Year Built | SqFt | # Stories | |
|
1 |
Improved |
Ranch 1 Story |
1954 |
1,529 |
1 Stories |
|