|
|
|
| Larry Stein Oklahoma County Assessor (405) 713-1200 - Public Access System |
|
|
|
|
|
|
| Real Property Display - Screen Produced 3/13/2026 12:43:14 AM | ||||
|---|---|---|---|---|
| Account: R074531395 | Type: Residential | Location: |
2128 SW 64TH ST |
|
| Building Name/Occupant: |
|
OKLAHOMA CITY |
||
| Owner Name 1: | GONZALES MARIA L ETAL |
Parcel PIN#: |
1717-07-453-1395 |
|
| Owner Name 2: | RAMIREZ ESMERALDA S | 1/4 section #: |
1717 |
|
| Owner Name 3: | Parent Acct: |
|
||
| Billing Address: | 2128 SW 64TH ST | Tax District: |
|
|
| City, State, Zip | OKLAHOMA CITY, OK 73159 | School System: |
Oklahoma City #89 |
|
|
Country: (If noted) |
Land Size: |
0.2268 Acres |
||
|
Land Value: 30,134 |
|
|||
|
Sect 30-T11N-R3W Qtr NE |
HILLCREST HEIGHTS 5TH ADD
Block
015
Lot
000
|
|||
| Full Legal Description: HILLCREST HEIGHTS 5TH ADD 015 000 W2.5FT OF LOT 7 & ALL LOT 8 |
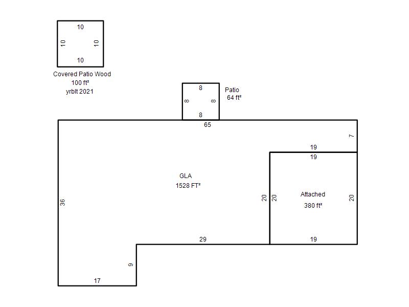
| Photo & Sketch (if available) | Comp Sales (ordered by relevancy) |
|
||||||||||||||||||
|
||||||||||||||||||||
| Value History (*The County Treasurer 405-713-1300 posts & collects actual tax amounts. Contact information HERE) | |||||||||||||
|---|---|---|---|---|---|---|---|---|---|---|---|---|---|
| Year | Market Value | Taxable Mkt Value | Gross Assessed | Exemption | Net Assessed | Millage | Est. Tax | Tax Savings | |||||
|
2025 |
152,000 |
101,194 |
11,131 |
1,000 |
10,131 |
119.02 |
$1,206 |
$784 |
|||||
|
2024 |
141,000 |
101,194 |
11,131 |
1,000 |
10,131 |
119.70 |
$1,213 |
$644 |
|||||
|
2023 |
131,500 |
101,194 |
11,131 |
1,000 |
10,131 |
118.33 |
$1,199 |
$513 |
|||||
|
2022 |
116,000 |
99,194 |
10,910 |
1,000 |
9,910 |
112.69 |
$1,117 |
$321 |
|||||
|
2021 |
103,000 |
96,305 |
10,593 |
1,000 |
9,593 |
112.29 |
$1,077 |
$195 |
|||||
| Property Account Status/Adjustments/Exemptions | ||
|---|---|---|
| Account # | Exemption Description | Amount |
|
R074531395 |
Freeze Senior Valuation |
0 |
|
R074531395 |
Homestead |
1,000 |
|
R074531395 |
3% Cap Homestead |
0 |
| Property Deed Transaction History (Recorded in the County Clerk's Office) | ||||||||||
|---|---|---|---|---|---|---|---|---|---|---|
| Date | Type | Book | Page | Price | Grantor | Grantee | ||||
|
5/7/2021 |
|
Hmstd Off & |
$0 |
RAMEREZ ESMERALDA S |
GONZALES VICTOR R |
|||||
|
4/29/2021 |
|
Deeds |
$ |
GONZALES ALEJANDRO D ETAL |
RAMEREZ ESMERALDA S |
|||||
|
11/16/2011 |
|
Hmstd Off & |
$0 |
GONZALES VICTOR & MINNIE M |
RAMEREZ ESMERALDA ETAL KELLY MARIA L |
|||||
|
11/16/2011 |
|
Deeds |
$0 |
GONZALES LUPE B |
RAMEREZ ESMERALDA ETAL |
|||||
|
1/21/2010 |
|
Deeds |
$0 |
GONZALES VICTOR F |
GONZALES VICTOR & MINNIE M |
|||||
| Last Mailed Notice of Value (N.O.V.) Information/History | ||||||||
|---|---|---|---|---|---|---|---|---|
| Year | Date | Market Value | Taxable Market Value | Gross Assessed | Exemption | Net Assessed | ||
|
2026 |
02/06/2026 |
157,000 |
101,194 |
11,131 |
1,000 |
10,131 |
||
|
2025 |
01/31/2025 |
152,000 |
101,194 |
11,131 |
1,000 |
10,131 |
||
|
2024 |
01/22/2024 |
141,000 |
101,194 |
11,131 |
1,000 |
10,131 |
||
|
2023 |
03/02/2023 |
131,500 |
101,194 |
11,131 |
1,000 |
10,131 |
||
|
2022 |
02/22/2022 |
116,000 |
101,120 |
11,122 |
0 |
11,122 |
||
| Property Building Permit History | |||||||||||
|---|---|---|---|---|---|---|---|---|---|---|---|
| Issued | Permit # | Provided by | Bldg # | Description | Est Construction Cost | Status | |||||
| No Building Permit records returned. | |||||||||||
| Click button on building number to access detailed information: | ||||||
|---|---|---|---|---|---|---|
| Bldg # | Vacant/Improved Land | Bldg Description | Year Built | SqFt | # Stories | |
|
1 |
Improved |
Ranch 1 Story |
1954 |
1,528 |
1 Stories |
|